Valutazione immobiliare indipendente, accurata e gratuita
Casa indipendente in vendita ad Ardea a 42.750 € (cod.64f59817)
Caasa non ha sufficienti informazioni per commentare la casa indipendente in vendita ad Ardea - 64f59817.
Analisi immobiliare
I dati in posseso di Caasa per quest'immobile sono insufficienti, inaffidabili o contraddittori per proporre un'analisi attendibile.
Mercato immobiliare ad Ardea
Per quanto riguarda più in generale la città di Ardea, sono presenti al momento ben oltre mille annunci per
case indipendenti in vendita (meno del 5% dell'intera provincia)
e il maggior numero di annunci per questa tipologia sono relativi alla zona di Marina di Ardea.
La dinamica dei prezzi in tutta la città mostra che negli ultimi 6 mesi, i prezzi per case indipendenti in vendita sono
in forte aumento (+11,95%).
NOVITÀ Il risultato che vedi dipende dai dati che siamo riusciti ad estrarre dall'annuncio: ottieni una stima più accuranta di questo immobile, inserendo dati più precisi.
N.B. L'Opinione di Caasa® è un servizio sperimentale realizzato tramite tecniche di Intelligenza Artificiale, fornito senza alcuna garanzia di correttezza e completezza. Leggi il disclaimer o segnalaci un problema.
IMMAGINI
IN SINTESI
PROPOSTO DA:
Studio Giuliani Real Estate Srl
DESCRIZIONE
con terrazza con posto auto con balcone in asta giudiziaria con cantina con termocondizionamento con cucina abitabile con riscaldamento autonomo con garage
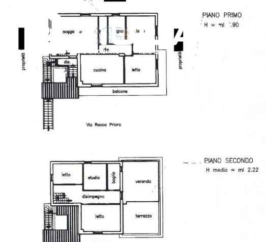
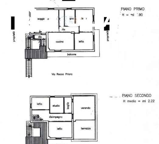
CONTATTACI PER UNA CONSULENZA GRATUITA ALLO 06/87607612 Ardea (RM) Via Rocca Priora, 17. Villetta costituita da ingresso con disimpegno, soggiorno, cucina abitabile, balcone, due camere, bagno, ripostiglio e balcone al piano primo; disimpegno, studio […]
