Valutazione immobiliare indipendente, accurata e gratuita
Casa indipendente in vendita ad Anzio a 71.393 € (cod.658fad41)
Caasa non ha sufficienti informazioni per commentare la casa indipendente in vendita ad Anzio - 658fad41.
Analisi immobiliare
I dati in posseso di Caasa per quest'immobile sono insufficienti, inaffidabili o contraddittori per proporre un'analisi attendibile.
Mercato immobiliare ad Anzio
Per quanto riguarda più in generale la città di Anzio, sono presenti al momento ben circa 2.000 annunci per
case indipendenti in vendita (meno del 10% dell'intera provincia)
e il maggior numero di annunci per questa tipologia sono relativi alla zona di Mare.
Relativamente alla dinamica dei prezzi, possiamo dire che negli ultimi 6 mesi i prezzi medi in tutta la città per case indipendenti in vendita sono
sostanzialmente stabili (-0,44%).
NOVITÀ Il risultato che vedi dipende dai dati che siamo riusciti ad estrarre dall'annuncio: ottieni una stima più accuranta di questo immobile, inserendo dati più precisi.
N.B. L'Opinione di Caasa® è un servizio sperimentale realizzato tramite tecniche di Intelligenza Artificiale, fornito senza alcuna garanzia di correttezza e completezza. Leggi il disclaimer o segnalaci un problema.
IMMAGINI
IN SINTESI
DESCRIZIONE
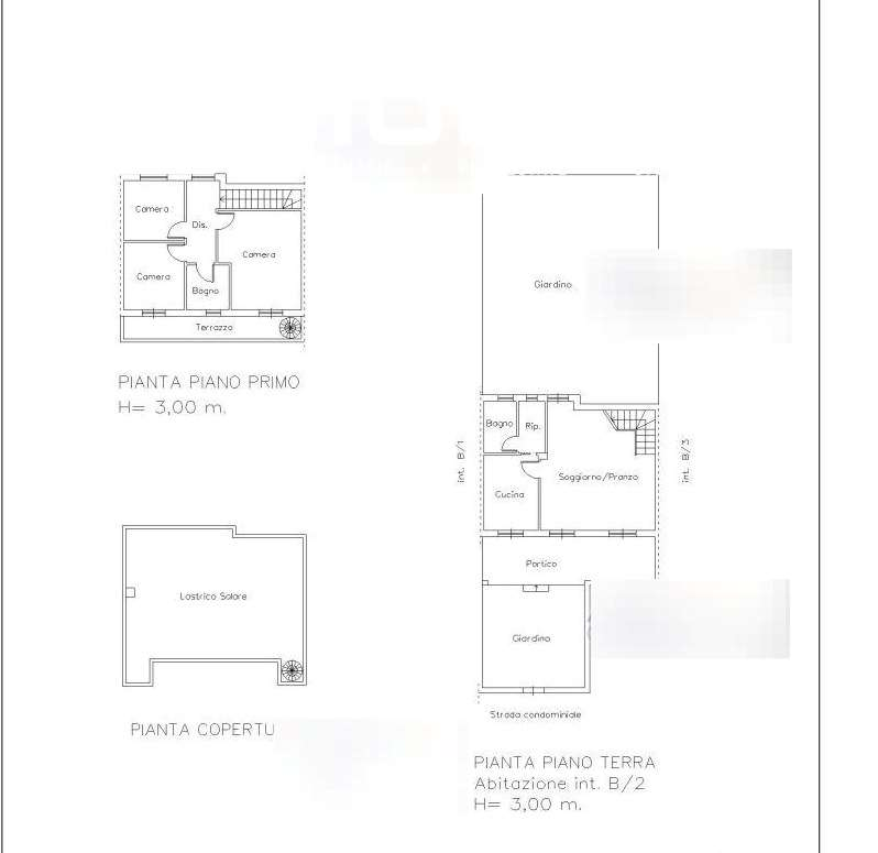
di nuova costruzione con giardino con terrazza con balcone in asta giudiziaria con cantina di nuova costruzione
POSSIBILITA' DI ASSISTENZA PER TUTTI GLI IMMOBILI IN ASTA, ANCHE QUELLI NON PUBBLICATI DAL NOSTRO STUDIO. Immobile (Villino) sito nel Comune di Anzio (Rm), via del Biancospino n 114, int. B2, posto al piano T-1-2, con annesso giardino, portico, terrazzo, lastrico solare, termoautonomo non allacciato alla rete del gas metano. Composto al piano terra da soggiorno/pranzo, cucina, bagno, ripostiglio, giardino, portico. Al piano primo da disimpegno, tre camere, bagno, terrazzo. Al piano secondo da lastrico solare (calpestabile). OFFERTA MINIMA: 71.393,00 EURO DATA DELL'ASTA: 30/10/2025 10:00 Casa è dove si trova il cuore. (Plinio il vecchio) Con lo STUDIO GIULIANI REAL ESTATE il sogno diventa realtà! Il nostro team di professionisti offre assistenza, consulenza legale e stragiudiziale per tutti i beni mobili e immobili in asta giudiziaria. I servizi offerti al nostro cliente sono molteplici: Ricerca dell'immobile con valutazione immobiliare Valutazione preliminare tecnica e studio della perizia con geometra in sede Valutazione economica con broker finanziario in sede con possibilità di mutuo fino al 100% del prezzo di aggiudicazione Prenotazione visita degli immobili oggetto di interesse tramite il custode giudiziario Partecipazione in asta, il cliente verrà seguito fino alla consegna delle chiavi Effettuiamo inoltre pratiche di saldo e stralcio e di acquisto del credito dai maggiori istituti bancari. La nostra parcella è dovuta solo in caso di aggiudicazione. Il nostro team è a vostra completa disposizione per fornirvi tutte le informazioni e per fissare un appuntamento per una consulenza gratuita presso le nostre sedi di Velletri e Nettuno. I dati inerenti l'immobile ed il materiale fotografico contenuti nel presente annuncio verranno confermati in sede di consulenza con la documentazione aggiornata disponibile. Puoi consultare tutti gli immobili disponibili in aggiornamento quotidiano sul nostro sito o sulla nostra applicazione mobile gratuita DOMINIOASTE. Studio Giuliani Real Estate Velletri Via Eduardo De[…]


