Valutazione immobiliare indipendente, accurata e gratuita
L'Opinione di Caasa® per la casa indipendente in vendita ad Anzio in zona Lido dei Pini a 219.000 € (cod.65035e6e)
Secondo Caasa, per la casa indipendente ad Anzio in zona Lido dei Pini, la richiesta di 219.000 € è significativamente vantaggiosa rispetto agli annunci simili.
Analisi immobiliare
La casa indipendente, situata nella zona OMI E2, è proposta in vendita a
219.000 € per una
superficie commerciale di
170 m² e quindi ad un prezzo per metro quadrato pari a
1288 €/m²
.
Questo prezzo
è più vantaggioso di quello stimato da Caasa per immobili in vendita simili per tipologia, caratteristiche, classe energetica e localizzati nella stessa zona OMI, che è compreso tra
1.732 €/m² e
1.882 €/m².
La conoscenza con buona approssimazione della localizzazione dell'immobile ha consentito di utilizzare come raffronto i dati medi elaborati esattamente nella zona OMI di appertenenza (ESPANSIONE (VIA AMILCARE CIPRIANI)) per case indipendenti (da 985 €/m² a 1.925 €/m²) e per ville (da 980 €/m² a 1.995 €/m²). Inoltre, Caasa ha potuto affinare la stima anche con la conoscenza della classe energetica (E) oltre che dello stato dell'immobile (di recente ristrutturazione) e di alcune caratteristiche significative come il posto auto o la disponibilità di una cantina. Per i motivi esposti è possibile considerare un intervallo di valori accettabili per l'offerta abbastanza limitato.
Mercato immobiliare ad Anzio
Per quanto riguarda più in generale la città di Anzio, sono presenti al momento ben circa 2.000 annunci per
case indipendenti in vendita (meno del 5% dell'intera provincia)
e il maggior numero di annunci per questa tipologia sono relativi alla zona di Mare, mentre la zona di Lido dei Pini risulta molto meno attiva considerando il numero di annunci presenti.
La richiesta media nella zona dove sorge la casa indipendente (Lido dei Pini) è pari a
1.560 €/m² che la rende la più economica della città .
Possiamo inoltre considerare che in tutta la città negli ultimi 6 mesi, i prezzi per case indipendenti in vendita sono
sostanzialmente stabili (+0,03%).
NOVITÀ Il risultato che vedi dipende dai dati che siamo riusciti ad estrarre dall'annuncio: ottieni una stima più accuranta di questo immobile, inserendo dati più precisi.
N.B. L'Opinione di Caasa® è un servizio sperimentale realizzato tramite tecniche di Intelligenza Artificiale, fornito senza alcuna garanzia di correttezza e completezza. Leggi il disclaimer o segnalaci un problema.
IMMAGINI
IN SINTESI
PROPOSTO DA:
Affiliato Tecnorete: LIDO DEI PINI IMMOBILIARE SRL
DESCRIZIONE
di recente ristrutturazione con giardino con posto auto con cantina di recente ristrutturazione di recente costruzione
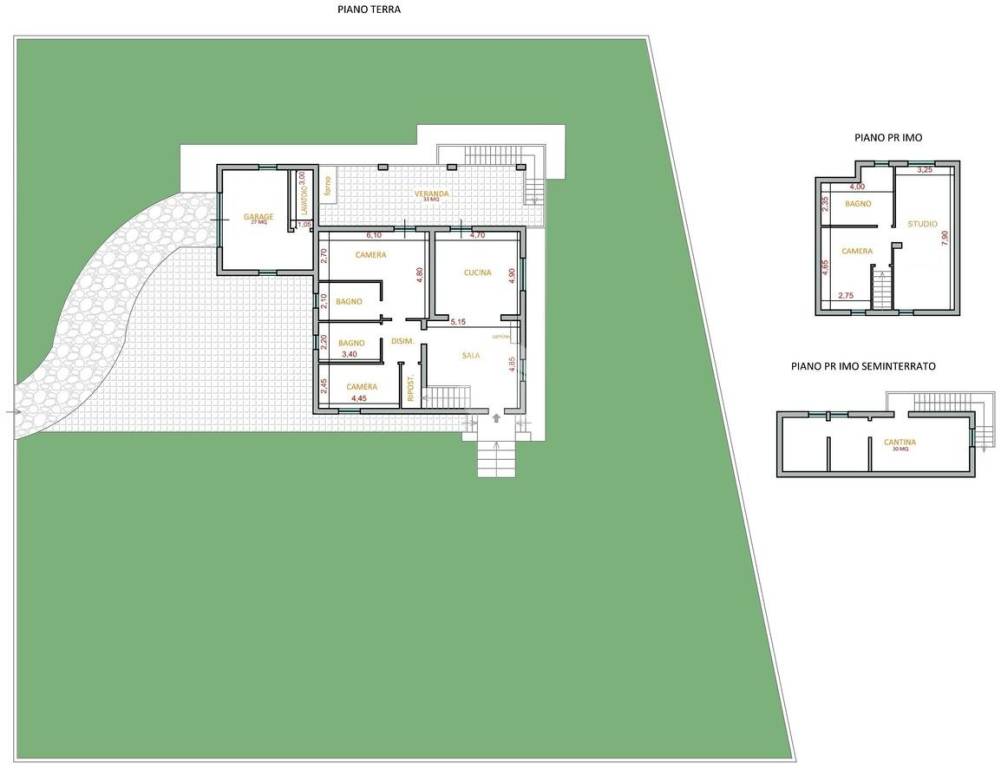
Casello 45 Via dei Laghi Villa singola di 170 mq. Piano terra di 105 mq composto da: sala, cucina, disimpegno, 2 camere, ripostiglio e 2 bagni. Piano primo di 65 mq composto da: camera, studio e bagno. Cantina di 30 mq, angolo lavanderia e box auto di 27 mq con lavatoio. Veranda di 35 mq e giardino. RISTRUTTURATA NEL 2023 L'immobile è dotato di condizionatori in sala, cucina e piano primo, termocamino, inferriate, zanzariere e infissi in PVC/legno doppio vetro e allarme perimetrale. Predisposizione allaccio al Gas Metano. Distanze: 1,3 km dalla Nettunense - 5,4 km dalla Litoranea - 6,4 km dal mare - 3,9 km dalla St. di Padiglione - 2,9 km dalla St. di Campo di Carne Visionabile previo appuntamento Via delle Pinete, 141/143 Lido dei Pini Ardea (RM),00040 Numero: 069178189 Whatsapp: 3897846369

