Valutazione immobiliare indipendente, accurata e gratuita

Casa indipendente in vendita ad Anzio (cod.64eb3371)

Caasa non ha sufficienti informazioni per commentare la casa indipendente in vendita ad Anzio - 64eb3371.

Analisi immobiliare
I dati in posseso di Caasa per quest'immobile sono insufficienti, inaffidabili o contraddittori per proporre un'analisi attendibile.
Mercato immobiliare ad Anzio
Per quanto riguarda più in generale la città di Anzio, sono presenti al momento ben oltre mille annunci per case indipendenti in vendita (meno del 5% dell'intera provincia) e il maggior numero di annunci per questa tipologia sono relativi alla zona di Mare.

Relativamente alla dinamica dei prezzi, possiamo dire che negli ultimi 6 mesi i prezzi medi in tutta la città per case indipendenti in vendita sono in deciso aumento (+7,77%).

NOVITÀ Il risultato che vedi dipende dai dati che siamo riusciti ad estrarre dall'annuncio: ottieni una stima più accuranta di questo immobile, inserendo dati più precisi.

N.B. L'Opinione di Caasa® è un servizio sperimentale realizzato tramite tecniche di Intelligenza Artificiale, fornito senza alcuna garanzia di correttezza e completezza. Leggi il disclaimer o segnalaci un problema.

IMMAGINI

IN SINTESI

Prezzo:
nd
Superficie:
n.d. m²
Piano:
terra
Bagni:
2
Classe energetica:
n.d.
Città:
Anzio (RM)
Zona OMI:
D2 (ANZIO COLONIA- VIA DI VILLA CLAUDIA-LAVINIO)
Pubblicato:
ven 3 ottobre 2025

PROPOSTO DA:

STUDIO CANOVA immobili & crediti

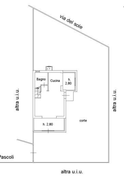
DESCRIZIONE

in asta giudiziaria

NUOVA PROPOSTA IMMOBILE LIBERO Trattasi di un appartamento ad Anzio (RM) in Via G. Pascoli. L’immobile si sviluppa su due piani fuori terra ed è parte di un complesso residenziale di sei abitazioni, raggiungibile tramite viale comune con accesso da c […]

  • yescasa.it