Valutazione immobiliare indipendente, accurata e gratuita
Casa indipendente in vendita ad Anzio a 290.000 € (cod.64cf6f17)
Caasa non ha sufficienti informazioni per commentare la casa indipendente in vendita ad Anzio - 64cf6f17.
Analisi immobiliare
I dati in posseso di Caasa per quest'immobile sono insufficienti, inaffidabili o contraddittori per proporre un'analisi attendibile.
Mercato immobiliare ad Anzio
Per quanto riguarda più in generale la città di Anzio, sono presenti al momento ben circa 2.000 annunci per
case indipendenti in vendita (meno del 5% dell'intera provincia)
e il maggior numero di annunci per questa tipologia sono relativi alla zona di Mare.
La dinamica dei prezzi in tutta la città mostra che negli ultimi 6 mesi, i prezzi per case indipendenti in vendita sono
in deciso aumento (+7,77%).
NOVITÀ Il risultato che vedi dipende dai dati che siamo riusciti ad estrarre dall'annuncio: ottieni una stima più accuranta di questo immobile, inserendo dati più precisi.
N.B. L'Opinione di Caasa® è un servizio sperimentale realizzato tramite tecniche di Intelligenza Artificiale, fornito senza alcuna garanzia di correttezza e completezza. Leggi il disclaimer o segnalaci un problema.
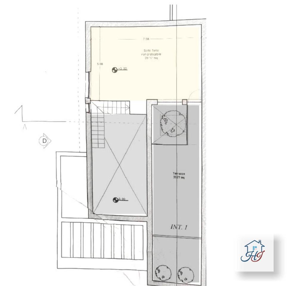
IMMAGINI
IN SINTESI
PROPOSTO DA:
KAIROS S.R.L.S.
DESCRIZIONE
di nuova costruzione con giardino con terrazza con posto auto con garage di nuova costruzione
Habitat Immobiliare 05 Srl propone in vendita ville bifamiliari di nuova costruzione unico livello in contesto tranquillo e residenziale, zona Anzio/Lavinio composte da: soggiorno con cucina a vista, 3 camere da letto, di cui 1 camera mansardata di 4 […]
