Valutazione immobiliare indipendente, accurata e gratuita
Casa indipendente in vendita ad Albano Laziale in zona Cecchina a 340.000 € (cod.658a1834)
Caasa non ha sufficienti informazioni per commentare la casa indipendente ad Albano Laziale Cecchina - 658a1834.
Analisi immobiliare
I dati in posseso di Caasa per quest'immobile sono insufficienti, inaffidabili o contraddittori per proporre un'analisi attendibile.
Mercato immobiliare ad Albano Laziale
Per quanto riguarda più in generale la città di Albano Laziale, sono presenti al momento più di 300 annunci per
case indipendenti in vendita (meno dell'1% dell'intera provincia)
e il maggior numero di annunci per questa tipologia sono relativi proprio alla zona di Cecchina.
La richiesta media nella zona dove sorge la casa indipendente (Cecchina pressi Via Campania) è pari a
1.825 €/m² che la rende la più economica della città .
Per quanto riguarda la dinamica dei prezzi, negli ultimi 6 mesi i prezzi medi in tutta la città per case indipendenti in vendita sono
sostanzialmente stabili (+0,25%).
NOVITÀ Il risultato che vedi dipende dai dati che siamo riusciti ad estrarre dall'annuncio: ottieni una stima più accuranta di questo immobile, inserendo dati più precisi.
N.B. L'Opinione di Caasa® è un servizio sperimentale realizzato tramite tecniche di Intelligenza Artificiale, fornito senza alcuna garanzia di correttezza e completezza. Leggi il disclaimer o segnalaci un problema.
IMMAGINI
IN SINTESI
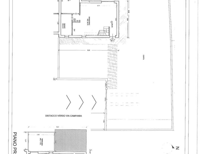
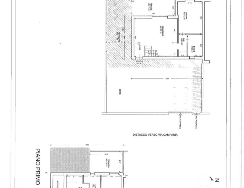
DESCRIZIONE
di nuova costruzione con posto auto con terrazza con giardino con angolo cottura di nuova costruzione con termocondizionamento
Villa di Nuova Costruzione Villa in Costruzione di ultima generazione, al centro, vicino a tutti i servizi primari e ricreativi, bus, treno. Per chi ama avere tutto a portata di casa a due passi senza dover usare la macchina. Questa porzione di villa in bifamiliare ha tutti i confort di ultima generazione con riscaldamento e raffrescamento con pompa di calore e termoconvettore, pannello fotovoltaico da 1,5kw per un buon risparmio energetico. Accesso da Via Campania entrata indipendente con un giardino che si estende per tre lati e un portico dove creare una zona pranzo. All'interno un ampio salone con angolo cottura, camera da letto e bagno, scala interna a seguire il secondo piano con due stanze di cui una con terrazzo di 10mq con affaccio libero verso mare , panoramico, un bagno, senza aree mansardate, completamente vivibile. Chiama subito per prenotare la casa dei tuoi sogni. € 340.000


