Valutazione immobiliare indipendente, accurata e gratuita
Casa indipendente in vendita a Fara in Sabina a 255.000 € (cod.64ee7033)
Caasa non ha sufficienti informazioni per commentare la casa indipendente in vendita a Fara in Sabina - 64ee7033.
Analisi immobiliare
I dati in posseso di Caasa per quest'immobile sono insufficienti, inaffidabili o contraddittori per proporre un'analisi attendibile.
Mercato immobiliare a Fara in Sabina
Per quanto riguarda più in generale il comune di Fara in Sabina, sono presenti al momento più di 150 annunci per
case indipendenti in vendita (meno del 10% dell'intera provincia)
e il maggior numero di annunci per questa tipologia sono relativi alla zona di Passo Corese.
La dinamica dei prezzi in tutto il comune mostra che negli ultimi 6 mesi, i prezzi per case indipendenti in vendita sono
in leggera diminuzione (-3,12%).
NOVITÀ Il risultato che vedi dipende dai dati che siamo riusciti ad estrarre dall'annuncio: ottieni una stima più accuranta di questo immobile, inserendo dati più precisi.
N.B. L'Opinione di Caasa® è un servizio sperimentale realizzato tramite tecniche di Intelligenza Artificiale, fornito senza alcuna garanzia di correttezza e completezza. Leggi il disclaimer o segnalaci un problema.
IMMAGINI
IN SINTESI
PROPOSTO DA:
AGENZIA IMMOBILIARE SABINA
DESCRIZIONE
di nuova costruzione con giardino di nuova costruzione con angolo cottura
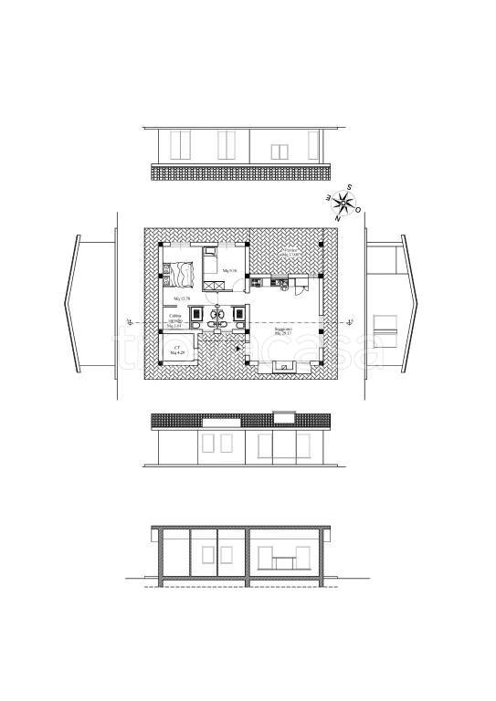
Fara in Sabina – Campo Maggiore Vendesi villino da realizzare Vendesi villino da realizzare, di 82 mq su un unico livello con portico di 17 mq. Il villino si compone da soggiorno con angolo cottura, due camere da letto di cui una con cabina armadio, due bagni di cui uno interno alla camera matrimoniale. Terreno di circa 1.000 mq. Località Campo Maggiore, possibilità di visionare costruzioni simili già realizzate a pochi km di distanza. Distanze: Fara in Sabina 16 km; Poggio Mirteto 21 km; Stazione ferroviaria Fara in Sabina 16 km; Autostrada A1 Fiano Romano 13 km. VI CHIEDIAMO DI VERIFICARE CON ATTENZIONE TUTTE LE INFORMAZIONI DISPONIBILI PRIMA DI RICHIEDERE UN APPUNTAMENTO. CONSIGLIAMO DI VERIFICARE IL POSIZIONAMENTO DELL’IMMOBILE ED IL SUO CONTESTO. VI INVITIAMO A VISIONARE TUTTE LE FOTO, IL VIDEO ED IL VIRTUAL TOUR (OVE PRESENTE). RIMANIAMO A DISPOSIZIONE PER CHIARIRE EVENTUALI DUBBI; NON ESITARE A CHIEDERE! PREFERIBILMENTE SU WHATSAPP 0765268062

