Valutazione immobiliare indipendente, accurata e gratuita
L'Opinione di Caasa® per l'appartamento in vendita a Terracina a 460.000 € (cod.654f52b8)
Secondo Caasa, per l'appartamento in vendita a Terracina, la richiesta di 460.000 € è leggermente svantaggiosa rispetto agli annunci simili.
Analisi immobiliare
L'appartamento, situato nei pressi di Via Roma nella zona OMI B2, è proposto in vendita a
460.000 € per una
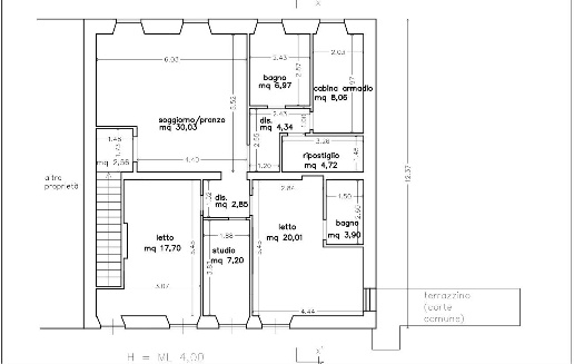
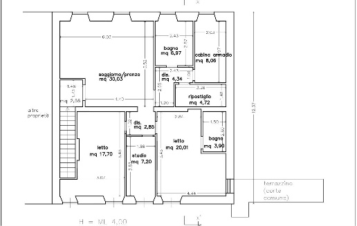
superficie commerciale di
140 m² e quindi ad un prezzo per metro quadrato pari a
3285 €/m²
.
Questo valore
è di poco superiore a quello stimato da Caasa per immobili in vendita simili per tipologia, caratteristiche, classe energetica e zona, che è compreso tra
2.945 €/m² e
3.181 €/m².
Considerata la posizione dell'appartamento si sono utilizzati in raffronto i valori medi nelle zone limitrofe . Ad affinare la stima ha contribuito anche la classe energetica (G) oltre alla conoscenza dello stato dell'immobile (di recente ristrutturazione che però è completamente contraddittorio con la classe energetica). Per questi motivi è possibile ottenere un intervallo di valori accettabili per l'offerta relativamente limitato.
Mercato immobiliare a Terracina
Per quanto riguarda più in generale la città di Terracina, sono presenti al momento circa mille annunci per
appartamenti in vendita (quasi il 20% dell'intera provincia)
e il maggior numero di annunci per questa tipologia sono relativi alla zona di Hermada.
Per quanto riguarda la dinamica dei prezzi, negli ultimi 6 mesi i prezzi medi in tutta la città per appartamenti in vendita sono
in leggera diminuzione (-2,97%).
NOVITÀ Il risultato che vedi dipende dai dati che siamo riusciti ad estrarre dall'annuncio: ottieni una stima più accuranta di questo immobile, inserendo dati più precisi.
N.B. L'Opinione di Caasa® è un servizio sperimentale realizzato tramite tecniche di Intelligenza Artificiale, fornito senza alcuna garanzia di correttezza e completezza. Leggi il disclaimer o segnalaci un problema.
IMMAGINI
IN SINTESI
PROPOSTO DA:
Anxurimmobiliare
DESCRIZIONE
di recente ristrutturazione di recente ristrutturazione con termocondizionamento con riscaldamento autonomo
In vendita un elegante appartamento situato nel cuore di Terracina, precisamente in Via Camillo Benso Cavour (prolungamento di Via Roma da piazza della Repubbica), in un contesto signorile e centralissimo. Questo spazioso immobile di 140 mq si trova al secondo piano e offre una disposizione interna ottimale con 7 vani, compresi 4 camere da letto e 2 bagni, perfetti per famiglie o per chi desidera ampi spazi. La cucina presente nel soggiorno doppio crea un ambiente accogliente e luminoso, ideale per momenti di convivialità. L'appartamento è in condizioni ottime, arredato con gusto e dotato di riscaldamento autonomo e aria condizionata, per garantire il massimo comfort in ogni stagione. L'ingresso indipendente aggiunge un ulteriore livello di privacy. Originariamente, prima della ristrutturazione eseguita di recente, era composto da due appartamenti con due accessi distinti per cui si con poco si potrebbe dividere nuovamente in due appartamenti di circa 70 mq. ciascuno. Non perdere l'opportunità di vivere in una delle zone più prestigiose di Terracina, a pochi passi da tutti i servizi e le bellezze della città. Contattaci per maggiori informazioni e per prenotare una visita o per ricevere le foto dell'interno. EPI: 1 kwh/m2 anno






