Valutazione immobiliare indipendente, accurata e gratuita
L'Opinione di Caasa® per l'appartamento in vendita a Latina a 210.000 € (cod.648e112f)
Secondo Caasa, per l'appartamento in vendita a Latina, la richiesta di 210.000 € è significativamente svantaggiosa rispetto agli annunci simili.
Analisi immobiliare
L'appartamento, situato nella zona OMI D2, è proposto in vendita a
210.000 € per una
superficie commerciale di
79 m² e quindi ad un prezzo per metro quadrato pari a
2658 €/m²
.
Tale valore
è decisamente superiore a quello stimato da Caasa per immobili in vendita simili per tipologia e caratteristiche e localizzati nella stessa zona OMI, che è compreso tra
2.097 €/m² e
2.263 €/m².
Grazie alla conoscenza con buona approssimazione della localizzazione dell'immobile, è stato possibile utilizzare come raffronto i dati medi elaborati esattamente nella zona OMI di appertenenza (VIE TORRE LA FELCE(P), MONTE TERMINILLO, GIONCHETTO, EPITAFFIO(P), PANTANACCI...). Anche se Caasa non è riuscita a determinare la classe energetica, ad affinare la stima hanno contribuito anche lo stato dell'immobile (di nuova costruzione) e la presenza di alcune caratteristiche significative come il garage. Per questi motivi i valori accettabili per l'offerta costituiscono un intervallo relativamente limitato.
Mercato immobiliare a Latina
Per quanto riguarda più in generale la città di Latina, sono presenti al momento ben oltre mille annunci per
appartamenti in vendita (meno di un terzo dell'intera provincia)
e il maggior numero di annunci per questa tipologia sono relativi alla zona di Centro Città.
La dinamica dei prezzi in tutta la città mostra che negli ultimi 6 mesi, i prezzi per appartamenti in vendita sono
in deciso aumento (+9,51%).
NOVITÀ Il risultato che vedi dipende dai dati che siamo riusciti ad estrarre dall'annuncio: ottieni una stima più accuranta di questo immobile, inserendo dati più precisi.
N.B. L'Opinione di Caasa® è un servizio sperimentale realizzato tramite tecniche di Intelligenza Artificiale, fornito senza alcuna garanzia di correttezza e completezza. Leggi il disclaimer o segnalaci un problema.
IMMAGINI
IN SINTESI
PROPOSTO DA:
GATTO SOLUZIONI IMMOBILIARI
DESCRIZIONE
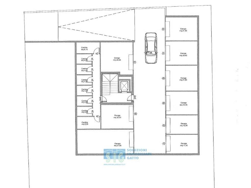
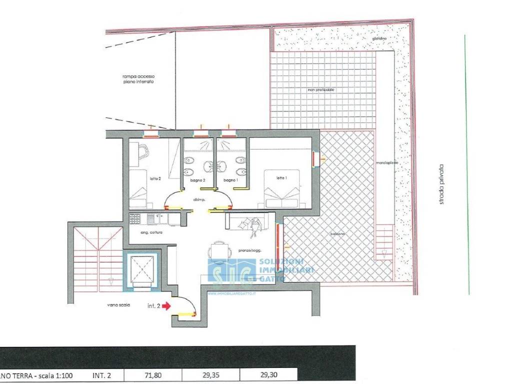
di nuova costruzione con posto auto con garage di nuova costruzione
Appartamenti di nuova costruzione! Il futuro della tua casa inizia qui! Scopri i nostri nuovi appartamenti, pensati per chi cerca un’abitazione moderna, autonoma e rispettosa dell’ambiente. Caratteristiche principali: Varie metrature con 2 camere da letto e 1 o 2 bagni. Ampi terrazzi, giardini privati e garage. Classe energetica elevata, progettati per garantire bassi costi di gestione e un alto risparmio energetico. Sostenibilità e comfort: Una casa efficiente che ti permette di risparmiare ogni giorno e di vivere in armonia con l’ambiente grazie alle dotazioni di ultima generazione inserite in questi immobili. Perfetta per tutti: Adatta a giovani famiglie, professionisti, coppie e a chiunque cerchi un’abitazione moderna e funzionale. Contattaci per scoprire tutti i dettagli e assicurarti un posto nel futuro dell’abitare

