Valutazione immobiliare indipendente, accurata e gratuita
Appartamento in vendita a Gaeta in zona Serapo a 345.000 € (cod.64f9e46b)
Caasa non ha sufficienti informazioni per commentare l'appartamento in vendita a Gaeta in zona Serapo - 64f9e46b.
Analisi immobiliare
I dati in posseso di Caasa per quest'immobile sono insufficienti, inaffidabili o contraddittori per proporre un'analisi attendibile.
Mercato immobiliare a Gaeta
Per quanto riguarda più in generale la città di Gaeta, sono presenti al momento oltre 500 annunci per
appartamenti in vendita (meno del 10% dell'intera provincia)
e il maggior numero di annunci per questa tipologia sono relativi proprio alla zona di Serapo.
La richiesta media nella zona dove sorge l'appartamento (Serapo) è pari a
3.870 €/m² e ne fa la più pregiata della città .
La dinamica dei prezzi in tutta la città mostra che negli ultimi 6 mesi, i prezzi per appartamenti in vendita sono
sostanzialmente stabili (-0,09%).
NOVITÀ Il risultato che vedi dipende dai dati che siamo riusciti ad estrarre dall'annuncio: ottieni una stima più accuranta di questo immobile, inserendo dati più precisi.
N.B. L'Opinione di Caasa® è un servizio sperimentale realizzato tramite tecniche di Intelligenza Artificiale, fornito senza alcuna garanzia di correttezza e completezza. Leggi il disclaimer o segnalaci un problema.
IMMAGINI
IN SINTESI
DESCRIZIONE
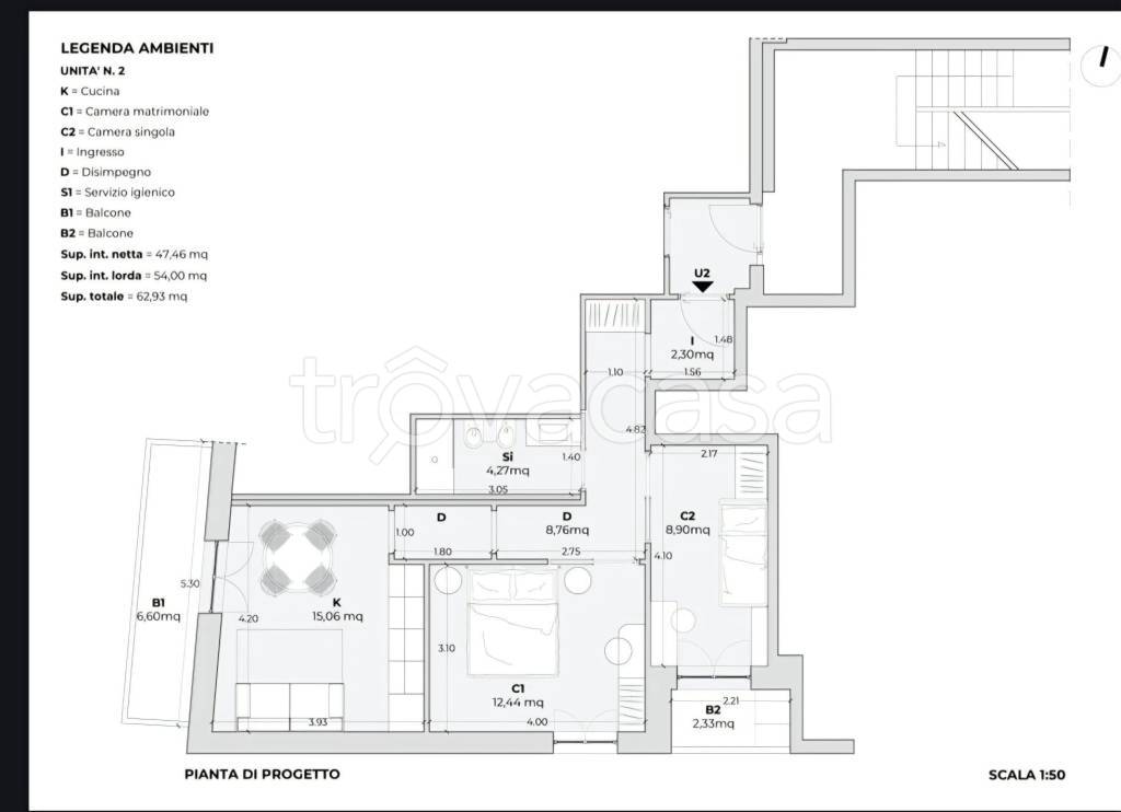
di recente ristrutturazione con terrazza con balcone di recente ristrutturazione con angolo cottura senza ascensore
Nel cuore della rinomata zona di Serapo, a due passi dal mare, proponiamo in vendita un delizioso appartamento in fase di completa ristrutturazione, situato al secondo piano e mezzo di un fabbricato recentemente riqualificato (senza ascensore). L'immobile è composto da: Luminoso soggiorno con angolo cottura e balcone con vista mare, camera da letto matrimoniale, cameretta, bagno, balcone arioso e panoramico. Ideale come seconda casa al mare o come forma di investimento a reddito, l’appartamento verrà consegnato completamente ristrutturato e arredato, con finiture moderne e impianti di ultima generazione: ? Climatizzazione caldo/freddo ? Piano cottura ad induzione ? Arredi su misura inclusi ?Pannello fotovoltaico per efficientamento energetico. Grazie alla posizione strategica, alla vicinanza alla spiaggia e alla qualità dell’intervento di ristrutturazione, questa soluzione rappresenta un’opportunità unica per vivere o investire nel cuore di Gaeta

