Valutazione immobiliare indipendente, accurata e gratuita
Appartamento in vendita a Fondi a 83.580 € (cod.64fafc9d)
Caasa non ha sufficienti informazioni per commentare l'appartamento in vendita a Fondi - 64fafc9d.
Analisi immobiliare
I dati in posseso di Caasa per quest'immobile sono insufficienti, inaffidabili o contraddittori per proporre un'analisi attendibile.
Mercato immobiliare a Fondi
Per quanto riguarda più in generale la città di Fondi, sono presenti al momento quasi 500 annunci per
appartamenti in vendita (meno del 10% dell'intera provincia)
e il maggior numero di annunci per questa tipologia sono relativi alla zona di Rio Claro.
Relativamente alla dinamica dei prezzi, possiamo dire che negli ultimi 6 mesi i prezzi medi in tutta la città per appartamenti in vendita sono
in sostanziale aumento (+7,21%).
NOVITÀ Il risultato che vedi dipende dai dati che siamo riusciti ad estrarre dall'annuncio: ottieni una stima più accuranta di questo immobile, inserendo dati più precisi.
N.B. L'Opinione di Caasa® è un servizio sperimentale realizzato tramite tecniche di Intelligenza Artificiale, fornito senza alcuna garanzia di correttezza e completezza. Leggi il disclaimer o segnalaci un problema.
IMMAGINI
IN SINTESI
DESCRIZIONE
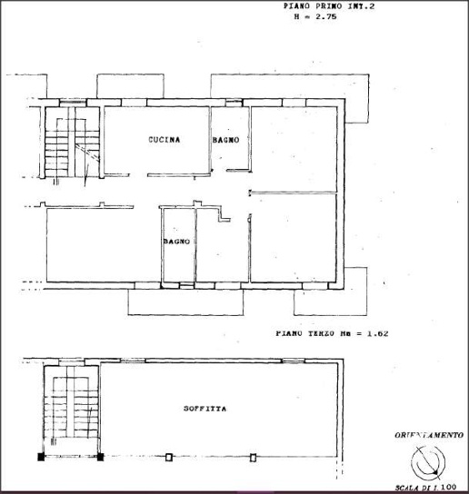
di nuova costruzione con posto auto con garage in asta giudiziaria di nuova costruzione
RIF. PID 96157) ACQUISTO TRAMITE PARTECIPAZIONE ASTA GIUDIZIARIA Fondi (LT) via S. Libertino Appartamento posto al primo piano compreso in un edificio a tre livelli fuori terra serviti da un corpo scala comune, senza portierato e con corte esclusiva […]
