Valutazione immobiliare indipendente, accurata e gratuita
Appartamento in vendita a Cisterna di Latina a 61.171 € (cod.658fac67)
Caasa non ha sufficienti informazioni per commentare l'appartamento in vendita a Cisterna di Latina - 658fac67.
Analisi immobiliare
I dati in posseso di Caasa per quest'immobile sono insufficienti, inaffidabili o contraddittori per proporre un'analisi attendibile.
Mercato immobiliare a Cisterna di Latina
Per quanto riguarda più in generale la città di Cisterna di Latina, sono presenti al momento oltre 500 annunci per
appartamenti in vendita (meno del 10% dell'intera provincia)
e il maggior numero di annunci per questa tipologia sono relativi alla zona di Olmobello.
La dinamica dei prezzi in tutta la città mostra che negli ultimi 6 mesi, i prezzi per appartamenti in vendita sono
in deciso aumento (+7,53%).
NOVITÀ Il risultato che vedi dipende dai dati che siamo riusciti ad estrarre dall'annuncio: ottieni una stima più accuranta di questo immobile, inserendo dati più precisi.
N.B. L'Opinione di Caasa® è un servizio sperimentale realizzato tramite tecniche di Intelligenza Artificiale, fornito senza alcuna garanzia di correttezza e completezza. Leggi il disclaimer o segnalaci un problema.
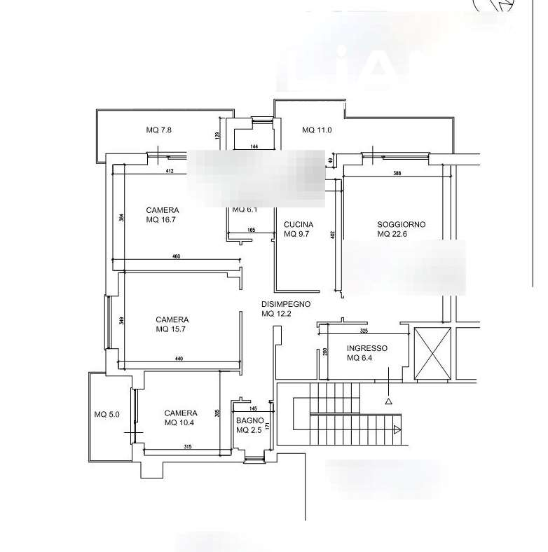
IMMAGINI
IN SINTESI
PROPOSTO DA:
Studio Giuliani Real Estate Srl
DESCRIZIONE
di nuova costruzione con balcone di nuova costruzione in asta giudiziaria
POSSIBILITA' DI ASSISTENZA PER TUTTI GLI IMMOBILI IN ASTA, ANCHE QUELLI NON PUBBLICATI DAL NOSTRO STUDIO. Cisterna di Latina via Appia Nuova, 99. Porzione immobiliare ad uso civile abitazione, sita al piano secondo, int. 7 della palazzina denominata B. OFFERTA MINIMA: 61.171,87 EURO DATA DELL'ASTA: 25/11/2025 12:00 Casa è dove si trova il cuore. (Plinio il vecchio) Con lo STUDIO GIULIANI REAL ESTATE il sogno diventa realtà! Il nostro team di professionisti offre assistenza, consulenza legale e stragiudiziale per tutti gli immobili in asta giudiziaria e libero mercato. I servizi offerti al nostro cliente sono molteplici: - Ricerca dell'immobile con valutazione immobiliare - Valutazione preliminare tecnica e studio della perizia con geometra in sede; - Valutazione economica con broker finanziario in sede con possibilità di mutuo fino al 100% del prezzo di aggiudicazione; - Prenotazione visita degli immobili oggetto di interesse tramite il custode giudiziario; - Partecipazione in asta, il cliente verrà seguito fino alla consegna delle chiavi; - Effettuiamo inoltre pratiche di saldo e stralcio e di acquisto del credito dai maggiori istituti bancari. - La nostra parcella è dovuta solo in caso di aggiudicazione. - Il nostro team è a vostra completa disposizione per fornirvi tutte le informazioni e per fissare un appuntamento per una consulenza gratuita. I dati inerenti l'immobile ed il materiale fotografico contenuti nel presente annuncio verranno confermati in sede di consulenza. Puoi consultare tutti gli immobili disponibili in aggiornamento quotidiano sul nostro sito


