Valutazione immobiliare indipendente, accurata e gratuita
Appartamento in vendita ad Aprilia a 51.697 € (cod.6597436a)
Caasa non ha sufficienti informazioni per commentare l'appartamento in vendita ad Aprilia - 6597436a.
Analisi immobiliare
I dati in posseso di Caasa per quest'immobile sono insufficienti, inaffidabili o contraddittori per proporre un'analisi attendibile.
Mercato immobiliare ad Aprilia
Per quanto riguarda più in generale la città di Aprilia, sono presenti al momento ben circa mille annunci per
appartamenti in vendita (quasi il 20% dell'intera provincia)
e il maggior numero di annunci per questa tipologia sono relativi alla zona di Fossignano.
Possiamo inoltre considerare che in tutta la città negli ultimi 6 mesi, i prezzi per appartamenti in vendita sono
sostanzialmente stabili (+0,59%).
NOVITÀ Il risultato che vedi dipende dai dati che siamo riusciti ad estrarre dall'annuncio: ottieni una stima più accuranta di questo immobile, inserendo dati più precisi.
N.B. L'Opinione di Caasa® è un servizio sperimentale realizzato tramite tecniche di Intelligenza Artificiale, fornito senza alcuna garanzia di correttezza e completezza. Leggi il disclaimer o segnalaci un problema.
IMMAGINI
IN SINTESI
PROPOSTO DA:
Studio Giuliani Real Estate Srl
DESCRIZIONE
di recente costruzione con posto auto con balcone in asta giudiziaria di recente costruzione
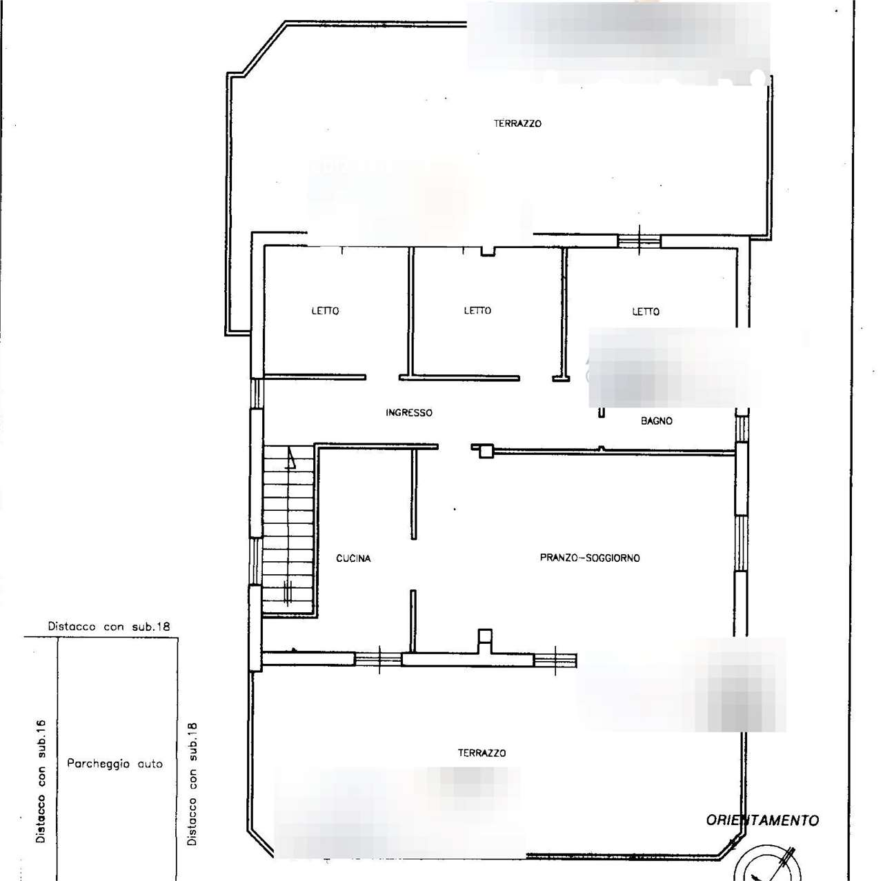
Aprilia via Giove. Abitazione di tipo civile, con annesso posto auto, posta al piano secondo, composta da ingresso, soggiorno, tre camere, cucina, bagno e due terrazzi sita in Aprilia, via Giove. OFFERTA MINIMA: 51.697,26 EURO DATA DELL'ASTA: 24/09/2024 11:00 Casa è dove si trova il cuore. (Plinio il vecchio) Con lo STUDIO GIULIANI REAL ESTATE il sogno diventa realtà! Il nostro team di professionisti offre assistenza, consulenza legale e stragiudiziale per tutti i beni mobili e immobili in asta giudiziaria. I servizi offerti al nostro cliente sono molteplici: Ricerca dell'immobile con valutazione immobiliare Valutazione preliminare tecnica e studio della perizia con geometra in sede Valutazione economica con broker finanziario in sede con possibilità di mutuo fino al 100% del prezzo di aggiudicazione Prenotazione visita degli immobili oggetto di interesse tramite il custode giudiziario Partecipazione in asta, il cliente verrà seguito fino alla consegna delle chiavi Effettuiamo inoltre pratiche di saldo e stralcio e di acquisto del credito dai maggiori istituti bancari. La nostra parcella è dovuta solo in caso di aggiudicazione. Il nostro team è a vostra completa disposizione per fornirvi tutte le informazioni e per fissare un appuntamento per una consulenza gratuita presso le nostre sedi di Velletri e Nettuno. I dati inerenti l'immobile ed il materiale fotografico contenuti nel presente annuncio verranno confermati in sede di consulenza con la documentazione aggiornata disponibile. Puoi consultare tutti gli immobili disponibili in aggiornamento quotidiano sul nostro sito Studio Giuliani Real Estate Velletri Via Eduardo De Filippo 2b Nettuno Via Santa Maria 4 Telefono 06/87607612 Cell Mail Seguici Su Facebook


