N.B. Tutti le informazioni immobiliari sono fornite senza alcuna garanzia. Leggi il disclaimer.
Capannoni o locali commerciali o locali di sgombero o terreni edificabili o uffici in asta giudiziaria e con terrazza, di recente costruzione in vendita a Pieve di Teco - pg. 2 di 2
MODIFICA QUESTA RICERCARustico in vendita a Pieve di Teco, Nirasca PREMIUM
Proposto da:
Proponiamo in vendita rustico ristrutturato a Pieve di Teco frazione Nirasca. La casa semi indipendente si sviluppa su tre piani; ed' stata oggetto di una parziale ristrutturazione negli anni passati. Al piano terreno troviamo i magazzini c […]
LEGGI ANCORA
- prezzo medio casa semindipendente in zona OMI B1 : 963 €/m²
- prezzo medio casa indipendente in zona OMI B1 : 1046 €/m²
Palazzo in vendita a Pieve di Teco via De Filippi s.n.c
locale di sgombero
Palazzo Nobile si trova nel centro storico dell’incantevole borgo ligure di Pieve di Teco. La posizione è tranquilla e soleggiata e direttamente accessibile in auto, con posti auto nelle immediate vicinanze. Molte famiglie internazionali hanno investito nella loro residenza primaria o secondaria a Pieve […]
LEGGI ANCORA
Vendita Box Pieve di Teco
locale di sgombero 98.400 €
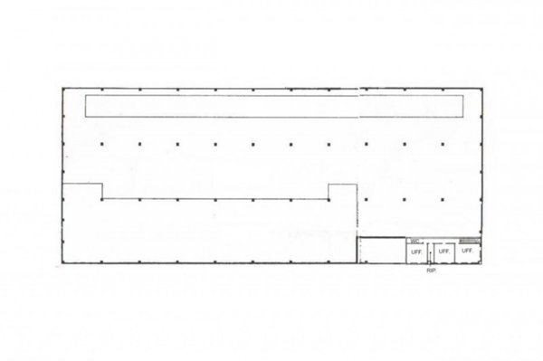
Quest'immobile viene venduto tramite asta online. Ampio spazio per rimessaggio per autobus, a Pieve di Teco (IM), Via Nazionale, 21 Questo immobile di remota costruzione, si presenta con una forma rettangolare, si estende da Ponente a Levante, seguendo il tracciato della strada. La copertura è principalm […]
LEGGI ANCORA
Capannone industriale in vendita a Pieve di Teco via Nazionale, 21
locale di sgombero 98.400 €
Licenza ai sensi ex art. 115 TULPS rilasciata dalla Questura di Alessandria in data 22/06/2022 Asteadvisor propone * : LOTTO UNICO: Riferimento IM2/2021 - DATA ASTA: 12/12/2025 - ore 10:30 Pieve di Teco (IM) - Via Nazionale 21 Trattasi di ampio spazio per rimessaggio per autobus ubicato in pieno centro c […]
LEGGI ANCORA
Box/posto auto in vendita a Pieve di Teco via Nazionale, 21
terreno edificabile 98.400 €
ampio spazio per rimessaggio per autobus, a pieve di teco (im), via nazionale, 21. superficie commerciale: 390 mq. altezza esterna lorda: variabile da 3,20 m a 5,50 m NEOVIT LIGURIA, affiliato in esclusiva per la Liguria di NEOVIT CONSULTING, assiste i Clienti e semplifica il percorso per l'acquisto di i […]
LEGGI ANCORA
- prezzo medio appartamento in zona OMI B1 : 1028 €/m²
- prezzo medio casa indipendente in zona OMI B1 : 1046 €/m²
Non perdere gli altri 4 annunci!




