N.B. Tutti le informazioni immobiliari sono fornite senza alcuna garanzia. Leggi il disclaimer.
Locali di sgombero o negozi in vendita a Serra Riccò in zona Serra - pg. 3 di 3
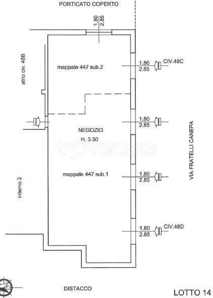
MODIFICA QUESTA RICERCANegozio in vendita a Serra Riccò via Fratelli Canepa, 48, Pedemonte
negozio Pedemonte 92.476 €
PIENA PROPRIETA' DI LOCALE AD USO NEGOZIO (ATTUALMENTE FARMACIA) A SERRA RICCO' IN VIA FRATELLI CANEPA 48A AL PIANO TERRA COMPOSTO DA ZONA VENDITA, RETRO E BAGNO CON ANTIBAGNO. SUPERFICIE CATASTALE 94 MQ. L'immobile viene venduto dal tribunale tramite asta giudiziaria e il prezzo indicato si riferisce a […]
LEGGI ANCORA
Via Privata Don Mario Bordo 9 trilocale 353mq
negozio 133.088 €
Via Privata Don Mario Bordo 9 trilocale 353mq Serra Ricco Genova Liguria piena proprieta di locale ad uso a serra ricco in via privata don mario bordo 9-11 al piano terra composto da grande locale con annesso bagno e antibagno e locale ad uso ufficio. superficie catastale 353 mq - il prezzo visualizzato […]
LEGGI ANCORA
- prezzo medio appartamento in zona OMI B1 : 1213 €/m²
- prezzo medio trivano in zona OMI B1 : 1238 €/m²
Vendesi magazzino a Serra Riccò, Pedemonte
locale di sgombero Pedemonte 40.364 €
PIENA PROPRIETA' DI LOCALE CARRABILE AD USO MAGAZZINO A SERRA RICC0' (GE) IN VIA ALESSANDRO PEDEMONTE CIV. 1 A AL PIANO SEMINTERRATO COMPOSTO DA UN UNICO LOCALE. SUPERFICIE CATASTALE 82 MQ. L'immobile viene venduto dal tribunale tramite asta giudiziaria e il prezzo indicato si riferisce all'offerta minim […]
LEGGI ANCORA
- prezzo medio appartamento in zona OMI B1 : 1213 €/m²
- prezzo medio casa indipendente in zona OMI B1 : 1511 €/m²
Immobile in asta di 1766 m in vendita a Serra Ricc
negozio Serra
Complesso immobiliare in asta a Serra Riccò (GE) – Via Natale Torre 29 (CAP 16015) Il complesso immobiliare, ubicato in Via Natale Torre 29 a Serra Riccò (GE), si inserisce in un contesto urbanistico misto. L'edificio principale era un salumificio con annessa abitazione, edificato a partire dal 1959 con […]
LEGGI ANCORA
Magazzino in vendita a Serra Riccò, Pedemonte
locale di sgombero Pedemonte 26.431 €
PIENA PROPRIETA' DI MAGAZZINO A SERRA RICCO' (GE) IN VIA ALESSANDRO PEDEMONTE CIV. 1B AL PIANO TERRA CON ANNESSO BAGNO. SUPERFICIE CATASTALE 83 MQ. L'immobile viene venduto dal tribunale tramite asta giudiziaria e il prezzo indicato si riferisce all'offerta minima. Per chi acquista come prima casa, sono […]
LEGGI ANCORA
- prezzo medio appartamento in zona OMI B1 : 1213 €/m²
- prezzo medio casa indipendente in zona OMI B1 : 1511 €/m²
Villa singola in vendita a Serra Riccò via Liquara, 10G, Pedemonte PREMIUM
Pedemonte, Via Liquara, subito dopo la chiesa della Santissima Annunziata, a pochi minuti di macchina dal centro di Pedemonte ed a tutti i servizi, proponiamo in vendita splendida villetta in perfette condizioni che permette di poter vivere […]
LEGGI ANCORA
- prezzo medio casa indipendente in zona OMI B1 : 1511 €/m²
- prezzo medio villa in zona OMI B1 : 1787 €/m²
Magazzino in vendita a Serra Riccò via Fratelli Canepa, 48, Pedemonte
locale di sgombero Pedemonte 38.200 €
Magazzino in asta a Serra Riccò (GE) – Via Fratelli Canepa 48 (CAP 16010) L'immobile in asta è un magazzino situato a Serra Riccò (GE), in Via Fratelli Canepa civ. 48, in un fabbricato edificato antecedentemente al 1967. Si trova in un contesto urbanistico ricadente in zona B secondo il PRG vigente e nel […]
LEGGI ANCORA
Magazzino in vendita a Serra Riccò via Fratelli Canepa, 48, Pedemonte
locale di sgombero Pedemonte 38.205 €
PIENA PROPRIETA' DI LOCALE AD USO MAGAZZINO A SERRA RICCO' (GE) IN VIA FRATELLI CANEPA CIV. 48, TRASFORMATO PARZIALMENTE IN LOCALI AD USO COMMERCIALE, POSTO AL PIANO SEMINTERRATO. SUPERFICIE CATASTALE 109 MQ. L'immobile viene venduto dal tribunale tramite asta giudiziaria e il prezzo indicato si riferisc […]
LEGGI ANCORA
- prezzo medio appartamento in zona OMI B1 : 1213 €/m²
- prezzo medio casa indipendente in zona OMI B1 : 1511 €/m²
Non perdere gli altri 25 annunci!




