N.B. Tutti le informazioni immobiliari sono fornite senza alcuna garanzia. Leggi il disclaimer.
Negozi con garage e con posto auto e con termocondizionamento in vendita a Serra Riccò in zona San Cipriano
MODIFICA QUESTA RICERCAVendesi appartamento a Serra Riccò via Giuseppe Cassissa, 39, Pedemonte PREMIUM
- prezzo medio appartamento in zona OMI B1 : 1191 €/m²
- prezzo medio casa indipendente in zona OMI B1 : 1508 €/m²
Vendesi appartamento a Serra Riccò via Giuseppe Cassissa, 39, Pedemonte
negozio Pedemonte 128.000 €
Casa in vendita a San Cipriano (Genova), appartamento con giardino, box, magazzino e accesso indipendente Nel caratteristico borgo di San Cipriano, prima collina della Valpolcevera, proponiamo in vendita una proprietà molto particolare e completa, situata direttamente sulla piazza del paese, in contesto […]
LEGGI ANCORA
- prezzo medio appartamento in zona OMI B1 : 1191 €/m²
- prezzo medio casa indipendente in zona OMI B1 : 1508 €/m²
Vendita garage/box via domenico carli Serra Riccò (GE
Proposto da:
negozio San Cipriano 55.000 €
SERRA RICCO' ( SAN CIPRIANO) Scopri un'opportunità unica nel cuore di Serra Riccò! Questo ampio box di 40 mq catastali offre uno spazio ideale per parcheggiare anche i mezzi più grandi o per essere utilizzato in modi diversi. Situato in una posizione centrale, è circondato da comodità come il ristorante […]
LEGGI ANCORA
Immobile in vendita a Serra Riccò(GE
Vendesi negozio a Serra Riccò via Fratelli Canepa, Pedemonte
negozio Pedemonte
Castagna - Via Fratelli Canepa 36 novità sul mercato! Proponiamo in vendita locale commerciale MQ. 300 piano strada con n.9 VETRINE , BAGNO e UFFIICIO. N.4 POSTI AUTO fronte locale. Magazzino sottostante MQ. 280 più piazzale annesso mq. 300 con facile spazio di manovra. N.2 BOX rispettivamente di 18 e 20 […]
LEGGI ANCORA
San Cipriano (centralissimi
negozio San Cipriano 118.000 €
Da Privato. San Cipriano (centralissimi) 45 mq liberi ampia cucina, camera matrimoniale, dispensa, bagno, ordinatissimi, termoautonomi, entrata indipendente carrabile con due postiauto, terrazzo, orto, fermata autobus e negozio alimentari a 50 mt., panoramici, soleggiatissimi, ottimo anche come investime […]
LEGGI ANCORA
- prezzo medio appartamento in zona San Cipriano : 1294 €/m²
- prezzo medio appartamento a Serra Riccò : 1197 €/m²
Casa indipendente in vendita a Serra Riccò(GE PREMIUM
- prezzo medio casa indipendente in zona OMI B1 : 1508 €/m²
- prezzo medio casa semindipendente in zona OMI B1 : 1519 €/m²
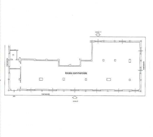
Vendita negozio Via Privata Don Mario Bordo Serra Riccò (GE
negozio 133.088 €
PIENA PROPRIETA' DI LOCALE AD USO NEGOZIO A SERRA RICCO' IN VIA PRIVATA DON MARIO BORDO 9-11 AL PIANO TERRA COMPOSTO DA GRANDE LOCALE CON ANNESSO BAGNO E ANTIBAGNO E LOCALE AD USO UFFICIO. SUPERFICIE CATASTALE 353 MQ. L'immobile viene venduto dal tribunale tramite asta giudiziaria e il prezzo indicato si […]
LEGGI ANCORA
Vendita altro Via Fratelli Canepa 76 Serra Riccò (GE
negozio 108.974 €
PIENA PROPRIETA' DI LOCALE AD USO NEGOZIO A SERRA RICCO' (GE) IN VIA FRATELLI CANEPA 76A-76C-76D AL PIANO TERRA CON ANNESSO SERVIZIO IGIENICO. SUPERFICIE CATASTALE 202 MQ. - Il Prezzo visualizzato è la Base d'Asta in quanto l’immobile è oggetto di esecuzione immobiliare venduto tramite Asta Giudiziaria. […]
LEGGI ANCORA
Vendita Locale commerciale Serra Ricc
negozio Serra 71.853 €
PIENA PROPRIETA' DI LOCALE AD USO NEGOZIO A SERRA RICCO' (GE) IN VIA FRATELLI CANEPA CIV. 48C-48 D AL PIANO TERRA COMPOSTO DA DUE UNITA' IMMOBILIARI DI SUPERCIFIE CATASTALE, RISPETTIVAMENTE, 70 MQ E 32 MQ. - Il Prezzo visualizzato è la Base d'Asta in quanto l'immobile è oggetto di esecuzione immobiliare […]
LEGGI ANCORA
Vendita altro Via Privata Don Mario Bordo 9 Serra Riccò (GE
negozio 133.088 €
PIENA PROPRIETA' DI LOCALE AD USO NEGOZIO A SERRA RICCO' IN VIA PRIVATA DON MARIO BORDO 9-11 AL PIANO TERRA COMPOSTO DA GRANDE LOCALE CON ANNESSO BAGNO E ANTIBAGNO E LOCALE AD USO UFFICIO. SUPERFICIE CATASTALE 353 MQ - Il Prezzo visualizzato è la Base d'Asta in quanto l’immobile è oggetto di esecuzione […]
LEGGI ANCORA
Negozio in vendita a Serra Riccò, Pedemonte
negozio Pedemonte 133.087 €
PIENA PROPRIETA' DI LOCALE AD USO NEGOZIO A SERRA RICCO' IN VIA PRIVATA DON MARIO BORDO 9-11 AL PIANO TERRA COMPOSTO DA GRANDE LOCALE CON ANNESSO BAGNO E ANTIBAGNO E LOCALE AD USO UFFICIO. SUPERFICIE CATASTALE 353 MQ. L'immobile viene venduto dal tribunale tramite asta giudiziaria e il prezzo indicato si […]
LEGGI ANCORA
Vendesi appartamento a Serra Riccò via Giuseppe Cassissa, 39, Pedemonte PREMIUM
- prezzo medio appartamento in zona OMI B1 : 1191 €/m²
- prezzo medio casa indipendente in zona OMI B1 : 1508 €/m²
Negozio in vendita a Serra Riccò, Pedemonte
negozio Pedemonte 133.080 €
Riferimento: 4506784 Via Privata Don Mario Bordo, 9, 16010 Pedemonte GE, Italia, 16010 Serra Riccò Genova Lotto: 12 PIENA PROPRIETA' DI LOCALE AD USO NEGOZIO A SERRA RICCO' IN VIA PRIVATA DON MARIO BORDO 9-11 AL PIANO TERRA COMPOSTO DA GRANDE LOCALE CON ANNESSO BAGNO E ANTIBAGNO E LOCALE AD USO UFFICIO. […]
LEGGI ANCORA
Negozio in vendita a Serra Riccò, Pedemonte
negozio Pedemonte 133.087 €
Via Privata Don Mario Bordo,, 16010 Pedemonte GE, Italia, Serra Riccò (Genova) - PIENA PROPRIETA' DI LOCALE AD USO NEGOZIO A SERRA RICCO' IN VIA PRIVATA DON MARIO BORDO 9-11 AL PIANO TERRA COMPOSTO DA GRANDE LOCALE CON ANNESSO BAGNO E ANTIBAGNO E LOCALE AD USO UFFICIO. SUPERFICIE CATASTALE 353 MQ - VUOI […]
LEGGI ANCORA
Negozio in vendita a Serra Ricc
negozio Serra
RIFERIMENTO; 4450293 Asta scaduta: L’immobile non è più disponibile, ma ci sono oltre 20.000 aste attive e spesso ancora più convenienti. Contattaci ora: ti aiutiamo a trovare la tua prossima occasione o a ricevere maggiori informazioni. SERRA RICCO' (GE) ,Via Privata Don Mario Bordo, 9 ; PIENA PROPRIETA […]
LEGGI ANCORA











