N.B. Tutti le informazioni immobiliari sono fornite senza alcuna garanzia. Leggi il disclaimer.
Locali di sgombero con ascensore e in asta giudiziaria e con balcone e senza ascensore in vendita a Ronco Scrivia in zona Borgo Fornari
MODIFICA QUESTA RICERCAesavano in vendita a Ronco Scrivia PREMIUM
- prezzo medio appartamento in zona OMI B1 : 628 €/m²
- prezzo medio appartamento a Ronco Scrivia : 614 €/m²
locale di sgombero in vendita a Ronco Scrivia in zona Borgo Fornari
locale di sgombero Borgo Fornari
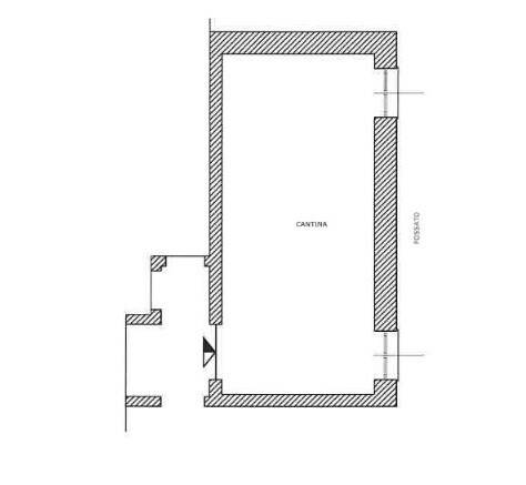
Riferimento: 4531328 C. so Trento e Trieste, 174, 16019 Borgo Fornari GE, Italia, 16019 Ronco Scrivia Genova Lotto: 1 lotto composto da piena proprietà di magazzino ubicato in Ronco Scrivia (Ge), frazione di Borgo Fornari, Corso Trento e Trieste, edificio 174, piano 1° S, superficie commerciale mq 27,70 […]
LEGGI ANCORA
Vendita Magazzino Ronco Scrivia
locale di sgombero Borgo Fornari 4.350 €
Piena proprietà di magazzino ubicato in Ronco Scrivia (Ge), frazione di Borgo Fornari, Corso Trento e Trieste, edificio 174, piano 1° S, superficie commerciale mq 27,70 ed altezza m. 3, che si sviluppa occupando una porzione del piano interrato dell'edificio; sono presenti due finestrelle sul lato est. - […]
LEGGI ANCORA
IMMOBILI-IMMOBILE COMMERCIALE-C.so trento e trieste, 174, 16019 borgo fornari ge, italia
locale di sgombero Borgo Fornari
Vendita all'asta Senza incanto, con gara telematica sincrona mista - LOTTO 1: lotto composto da piena propriet di magazzino ubicato in Ronco Scrivia (Ge), frazione di Borgo Fornari, Corso Trento e Trieste, edificio 174, piano 1 S, superficie commerciale mq 27,70 ed altezza m. 3, che si sviluppa occupando […]
LEGGI ANCORA
Magazzino in vendita a Borgo Fornari, Ronco Scrivia
locale di sgombero Borgo Fornari
lotto composto da piena proprietà di magazzino ubicato in ronco scrivia (ge), frazione di borgo fornari, corso trento e trieste, edificio 174, piano 1° s, superficie commerciale mq 27,70 ed altezza m. 3, che si sviluppa occupando una porzione del piano interrato dell’edificio; sono presenti due finestrel […]
LEGGI ANCORA
Magazzino in vendita a Borgo Fornari, Ronco Scrivia
locale di sgombero Borgo Fornari
C.so Trento e Trieste, , 16019 Borgo Fornari GE, Italia, Ronco Scrivia (Genova) - lotto composto da piena proprietà di magazzino ubicato in Ronco Scrivia (Ge), frazione di Borgo Fornari, Corso Trento e Trieste, edificio 174, piano 1° S, superficie commerciale mq 27,70 ed altezza m. 3, che si sviluppa occ […]
LEGGI ANCORA










