N.B. Tutti le informazioni immobiliari sono fornite senza alcuna garanzia. Leggi il disclaimer.
Attività commerciale in vendita a Recco PREMIUM
bilocale 60mq
negozio 190.000 €
bilocale 60mq Recco Genova Liguria recco- cedesi avviatissima attivit di bar caffetteria con annessa tavola fredda rivendita tabacchi lottomatica servizio biglietteria e possibilit di rivendita articoli di cartoleria giocattoli bigiotteria ed altro. posizione strategica su strada di forte passaggio canon […]
LEGGI ANCORA
- prezzo medio appartamento in zona OMI C1 : 4863 €/m²
- prezzo medio appartamento a Recco : 3564 €/m²
Appartamento in vendita a Recco via Roma
- prezzo medio appartamento a Recco : 3564 €/m²
Vendita Ristorante Recco
negozio 350.211 €
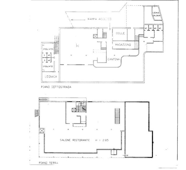
Locale ristorante in Recco, Via dei Giustiniani 48, edificio 1. Il ristorante con locale veranda è sito al piano terra del fabbricato, al primo pano sotto strada è ubicato il locale cucina, la cantina, il magazzino, gli spogliatoi, i servizi igienici, la legnaia e uno spazio attrezzato con tavolini per l […]
LEGGI ANCORA
Ristorante a Recco
negozio 262.658 €
Locale ristorante in Recco, Via dei Giustiniani 48, edificio 1. Il ristorante con locale veranda è sito al piano terra del fabbricato, al primo pano sotto strada è ubicato il locale cucina, la cantina, il magazzino, gli spogliatoi, i servizi igienici, la legnaia e uno spazio attrezzato con tavolini per l […]
LEGGI ANCORA
IMMOBILI-IMMOBILE COMMERCIALE-Via dei giustiniani 48
negozio 350.211 €
Vendita all'asta Senza incanto, con gara telematica sincrona mista - LOTTO UNICO: locale ristorante in Recco, Via dei Giustiniani 48, edificio 1. Il ristorante con locale veranda è sito al piano terra del fabbricato, al primo pano sotto strada è ubicato il locale cucina, la cantina, il magazzino, gli spo […]
LEGGI ANCORA
Negozio in vendita a Recco via dei Giustiniani , 48
negozio 262.658 €
Il RIATORANTE in asta situato nel comune di Recco, in Via dei Giustiniani, rappresenta un'opportunità unica nel panorama immobiliare della zona. Con un prezzo di partenza di 262.658,33 euro, questo immobile di si estende su una superficie di 830,13 mq, distribuiti su 10 vani e dotato di 6 bagni. Posizion […]
LEGGI ANCORA
Negozio in vendita a Recco via dei Giustiniani
negozio 262.658 €
Locale ristorante in Recco, Via dei Giustiniani 48, edificio 1. Il ristorante con locale veranda è sito al piano terra del fabbricato, al primo pano sotto strada è ubicato il locale cucina, la cantina, il magazzino, gli spogliatoi, i servizi igienici, la legnaia e uno spazio attrezzato con tavolini per l […]
LEGGI ANCORA
Negozio in vendita a Recco via dei Giustiniani, 48
negozio 350.211 €
Vendita all'asta Senza incanto, con gara telematica sincrona mista - LOTTO UNICO: locale ristorante in Recco, Via dei Giustiniani 48, edificio 1. Il ristorante con locale veranda è sito al piano terra del fabbricato, al primo pano sotto strada è ubicato il locale cucina, la cantina, il magazzino, gli spo […]
LEGGI ANCORA
Negozio in vendita a Recco via dei Giustiniani, 48
negozio 262.650 €
RIFERIMENTO; 4467969 Via dei Giustiniani 48, 16036 Recco Genova LOTTO UNICO locale ristorante in Recco, Via dei Giustiniani 48, edificio 1. Il ristorante con locale veranda è sito al piano terra del fabbricato, al primo pano sotto strada è ubicato il locale cucina, la cantina, il magazzino, gli spogliato […]
LEGGI ANCORA
Vendesi negozio a Recco via dei Giustiniani, 48
negozio 262.658 €
TRIBUNALE DI GENOVA esecuzione immobiliare post legge 80 36/2023 - LOTTO UNICO Vuoi acquistare questo immobile all'asta? Attiva gratuitamente il servizio di consulenza e semplifica gli ostacoli burocratici. Proposta di vendita di: locale ristorante in Recco_ Via dei Giustiniani 48_ edificio 1. Il ristora […]
LEGGI ANCORA
Vendesi villa singola a Recco PREMIUM
Negozio in vendita a Recco via dei Giustiniani, 48
negozio 262.658 €
locale ristorante in recco, via dei giustiniani 48, edificio 1. il ristorante con locale veranda è sito al piano terra del fabbricato, al primo pano sotto strada è ubicato il locale cucina, la cantina, il magazzino, gli spogliatoi, i servizi igienici, la legnaia e uno spazio attrezzato con tavolini per l […]
LEGGI ANCORA
Negozio in vendita a Recco via dei Giustiniani
negozio 262.658 €
Via dei Giustiniani, Recco (Genova) - locale ristorante in Recco, Via dei Giustiniani 48, edificio 1. Il ristorante con locale veranda è sito al piano terra del fabbricato, al primo pano sotto strada è ubicato il locale cucina, la cantina, il magazzino, gli spogliatoi, i servizi igienici, la legnaia e un […]
LEGGI ANCORA
Non perdere gli altri 12 annunci!









