N.B. Tutti le informazioni immobiliari sono fornite senza alcuna garanzia. Leggi il disclaimer.
Locali commerciali o negozi in vendita a Genova in zona Pegli
MODIFICA QUESTA RICERCAVilla unifamiliare in vendita a Genova PREMIUM
Pegli Lido - Via Scarpanto in posizione dominante villa su tre livelli di ampia metratura posizionata in contesto tranquillo e silenzioso ma allo stesso tempo a poca distanza da tutti i servizi e dalle spiagge di Pegli. La villa si presenta […]
LEGGI ANCORA
- prezzo medio casa indipendente in zona OMI D37 : 1306 €/m²
- prezzo medio casa indipendente in zona Pegli : 2348 €/m²
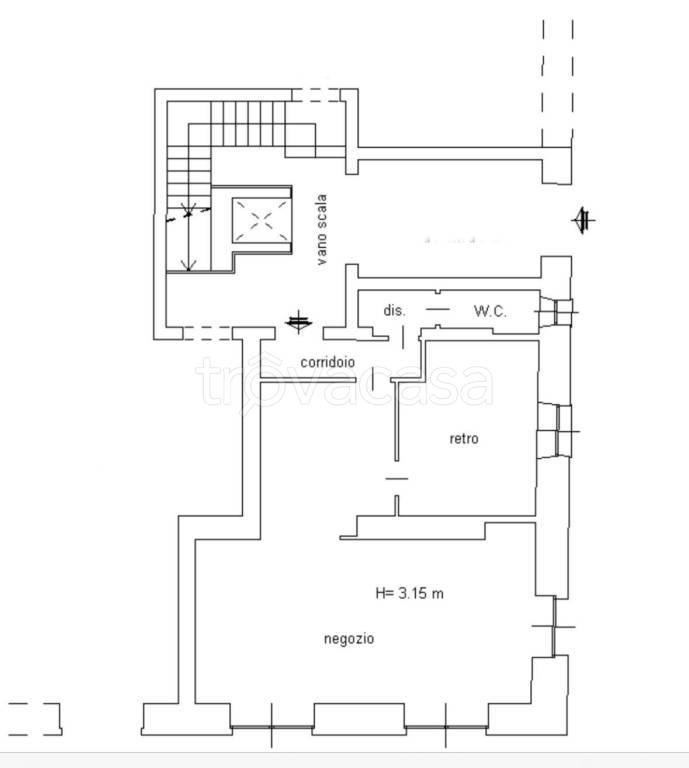
Vendita Negozio Via Luigi Rizzo Pegli, Genova, Genova
negozio Pegli Via Luigi Rizzo 105.000 €
NEGOZIO in vendita a PEGLI Via LUIGI RIZZO - In posizione comoda, situato nella parte iniziale della via, a circa 300 metri dal mare e a pochi passi dal cuore commerciale di Pegli e dalla stazione ferroviaria, proponiamo in vendita i MURI di un locale commerciale di 43 mq catastali e con una bella altezz […]
LEGGI ANCORA
Garage - Posto auto in vendita a Genova
negozio Pegli Via De Nicolay
Rif: 25606 - PEGLI CENTRO - In Via De Nicolay , in pieno centro Pegli ,in contesto privato, siamo lieti di proporvi un Box singolo con le seguenti dimensioni : Lunghezza mt 5.10 - Larghezza 2.80. Ottima la manovrabilità. Rara opportunità visto la mancanza di parcheggi. E' un' esclusiva STUDIOEMME. Prendi […]
LEGGI ANCORA
Garage - Posto auto in vendita a Genova
negozio Pegli Via della Maona
Rif: 23601 - PEGLI CENTRO - Nel Park di Via della Maona , nel cuore della delegazione siamo lieti di proporvi ultimo Box , situato al piano - 3. Il Box singol0 di mt. 5.10 x 2.80 , è possibile ottenere la serranda automatizzata , ottima manovrabilità con corridoi di 5 metri , è situato vicino al lavandin […]
LEGGI ANCORA
Garage - Posto auto in vendita a Genova
Garage - Posto auto in vendita a Genova
negozio Pegli Via Luigi Rizzo
Rif: 25602 - PEGLI - All'inizio di Via Rizzo , siamo lieti di proporvi un piccolo Box con le seguenti misure : Apertura mt. 2 - Lunghezza mt 6 - Larghezza mt 2.115 - Altezza mt 4. Purtroppo una colonna a meta' del Box preclude il parcheggio per quasi tutte le autovetture. infatti la lunghezza dall'ingres […]
LEGGI ANCORA
Vendesi negozio a Genova via Rexello, Pegli PREMIUM
Immobile in vendita a Genova(GE
Proposto da:
Immobile in vendita a Genova(GE
Immobile in vendita a Genova(GE
Immobile in vendita a Genova(GE
Negozio in vendita a Genova, Pegli
negozio Pegli Via Pegli
In vendita muri negozio in Genova, nella Via Pegli adiacente a Piazza Lido. Il negozio, situato al piano strada, ha una superficie di 25mq ed è dotato di un servizio igienico, una luce su strada oltre ad una finestra laterale. L'immobile si presta come piccolo ufficio e gode di una posizione strategica, […]
LEGGI ANCORA
Attività / Licenza in vendita a Genova(GE PREMIUM
Immobile in vendita a Genova(GE
Appartamento in villa in vendita a Genova
negozio Pegli Via Amerigo Vespucci 690.000 €
a Pegli nella tranquilla Via Vespucci proponiamo una splendida villa con ampio giardino di oltre 350 mq, scorci di vista mare ed un box singolo nei dintorni della stessa. Una proposta immobiliare nuova ed unica nel suo genere, una casa dai tratti e lo stile inconfondibile, in ottimo stato abitativo sia e […]
LEGGI ANCORA
- prezzo medio casa indipendente in zona OMI D41 : 2407 €/m²
- prezzo medio villa in zona OMI D41 : 2666 €/m²
Immobile in vendita a Genova(GE
Garage - Posto auto in vendita a Genova
negozio Pegli Via Emilio Salgari 75.000 €
Rif: 25607 - PEGLI In Via Salgari dietro i civici 9 e 11 , in contesto privato siamo lieti di proporvi una opportunità unica un Box di 25 Mq con annessa cantina sottostante . Ottima la manovrabilità. Edificio indipendente al Piano Strada . Nessuna spesa d'amministrazione Rara opportunità visto la mancanz […]
LEGGI ANCORA
Villa unifamiliare in vendita a Genova
negozio Pegli Via Scarpanto 1.150.000 €
Pegli Lido - Via Scarpanto in posizione dominante villa su tre livelli di ampia metratura posizionata in contesto tranquillo e silenzioso ma allo stesso tempo a poca distanza da tutti i servizi e dalle spiagge di Pegli. La villa si presenta con uno spazioso ingresso in cortile protetto da cancello elettr […]
LEGGI ANCORA
- prezzo medio casa indipendente in zona OMI D37 : 1306 €/m²
- prezzo medio casa indipendente in zona Pegli : 2348 €/m²
Villa unifamiliare in vendita a Genova PREMIUM
Pegli Lido - Via Scarpanto in posizione dominante villa su tre livelli di ampia metratura posizionata in contesto tranquillo e silenzioso ma allo stesso tempo a poca distanza da tutti i servizi e dalle spiagge di Pegli. La villa si presenta […]
LEGGI ANCORA
- prezzo medio casa indipendente in zona OMI D37 : 1306 €/m²
- prezzo medio casa indipendente in zona Pegli : 2348 €/m²
Complesso immobiliare
negozio Pegli Via Scarpanto 465.000 €
IMMOBILIARE PATERNA nuovo ufficio in PIAZZA DANTE 8/7 riceve su appuntamento, PROPONE IN ESCLUSIVA a Pegli sulle alture un complesso immobiliare, una grande opportunit per chi vuole un immobile che può avere svariate possibilit ! Ci troviamo in via Scarpanto dove il complesso di due piani è costituito da […]
LEGGI ANCORA
- prezzo medio casa indipendente in zona OMI R5 : 1459 €/m²
- prezzo medio casa semindipendente in zona OMI R5 : 1149 €/m²
Attico in vendita
Proposto da:
negozio Pegli Piazza Lido di Pegli 399.000 €
Piazza Lido di Pegli Nel cuore della piazza, proponiamo in vendita appartamento luminoso di 125 mq, situato all’ultimo piano di un palazzo dotato di ascensore. L'immobile è ben diviso tra zona giorno e zona notte ed è così composto: ingresso, doppio soggiorno con cucina a vista 3 camere da letto e 1 bagn […]
LEGGI ANCORA
- prezzo medio appartamento in zona OMI D40 : 2124 €/m²
- prezzo medio attico in zona OMI D40 : 2885 €/m²
locale commerciale in vendita a Genova in zona Pegli
locale commerciale Pegli 179.000 €
Occasione a reddito! Vp real estate propone a reddito locale commerciale nella zona centrale di Pegli, pluri vetrinato situato nel pieno centro di Pegli, esattamente a pochi passi dalla passeggiata mare, comodo alla stazione, zona ad alta densità di passaggio pedonale, comodo anche alla stazione ferrovi […]
LEGGI ANCORA
- prezzo medio locale commerciale in zona Pegli : 1128 €/m²
- prezzo medio locale commerciale a Genova : 1026 €/m²
Non perdere gli altri 91 annunci!





