N.B. Tutti le informazioni immobiliari sono fornite senza alcuna garanzia. Leggi il disclaimer.
Negozi, di nuova costruzione in vendita a Genova in zona Albaro - pg. 14 di 15
MODIFICA QUESTA RICERCAVendesi ristorante a Genova, Albaro
negozio Albaro
ALBARO PIZZERIA e GASTRONOMIA da asporto e in consegna a domicilio, In eccellente posizione di gran passaggio pedonale e veicolare, attività artigianale trentennale molto rinomata e di consolidata presenza, piccola consumazione in loco. La cessione avviene per motivi di anzianità di servizio. Condizioni […]
LEGGI ANCORA
NEGOZIO di 29 mq (GENOVA) rif. VIA NIZZA
negozio Via Nizza 38.000 €
ASTA TELEMATICA COD. A4312468 PROC 407/23 piena proprietà dell'immobile sito in Genova (GE), Via Nizza piano T, trattasi di locale commerciale soppalcato, con accesso anche da scale interne e con accesso esterno con saracinesca e una finestra sulla strada. MQ. EURO 38000,00 AGENTE FINANZIARIO IN SEDE. SO […]
LEGGI ANCORA
Vendesi negozio a Genova corso Aldo Gastaldi, Albaro
negozio Albaro Corso Aldo Gastaldi 204.790 €
Riferimento: 4501681 Corso Aldo Gastaldi, Genova GE, Italia, 16100 Genova Genova Lotto: LOTTO UNICO piena proprietà locale uso negozio piano terra composto da tre locali . Data di vendita: 22/01/2026 14:30 Offerta minima: € 204.790 Studio di Fattibilità Pre-Asta Offriamo consulenza legale completa per l' […]
LEGGI ANCORA
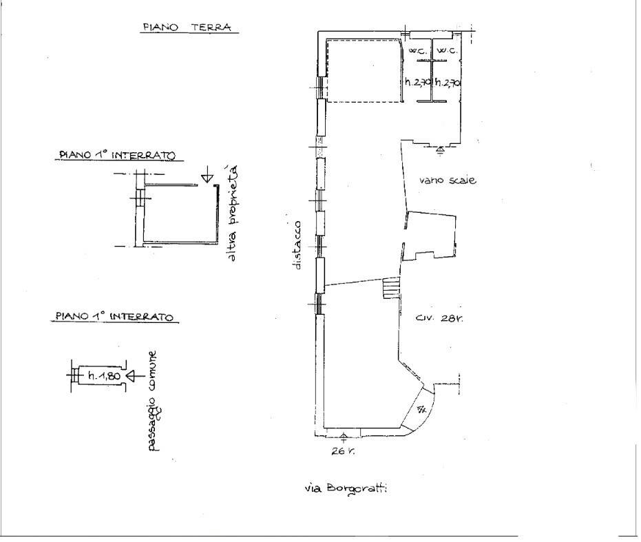
IMMOBILI-IMMOBILE COMMERCIALE-Via borgoratti, 26-28 r
negozio Via Borgoratti 136.590 €
Vendita all'asta Senza incanto, con gara telematica sincrona mista - LOTTO UNICO: Immobile commerciale ad uso negozio mq. complessivi 185. Prezzo base € 136.590,38 (offerta minima € 102.442,79). Data vendita 19/02/2026 ore 12:00. Professionista delegato alla vendita Rag. Carlo Alberto De Magistris - Tel. […]
LEGGI ANCORA
Vendita negozio Via Borgoratti 28 Genova (GE
negozio Via Borgoratti 102.443 €
Immobile commerciale ad uso negozio composto da due unità comunicanti, con annesse due cantine, per la superficie complessiva di mq. 190. L'immobile viene venduto dal tribunale tramite asta giudiziaria e il prezzo indicato si riferisce all'offerta minima. Per chi acquista come prima casa, sono previste a […]
LEGGI ANCORA
Immobile in vendita a Genova(GE PREMIUM
Vendita altro Via Borgoratti 26 R Genova (GE
negozio Via Borgoratti 102.443 €
Immobile commerciale ad uso negozio mq. complessivi 185. - Il Prezzo visualizzato è la Base d'Asta in quanto l’immobile è oggetto di esecuzione immobiliare venduto tramite Asta Giudiziaria. - L'immobile aggiudicato, viene venduto libero e sgombro da persone cose ed ipoteche nello stato di fatto e di diri […]
LEGGI ANCORA
Negozio in vendita a Genova corso Gastaldi, 123, Albaro
negozio Albaro Corso Aldo Gastaldi 69.406 €
Piena proprietà box auto secondo piano sottostrada con annesso cortile sito in genova corso gastaldi 123/r interno 1 piano s2 mq cinquantasette. L'immobile viene venduto dal tribunale tramite asta giudiziaria e il prezzo indicato si riferisce all'offerta minima. Per chi acquista come prima casa, sono pre […]
LEGGI ANCORA
IMMOBILI-IMMOBILE COMMERCIALE-Via dell'ombra, 4, 16132 genova ge, italia
negozio Via dell'Ombra 104.720 €
Vendita all'asta Senza incanto, con gara telematica sincrona mista - LOTTO UNICO: Piena ed intera propriet della seguente locale ad uso commerciale ubicato a Genova (GE), Via dell'Ombra, edificio 4, interno 3, piano 1. Prezzo base € 104.720,00 (offerta minima € 78.540,00). Data vendita 28/01/2026 ore 13: […]
LEGGI ANCORA
Negozio in vendita a Genova corso Gastaldi, Albaro
negozio Albaro Corso Aldo Gastaldi 204.795 €
Piena proprietà locale uso negozio piano terra composto da tre locali mq centotre corso gastaldi 117/r 119/r 121/r. L'immobile viene venduto dal tribunale tramite asta giudiziaria e il prezzo indicato si riferisce all'offerta minima. Per chi acquista come prima casa, sono previste agevolazioni. Cerchi ca […]
LEGGI ANCORA
- prezzo medio appartamento in zona OMI C04 : 2225 €/m²
- prezzo medio appartamento in zona Albaro : 3689 €/m²
Via dell´Ombra 5 monolocale 62mq
negozio Via dell'Ombra 102.094 €
Via dell´Ombra 5 monolocale 62mq Genova Genova Liguria garage ubicato a genova - via dellombra 5r cap 16132 - il prezzo visualizzato la base dasta in quanto limmobile oggetto di esecuzione immobiliare venduto tramite asta giudiziaria. - limmobile aggiudicato viene venduto libero e sgombro da persone cose […]
LEGGI ANCORA
- prezzo medio appartamento in zona OMI C05 : 2718 €/m²
- prezzo medio appartamento a Genova : 1851 €/m²
negozio in vendita a Genova in zona Foce PREMIUM
- prezzo medio ufficio in zona OMI C12 : 1793 €/m²
- prezzo medio ufficio in zona Foce : 2062 €/m²
Vendita Locale commerciale Genova
negozio Via Don Luigi Orione 23.050 €
Piena proprietà del locale commerciale (negozio) sito in Genova, Via Don Orione, interno 10 R, piano T, costituito da un locale a piano strada ed un locale fondi accessibile attraverso una scala interna. Munito di soppalco nel locale a piano strada e di servizio igienico a piano fondi, entrambi privi di […]
LEGGI ANCORA
- prezzo medio locale commerciale in zona OMI C03 : 764 €/m²
- prezzo medio locale commerciale a Genova : 1033 €/m²
Negozio in vendita a Genova via dell'Ombra, 4, Sturla
negozio Sturla Via dell'Ombra 78.440 €
Riferimento: 4487229 Via dell'Ombra, 4, 16132 Genova GE, Italia, 16132 Genova Genova Piena ed intera proprietà della seguente locale ad uso commerciale ubicato a Genova (GE), Via dell'Ombra, edificio 4, interno 3, piano 1. Trattasi di immobile ad uso commerciale sito in Genova - S. Martino facente parte […]
LEGGI ANCORA
Negozio in vendita a Genova corso Aldo Gastaldi
negozio Corso Aldo Gastaldi 307.190 €
Riferimento: 4487853 Asta scaduta: L’immobile non è più disponibile, ma ci sono oltre 20.000 aste attive e spesso ancora più convenienti. Contattaci ora: ti aiutiamo a trovare la tua prossima occasione o a ricevere maggiori informazioni. Corso Aldo Gastaldi, Genova GE, Italia, 16100 Genova Genova Lotto: […]
LEGGI ANCORA
Vendesi negozio a Genova corso Aldo Gastaldi
negozio Corso Aldo Gastaldi 35.880 €
RIFEREMENTO4452944 Asta scaduta: L’immobile non è più disponibile, ma ci sono oltre 20.000 aste attive e spesso ancora più convenienti. Contattaci ora: ti aiutiamo a trovare la tua prossima occasione o a ricevere maggiori informazioni. Corso Aldo Gastaldi, 125/127, 16145 Genova GE, Italia, Genova Genova […]
LEGGI ANCORA
Negozio in vendita a Genova, Sturla
negozio Sturla Via dell'Ombra 78.450 €
TRIBUNALE DI GENOVA espropriazione immobiliare (cartabia) 14/2025 - LOTTO UNICO Vuoi acquistare questo immobile all'asta? Attiva gratuitamente il servizio di consulenza e semplifica gli ostacoli burocratici. Proposta di vendita di: Piena ed intera proprietà della seguente locale ad uso commerciale ubicat […]
LEGGI ANCORA
Negozio in vendita a Genova, Borgoratti
negozio Via Borgoratti 102.440 €
Riferimento: 4495474 Via Borgoratti, 26-28 R, 16132 Genova GE, Italia, 16132 Genova Genova In Comune di Genova (GE), quota dell’intero della piena proprietà di immobile con destinazione commerciale ad uso negozio sito in Via Borgoratti 26r e 28r, costituito da due unità comunicanti censite a Catasto fabb […]
LEGGI ANCORA
Negozio in vendita a Genova, Sturla
negozio Sturla Via dell'Ombra 104.720 €
Vendita all'asta Senza incanto, con gara telematica sincrona mista - LOTTO UNICO: Piena ed intera proprietà della seguente locale ad uso commerciale ubicato a Genova (GE), Via dell'Ombra, edificio 4, interno 3, piano 1. Il numero dei vani è puramente indicativo perché non specificato nella documentazione […]
LEGGI ANCORA
Vendesi negozio a Genova, Borgoratti
negozio Via Borgoratti 102.443 €
TRIBUNALE DI GENOVA esecuzione immobiliare post legge 80 161/2021 - LOTTO UNICO Vuoi acquistare questo immobile all'asta? Attiva gratuitamente il servizio di consulenza e semplifica gli ostacoli burocratici. Proposta di vendita di: Immobile commerciale ad uso negozio mq. complessivi 185 Scopri il servizi […]
LEGGI ANCORA
Non perdere gli altri 239 annunci!











