Valutazione immobiliare indipendente, accurata e gratuita
L'Opinione di Caasa® per la casa indipendente in vendita ad Udine in zona San Rocco a 640.000 € (cod.659d1e27)
Secondo Caasa, per la casa indipendente ad Udine in zona San Rocco, la richiesta di 640.000 € è leggermente vantaggiosa rispetto agli annunci simili.
Analisi immobiliare
La casa indipendente, situata vicino a Viale Luigi Moretti nella zona OMI B4, è proposta in vendita a
640.000 € per una
superficie commerciale di
300 m² e quindi ad un prezzo per metro quadrato pari a
2133 €/m²
.
Tale valore
è un po' più basso di quello stimato da Caasa per immobili in vendita simili per tipologia e caratteristiche e localizzati nella stessa zona OMI, che è compreso tra
2.192 €/m² e
2.408 €/m².
Grazie alla conoscenza con buona approssimazione della localizzazione dell'immobile, è stato possibile utilizzare come raffronto i dati medi elaborati esattamente nella zona OMI di appertenenza (V.LE XXIII MARZO, V.LE TRIESTE, V.LE CACCIA, V.LE LEDRA, V.LE DUODO, V.T. CICONI) per case indipendenti (da 1.055 €/m² a 2.615 €/m²) e per case semindipendenti (da 1.225 €/m² a 2.515 €/m²). Anche se Caasa non è riuscita a determinare la classe energetica, ad affinare la stima ha contribuito anche lo stato dell'immobile (di recente ristrutturazione). Per queste ragioni i valori accettabili per l'offerta costituiscono un intervallo relativamente limitato.
Mercato immobiliare ad Udine
Per quanto riguarda più in generale la città di Udine, sono presenti al momento oltre 500 annunci per
case indipendenti in vendita (quasi il 20% dell'intera provincia)
e il maggior numero di annunci per questa tipologia sono relativi alla zona di Centro Storico, mentre la zona di San Rocco risulta molto meno attiva considerando il numero di annunci presenti.
La richiesta media nella zona dove sorge la casa indipendente (San Rocco pressi Viale Luigi Moretti) è pari a
1.690 €/m², molto vicina ai valori della zona Centro Storico che sono i più alti della città .
La dinamica dei prezzi in tutta la città mostra che negli ultimi 6 mesi, i prezzi per case indipendenti in vendita sono
in sostanziale aumento (+6,00%).
NOVITÀ Il risultato che vedi dipende dai dati che siamo riusciti ad estrarre dall'annuncio: ottieni una stima più accuranta di questo immobile, inserendo dati più precisi.
N.B. L'Opinione di Caasa® è un servizio sperimentale realizzato tramite tecniche di Intelligenza Artificiale, fornito senza alcuna garanzia di correttezza e completezza. Leggi il disclaimer o segnalaci un problema.
IMMAGINI
IN SINTESI
PROPOSTO DA:
IMMOBILIARE IN UDINE
DESCRIZIONE
di recente ristrutturazione di recente ristrutturazione con termocondizionamento con giardino con cucina abitabile con riscaldamento autonomo
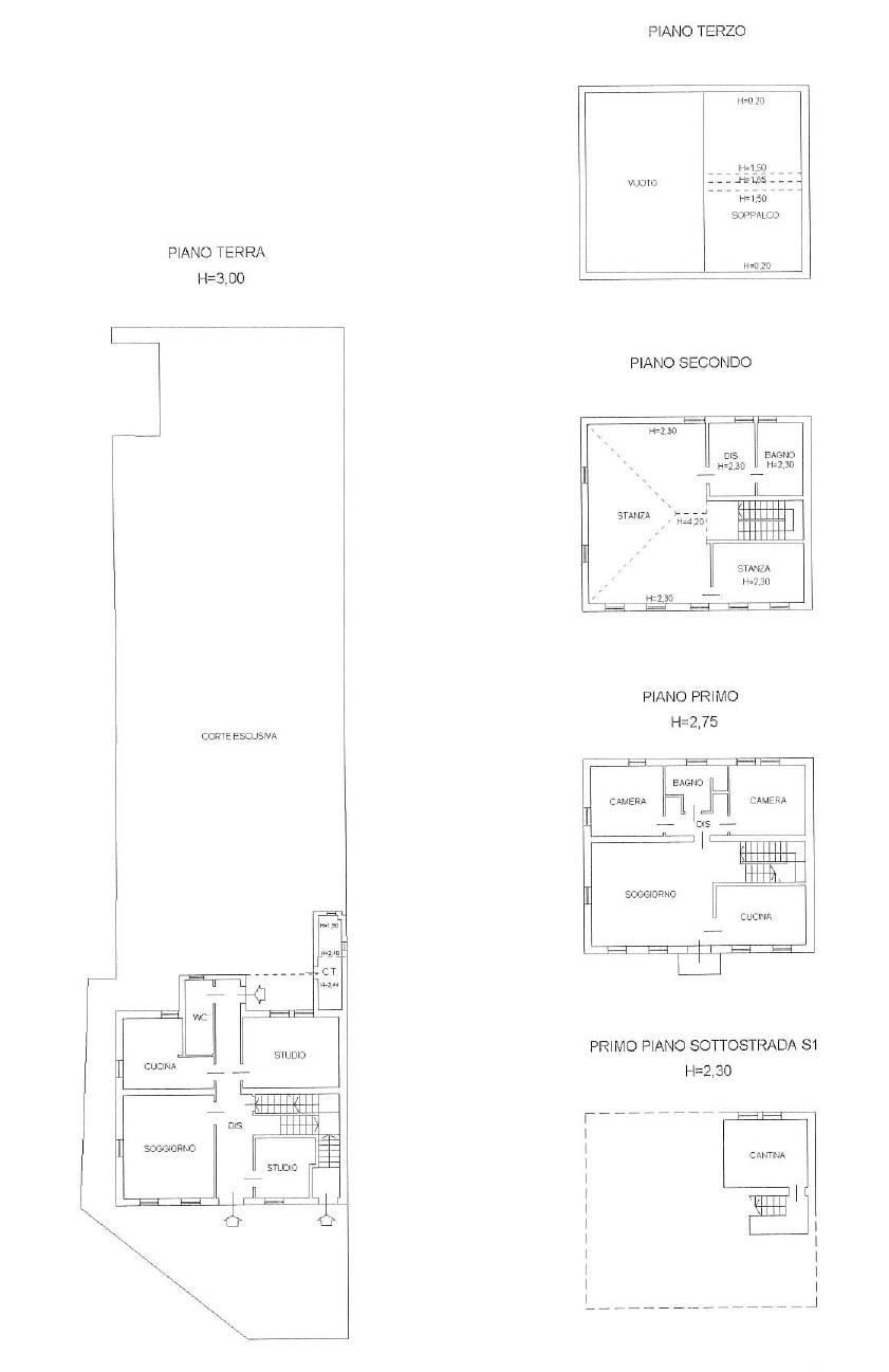
Affacciata sul Parco Moretti, proponiamo in vendita una splendida casa liberty indipendente edificata nei primi anni '20 del '900, ricca di fascino e personalità. Disposta su tre livelli, per un totale di circa mq. 300, offre: al piano terra un’unità con ingresso indipendente, perfetta come studio o appartamento; al primo e secondo piano la residenza principale, luminosa ed accogliente. Il giardino privato regala un angolo verde riservato. Una casa baciata dalla luce, ideale per chi cerca eleganza e indipendenza


