Valutazione immobiliare indipendente, accurata e gratuita
Appartamento a San Vito al Torre in zona Nogaredo alla Torre a 215.000 € (cod.652cbc3f)
Caasa non ha sufficienti informazioni per commentare l'appartamento in zona Nogaredo alla Torre - 652cbc3f.
Analisi immobiliare
I dati in posseso di Caasa per quest'immobile sono insufficienti, inaffidabili o contraddittori per proporre un'analisi attendibile.
Mercato immobiliare a San Vito al Torre
Per quanto riguarda più in generale il comune di San Vito al Torre, sono presenti al momento più di dieci annunci per
appartamenti in vendita (meno dell'1% dell'intera provincia) .
Vedi altre informazioni direttamente su
Mercato-Immobiliare.info
NOVITÀ Il risultato che vedi dipende dai dati che siamo riusciti ad estrarre dall'annuncio: ottieni una stima più accuranta di questo immobile, inserendo dati più precisi.
N.B. L'Opinione di Caasa® è un servizio sperimentale realizzato tramite tecniche di Intelligenza Artificiale, fornito senza alcuna garanzia di correttezza e completezza. Leggi il disclaimer o segnalaci un problema.
IMMAGINI
IN SINTESI
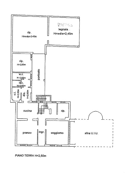
DESCRIZIONE
da ristrutturare con giardino con cantina con cucina abitabile con terrazza
In un suggestivo borgo del paese, proponiamo in vendita una casa accostata dalle generose metrature, sviluppata su tre livelli più piano interrato. Una soluzione ideale per chi cerca spazi ampi e la possibilità di personalizzare ogni ambiente secondo le proprie esigenze. Piano terra Zona giorno e locali accessori La parte abitativa si apre su un ingresso indipendente e comprende: luminoso salotto, sala da pranzo, cucina abitabile, wc di servizio, vari locali adibiti a cantina, lavanderia e ripostiglio. In aggiunta, con accesso dall esterno, sono presenti ulteriori due locali uso deposito e una zona legnaia. Primo piano Zona notte Due camere matrimoniali e una camera singola, bagno finestrato, due terrazze con vista aperta sul verde circostante. Al secondo piano è presente un ampia soffitta perfetta come spazio aggiuntivo, e al piano interrato una piccola cantina. All esterno la proprietà si completa con un giardino di circa 260 mq e un terreno aggiuntivo di 558 mq, offrendo uno spazio ideale per chi ama il verde, desidera coltivare un orto o ricavare aree relax all aperto. L immobile necessita di lavori di ristrutturazione, rappresentando però un ottima opportunità per chi sogna una casa dalle grandi potenzialità, da modellare secondo gusto e necessità. Prezzo richiesto: 215.000; Cod. U50



