Valutazione immobiliare indipendente, accurata e gratuita
L'Opinione di Caasa® per l'appartamento in vendita a Palmanova a 295.000 € (cod.652df19a)
Secondo Caasa, per l'appartamento in vendita a Palmanova, la richiesta di 295.000 € è leggermente svantaggiosa rispetto agli annunci simili.
Analisi immobiliare
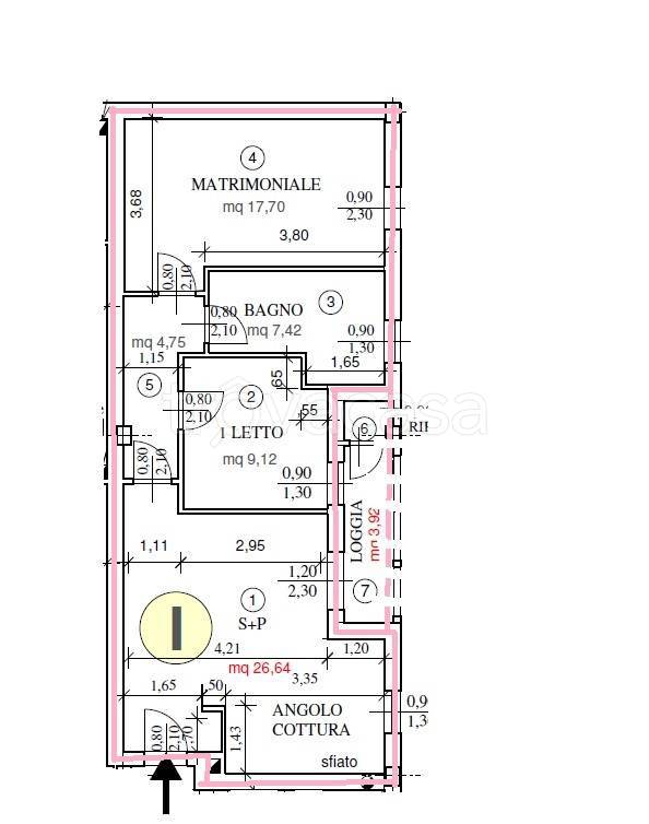
L'appartamento, situato nella zona OMI B1, è proposto in vendita a
295.000 € per una
superficie commerciale di
112 m² e quindi ad un prezzo per metro quadrato pari a
2633 €/m²
.
Questo prezzo
è leggermente meno conveniente di quello stimato da Caasa per immobili in vendita simili per tipologia, caratteristiche, classe energetica e localizzati nella stessa zona OMI, che è compreso tra
2.392 €/m² e
2.581 €/m².
La conoscenza con buona approssimazione della localizzazione dell'immobile ha consentito di utilizzare come raffronto i dati medi elaborati esattamente nella zona OMI di appertenenza (P.ZZA GRANDE, V.UDINE, V.CIVIDALE, V.AQUILEIA, V.CONTRADA DONATO). Inoltre, Caasa ha potuto affinare la stima anche con la conoscenza della classe energetica (A) oltre che dello stato dell'immobile (di nuova costruzione) e di alcune caratteristiche significative come la disponibilità di una cantina, il garage o la presenza dell'ascensore. Per questi motivi è possibile considerare un intervallo di valori accettabili per l'offerta abbastanza limitato.
Mercato immobiliare a Palmanova
Per quanto riguarda più in generale il comune di Palmanova, sono presenti al momento più di cinquanta annunci per
appartamenti in vendita (meno del 5% dell'intera provincia)
e il maggior numero di annunci per questa tipologia sono relativi alla zona di Ialmicco.
Possiamo inoltre considerare che in tutto il comune negli ultimi 6 mesi, i prezzi per appartamenti in vendita sono
in sostanziale aumento (+6,51%).
NOVITÀ Il risultato che vedi dipende dai dati che siamo riusciti ad estrarre dall'annuncio: ottieni una stima più accuranta di questo immobile, inserendo dati più precisi.
N.B. L'Opinione di Caasa® è un servizio sperimentale realizzato tramite tecniche di Intelligenza Artificiale, fornito senza alcuna garanzia di correttezza e completezza. Leggi il disclaimer o segnalaci un problema.
IMMAGINI
IN SINTESI
PROPOSTO DA:
AGENZIA IMMOBILIARE LA CASA S.R.L.
DESCRIZIONE
di nuova costruzione con cantina con terrazza con posto auto con termocondizionamento con garage di nuova costruzione con ascensore
All'interno delle mura storiche di Palmanova, proponiamo in vendita uno spaziosi appartamenti , inseriti in un elegante palazzo di nuova costruzione in fase di ultimazione. Il contesto residenziale è composto da 16 unità distribuite su due livelli, servite da ascensore, e realizzato con attenzione ai dettagli, tecnologie moderne e materiali di qualità. L'edificio garantisce alte prestazioni energetiche e massimo comfort abitativo - Appartamenti si sviluppano su un unico livello e si compongono di: Luminosi soggiorni con uscita su una terrazza abitabile; Cucine separate, spaziosa e funzionale; Disimpegno notte ; Una camera matrimoniale di generose dimensioni; Due camere singole; Due bagni, uno finestrato e uno cieco, entrambi rifiniti con gusto; Completano la proprietà la cantina al piano interrato ed il garage singolo inclusi nel prezzo - Riscaldamento e climatizzazione canalizzata; - Ventilazione meccanica; - Pompa di calore, - Serramenti in alluminio doppio vetro con scuretti in alluminio oppure tenda oscurante; - Zanzariere. CL. EN. A Per ulteriori informazioni o per fissare una visita 348/1037156

