Valutazione immobiliare indipendente, accurata e gratuita
L'Opinione di Caasa® per la casa indipendente in vendita a Latisana in zona Paludo a 330.000 € (cod.658ea27b)
Secondo Caasa, per la casa indipendente a Latisana in zona Paludo, la richiesta di 330.000 € è equilibrata rispetto agli annunci simili.
Analisi immobiliare
La casa indipendente, situata nella zona OMI D1, è proposta in vendita a
330.000 € per una
superficie commerciale di
160 m² e quindi ad un prezzo per metro quadrato pari a
2062 €/m²
.
Tale valore
è in linea con quello stimato da Caasa per immobili in vendita simili per tipologia, caratteristiche, classe energetica e localizzati nella stessa zona OMI, che è compreso tra
1.968 €/m² e
2.117 €/m².
La conoscenza con buona approssimazione della localizzazione dell'immobile ha consentito di utilizzare come raffronto i dati medi elaborati esattamente nella zona OMI di appertenenza (FR.LATISANOTTA, FR.GORGO, FR.PERTEGADA) per case indipendenti (da 980 €/m² a 1.610 €/m²) e per ville (da 1.005 €/m² a 1.625 €/m²). Inoltre, Caasa ha potuto affinare la stima anche con la conoscenza della classe energetica (A+) oltre che dello stato dell'immobile (di nuova costruzione) e di alcune caratteristiche significative come il posto auto. Per i motivi esposti i valori accettabili per l'offerta costituiscono un intervallo abbastanza limitato.
Mercato immobiliare a Latisana
Per quanto riguarda più in generale il comune di Latisana, sono presenti al momento circa cento annunci per
case indipendenti in vendita (meno del 5% dell'intera provincia) .
Per quanto riguarda la richiesta media in zona Paludo, dove sorge la casa indipendente, essa è pari a circa
1.310 €/m² per case indipendenti in vendita.
La dinamica dei prezzi in tutto il comune mostra che negli ultimi 6 mesi, i prezzi per case indipendenti in vendita sono
in deciso aumento (+9,72%).
NOVITÀ Il risultato che vedi dipende dai dati che siamo riusciti ad estrarre dall'annuncio: ottieni una stima più accuranta di questo immobile, inserendo dati più precisi.
N.B. L'Opinione di Caasa® è un servizio sperimentale realizzato tramite tecniche di Intelligenza Artificiale, fornito senza alcuna garanzia di correttezza e completezza. Leggi il disclaimer o segnalaci un problema.
IMMAGINI
IN SINTESI
DESCRIZIONE
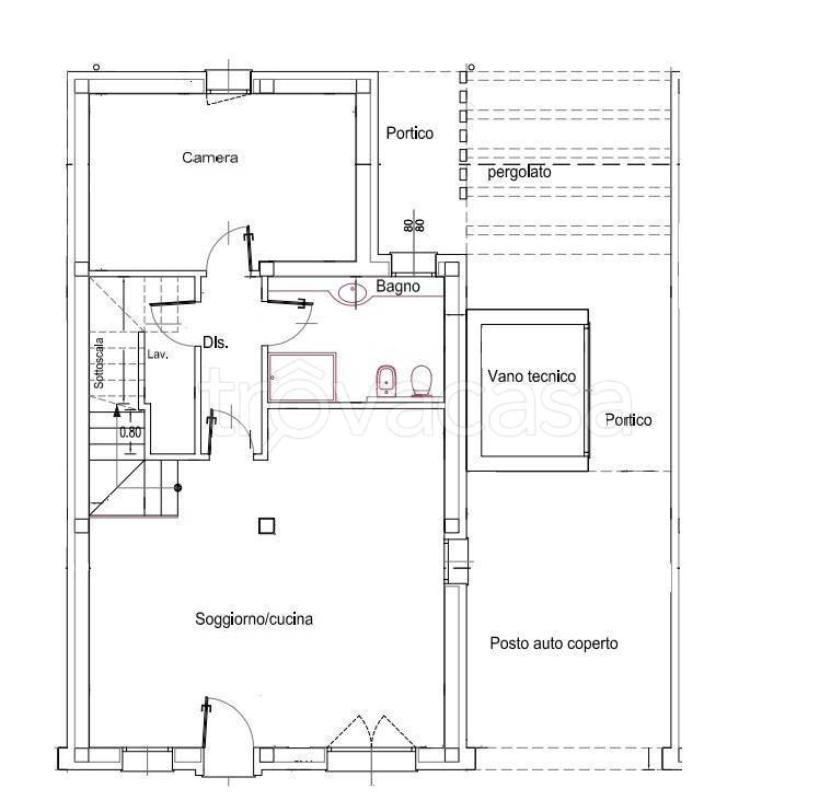
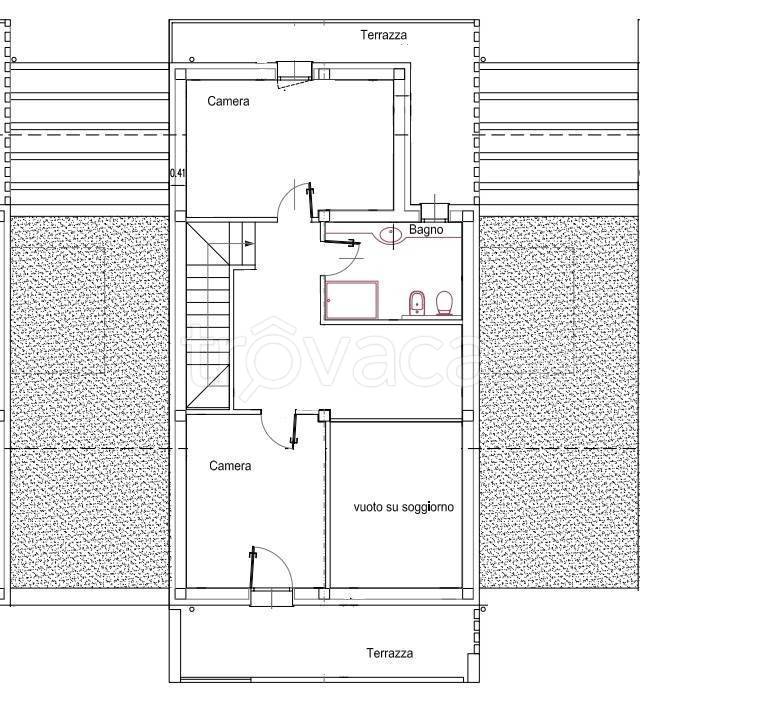
di nuova costruzione con posto auto con giardino con termocondizionamento di nuova costruzione con riscaldamento autonomo con angolo cottura
PALUDO, LATISANA, Villa a schiera in vendita di 160 Mq, Nuova costruzione, Riscaldamento Autonomo, composto da: 7 Vani, Angolo cottura, Soggiorno singolo, 3 Camere, 2 Bagni, Posto auto, Giardino, Prezzo: Eu. 330.000 Classe Energetica: A4



