Valutazione immobiliare indipendente, accurata e gratuita
Capannone in vendita a Gemona del Friuli a 56.250 € (cod.65451635)
Caasa non ha sufficienti informazioni per commentare il capannone in vendita a Gemona del Friuli - 65451635.
Analisi immobiliare
I dati in posseso di Caasa per quest'immobile sono insufficienti, inaffidabili o contraddittori per proporre un'analisi attendibile.
Mercato immobiliare a Gemona del Friuli
Per quanto riguarda più in generale il comune di Gemona del Friuli, sono presenti al momento meno di dieci annunci per
capannoni in vendita (meno dell'1% dell'intera provincia) .
Vedi altre informazioni direttamente su
Mercato-Immobiliare.info
NOVITÀ Il risultato che vedi dipende dai dati che siamo riusciti ad estrarre dall'annuncio: ottieni una stima più accuranta di questo immobile, inserendo dati più precisi.
N.B. L'Opinione di Caasa® è un servizio sperimentale realizzato tramite tecniche di Intelligenza Artificiale, fornito senza alcuna garanzia di correttezza e completezza. Leggi il disclaimer o segnalaci un problema.
IMMAGINI
IN SINTESI
PROPOSTO DA:
STUDIO CANOVA immobili & crediti
DESCRIZIONE
di recente costruzione con termocondizionamento di recente costruzione in asta giudiziaria con riscaldamento autonomo
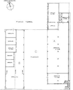
NUOVA PROPOSTA Capannone ad uso artigianale situato a Gemona del Friuli (UD), in Via Vegliato, con superficie commerciale di 129,50 mq. L'unità comprende un corpo uffici di due vani con servizio igienico, due tettoie destinate a deposito di automezzi e materiali e un'area scoperta utilizzabile come piazzale di manovra. L'accesso veicolare e pedonale avviene tramite area comune. La proprietà offre spazi funzionali e versatili, adatti a attività artigianali e di deposito. Per te la possibilità di avere un preventivo per il mutuo a condizioni vantaggiose con i nostri partner. Ulteriori dettagli, foto degli interni, planimetrie e altre info, se disponibili, saranno consultabili previo appuntamento nella sede di UDINE con DIANA che inoltre ti informerà sulle possibilità di aggiudicarti questo affare. L'immobile pubblicato al momento è sottoposto a procedura di vendita legale; Gescom srl è specializzata nella ricerca e pianificazione di investimenti immobiliari secondo innovative strategie di acquisto. Contattaci subito potrai valutare assieme a un nostro tecnico canali distinti di acquisto dell'immobile, procedura di vendita diretta senza ricorrere all'asta (d.lgs. 149/2022) e ancora stralcio immobiliare. Le informazioni sopra riportate non sostituiscono l'avviso pubblicato dal Tribunale competente ne' l'integrale gestione da parte del delegato designato. Il testo e le specifiche indicate nella presente pagina sono generate automaticamente attraverso l'utilizzo di software e/o da A. I., Gescom srl invita a verificare le formazioni e i materiali multimediali sui canali ufficiali, declinando fin d'ora ogni responsabilità su eventuali errori o incongruenze. Gescom Italia srl leader negli stralci immobiliari e nella consulenza tecnico legale, non si occupa di attività di intermediazione imm. di cui alla legge 39/89. Cl. energ. da verificare. Le foto pubblicate nel presente annuncio sono indicative e non esaustive della tipologia, qualità, consistenza e indicazione geografica dell'immobile. CLASSE ENERGETICA: A




