Valutazione immobiliare indipendente, accurata e gratuita
Casa indipendente in vendita a Trieste in zona Basovizza (cod.64f92a53)
Caasa non ha sufficienti informazioni per commentare la casa indipendente a Trieste in zona Basovizza - 64f92a53.
	Analisi immobiliare
	
	I dati in posseso di Caasa per quest'immobile sono insufficienti, inaffidabili o contraddittori per proporre un'analisi attendibile.
	
	Mercato immobiliare a Trieste
	
	Per quanto riguarda più in generale la città di Trieste, sono presenti al momento oltre 500 annunci per 
		case indipendenti in vendita (oltre i tre quarti dell'intera provincia) 
	
	 e il maggior numero di annunci per questa tipologia sono relativi alla zona di San Giacomo, mentre la zona di Basovizza risulta molto meno attiva considerando il numero di annunci presenti.
	
	
	La richiesta media nella zona dove sorge la casa indipendente (Basovizza pressi Strada per Basovizza) è pari a 
		2.315 €/m², di poco superiore al valore della zona Valmaura che è la più economica della città .
	
	
	La dinamica dei prezzi in tutta la città mostra che negli ultimi 6 mesi, i prezzi per case indipendenti in vendita sono 
		in aumento (+4,65%).
	
	
	
NOVITÀ Il risultato che vedi dipende dai dati che siamo riusciti ad estrarre dall'annuncio: ottieni una stima più accuranta di questo immobile, inserendo dati più precisi.
N.B. L'Opinione di Caasa® è un servizio sperimentale realizzato tramite tecniche di Intelligenza Artificiale, fornito senza alcuna garanzia di correttezza e completezza. Leggi il disclaimer o segnalaci un problema.
IMMAGINI
IN SINTESI
PROPOSTO DA:
Agenzia immobiliare FRANCESCO CORETTI
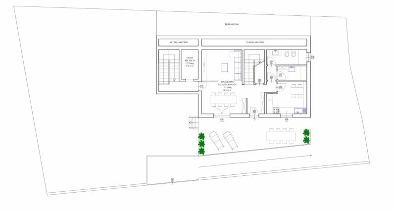
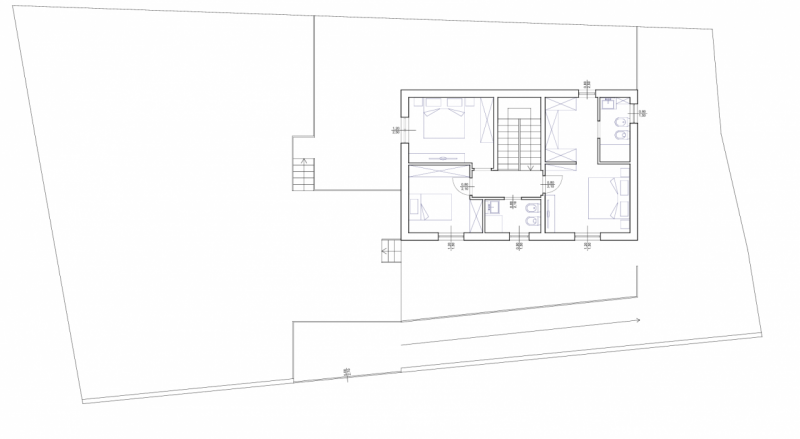
DESCRIZIONE
con posto auto con giardino con garage senza ascensore
Strada per Basovizza - In posizione panoramica, affacciato sul verde del Parco del Farneto e su un pezzo di mare, proponiamo un terreno edificabile di circa 520 mq con progetto già predisposto che prevede la demolizione dell'attuale deposito (in foto) per la realizzazione di una villa singola di circa 200 mq commerciali complessivi, distribuiti su due livelli fuori terra più garage a livello strada. Il terreno, esposto in modo ottimale e circondato dal bosco sul retro, offre privacy e tranquillità assoluta, pur restando a pochi minuti dal centro di Trieste e dall'altipiano. Il progetto prevede una villa indipendente, giardino privato, impianto fotovoltaico e posti auto, ideale per chi cerca una residenza immersa nella natura ma vicina alla città. Un'opportunità rara per realizzare una casa indipendente con vista aperta sul mare e sul verde, in una delle zone più richieste del carso triestino. Strada per Basovizza - In a panoramic position overlooking the greenery of the Farneto Park and a glimpse of the sea, we offer a building plot of approximately 540 sqm with a pre-designed project for the construction of a modern single-family villa of about 200 sqm total commercial area, arranged over two above-ground levels plus a garage at street level. The plot, optimally exposed and bordered by woodland at the back, offers complete privacy and tranquility, while remaining just a few minutes from both downtown Trieste and the Karst plateau. The project includes an independent villa, private garden, photovoltaic system, and parking spaces - ideal for those seeking a home surrounded by nature yet close to the city. A rare opportunity to build a detached home with open views of the sea and surrounding greenery, in one of the most sought-after areas of the Triestine Karst
                              
                              
                              
                              
                              
                              
                              
                              
                              
                              





