Valutazione immobiliare indipendente, accurata e gratuita

L'Opinione di Caasa® per l'appartamento in vendita a Trieste in zona Cologna a 100.000 € (cod.64f257e5)

Secondo Caasa, per l'appartamento in vendita a Trieste in zona Cologna, la richiesta di 100.000 € è leggermente vantaggiosa rispetto agli annunci simili.

Analisi immobiliare
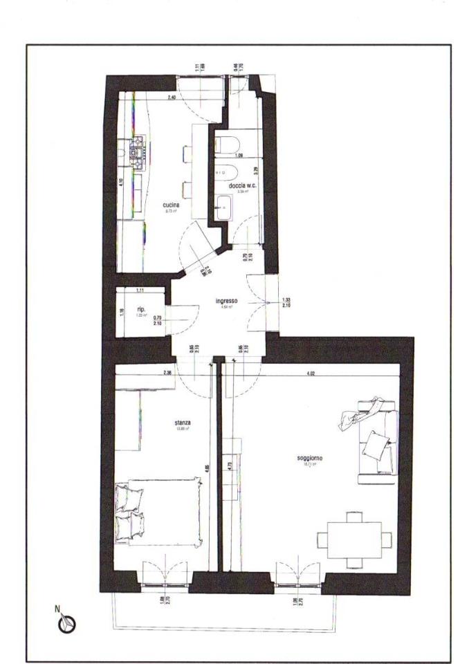
L'appartamento, situato nella zona OMI C4, è proposto in vendita (da CHENI & TUTTA IMMOBILIARE) a 100.000 € per una superficie commerciale di 50 m² e quindi ad un prezzo per metro quadrato pari a 2000 €/m² .
Tale prezzo è leggeremente più conveniente di quello stimato da Caasa per immobili in vendita simili per tipologia, caratteristiche, classe energetica e localizzati nella stessa zona OMI, che è compreso tra 2.201 €/m² e 2.403 €/m². La conoscenza con buona approssimazione della localizzazione dell'immobile ha consentito di utilizzare come raffronto i dati medi elaborati esattamente nella zona OMI di appertenenza (CHIADINO - GUARDIELLA - SAN GIOVANNI - ROZZOL) per appartamenti (da 1.985 €/m² a 3.620 €/m²). Inoltre, Caasa ha potuto affinare la stima anche con la conoscenza della classe energetica (G) oltre che dello stato dell'immobile (di recente ristrutturazione). Per i motivi esposti i valori accettabili per l'offerta costituiscono un intervallo abbastanza limitato.

Mercato immobiliare a Trieste
Per quanto riguarda più in generale la città di Trieste, sono presenti al momento ben oltre mille annunci per appartamenti in vendita (oltre l'80% dell'intera provincia) e il maggior numero di annunci per questa tipologia sono relativi alla zona di San Giacomo, mentre nella zona di Cologna è presente un numero significativamente inferiore di annunci.
La richiesta media nella zona dove sorge l'appartamento (Cologna) è pari a 2.730 €/m², molto vicina ai valori della zona Città Vecchia che sono i più alti della città .
Relativamente alla dinamica dei prezzi, possiamo dire che negli ultimi 6 mesi i prezzi medi in tutta la città per appartamenti in vendita sono in aumento (+4,18%).

NOVITÀ Il risultato che vedi dipende dai dati che siamo riusciti ad estrarre dall'annuncio: ottieni una stima più accuranta di questo immobile, inserendo dati più precisi.

N.B. L'Opinione di Caasa® è un servizio sperimentale realizzato tramite tecniche di Intelligenza Artificiale, fornito senza alcuna garanzia di correttezza e completezza. Leggi il disclaimer o segnalaci un problema.

IMMAGINI

IN SINTESI

Prezzo:
100.000 €
Superficie:
50 m²
Prezzo al m²:
2000 €/m²
Piano:
n.d. (SENZA ascensore)
Bagni:
1
Classe energetica:
G
Città:
Trieste (TS)
Zona OMI:
C4 (CHIADINO - GUARDIELLA - SAN GIOVANNI - ROZZOL)
Indirizzo:
Pubblicato:
mar 7 ottobre 2025

PROPOSTO DA:

logo CHENI & TUTTA IMMOBILIARE

CHENI & TUTTA IMMOBILIARE

VIA GATTERI, 30, Trieste (TS)

Vai ai contatti

DESCRIZIONE

di recente ristrutturazione con terrazza di recente ristrutturazione con cucina abitabile con balcone senza ascensore

PENDICE SCOGLIETTO IN ZONA UNIVERSITA' SI VENDE APPARTAMENTO MOLTO LUMINOSO ESPOSTO A SUD CON VISTA PARZIALE MARE E SAN GIUSTO. ATTUALMENTE L'APPARTAMENTO E' AL GREZZO AVANZATO ED E' COMPOSTO SOGGIORNO, MATRIMONIALE CON BALCONE, CUCINA ABITABILE, BAGNO/WC COMPLETO CON DOCCIA E FINESTRA, RIPOSTIGLIO. CANTINA, NO ASCENSORE. Eu. 130.000 CON ESECUZIONE TOTALE DELLA RISTRUTTURAZIONE. IMMOBILE SOGGETTO AD IVA. EPI: 154,46 kwh/m2 anno

  • wikicasa.free
  • idealista.it
  • risorseimmobiliari.it