Valutazione immobiliare indipendente, accurata e gratuita
L'Opinione di Caasa® per l'appartamento in vendita a Sacile a 299.000 € (cod.65922c8c)
Secondo Caasa, per l'appartamento in vendita a Sacile, la richiesta di 299.000 € è leggermente vantaggiosa rispetto agli annunci simili.
Analisi immobiliare
L'appartamento, situato nei pressi di Via Antonio Canova nella zona OMI B4, è proposto in vendita (da MARCHIORI & CONTINO) a
299.000 € per una
superficie commerciale di
113 m² e quindi ad un prezzo per metro quadrato pari a
2646 €/m²
.
Questo valore
è di poco inferiore a quello stimato da Caasa per immobili in vendita simili per tipologia, caratteristiche, classe energetica e localizzati nella stessa zona OMI, che è compreso tra
2.803 €/m² e
2.998 €/m².
La conoscenza con buona approssimazione della localizzazione dell'immobile ha consentito di utilizzare come raffronto i dati medi elaborati esattamente nella zona OMI di appertenenza (CAPOLUOGO ZONA CENTRO: V. VENTICINQUE APRILE, V.LI LACCHIN, ZANCANARO (FASCIA...). Inoltre, Caasa ha potuto affinare la stima anche con la conoscenza della classe energetica (A+) oltre che dello stato dell'immobile (di nuova costruzione) e di alcune caratteristiche significative come il garage. Per questi motivi è possibile considerare un intervallo di valori accettabili per l'offerta abbastanza limitato.
Mercato immobiliare a Sacile
Per quanto riguarda più in generale la città di Sacile, sono presenti al momento più di 150 annunci per
appartamenti in vendita (meno del 10% dell'intera provincia)
e il maggior numero di annunci per questa tipologia sono relativi alla zona di Cornadella.
Per quanto riguarda la dinamica dei prezzi, negli ultimi 6 mesi i prezzi medi in tutta la città per appartamenti in vendita sono
in sostanziale aumento (+5,89%).
NOVITÀ Il risultato che vedi dipende dai dati che siamo riusciti ad estrarre dall'annuncio: ottieni una stima più accuranta di questo immobile, inserendo dati più precisi.
N.B. L'Opinione di Caasa® è un servizio sperimentale realizzato tramite tecniche di Intelligenza Artificiale, fornito senza alcuna garanzia di correttezza e completezza. Leggi il disclaimer o segnalaci un problema.
IMMAGINI
IN SINTESI
DESCRIZIONE
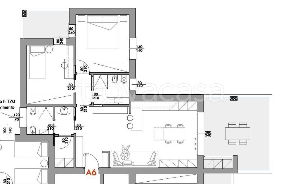
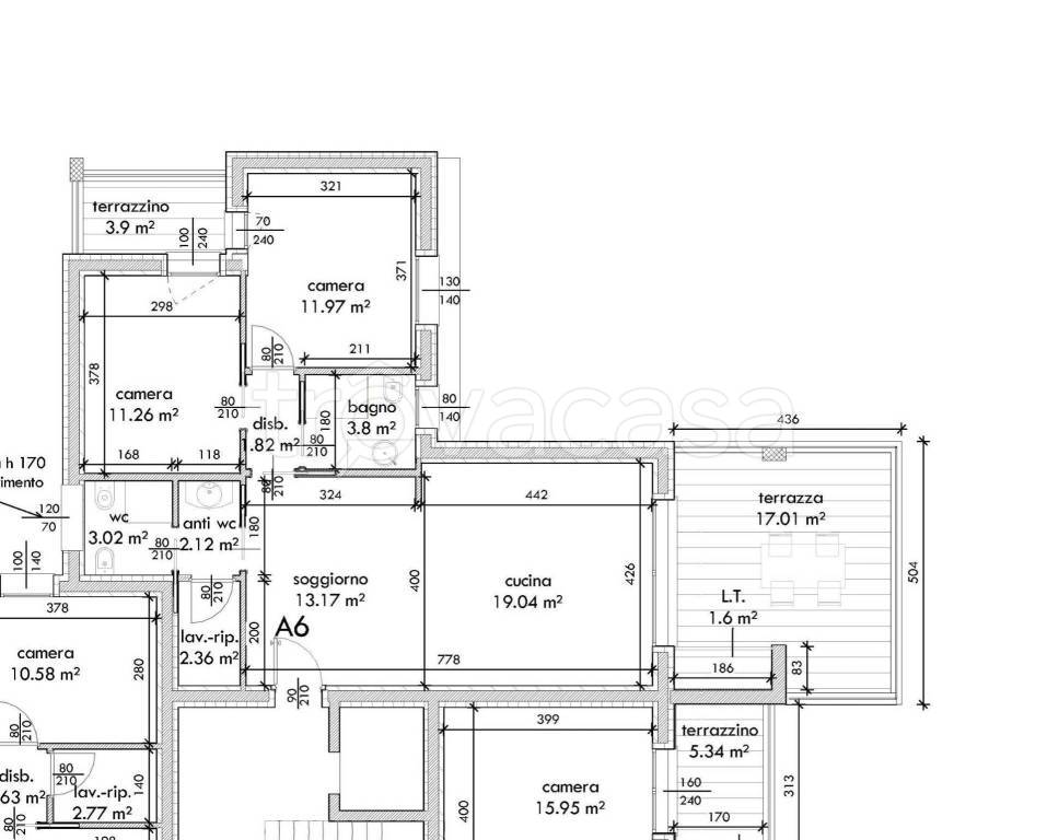
di nuova costruzione con posto auto con garage con terrazza di nuova costruzione
Vendesi, in zona centralissima a Sacile, appartamento di nuova costruzione sito al piano primo in piccolo residence di sole 9 unità abitative. L'immobile, di mq. 90, si sviluppa in ingresso sulla zona giorno con cucina/pranzo openspace ed ampia vetrata che porta al terrazzo esterno di mq. 17 con comodo vano tecnico, bagno/lavanderia dedicato alla zona giorno, disimpegno notte, 2 camere con terrazzo di mq. 4 e bagno principale finestrato con doccia. Il tutto viene completato da garage e posto auto esterno assegnato compresi nel prezzo. L'immobile sarà in con impianti di ultima generazione che garantiscono un elevato comfort abitativo ed un grande risparmio energetico. Contattaci per ricevere maggiori informazioni



