Valutazione immobiliare indipendente, accurata e gratuita
L'Opinione di Caasa® per l'appartamento in vendita a Fiume Veneto a 336.000 € (cod.65a7d0f4)
Secondo Caasa, per l'appartamento in vendita a Fiume Veneto, la richiesta di 336.000 € è equilibrata rispetto agli annunci simili.
Analisi immobiliare
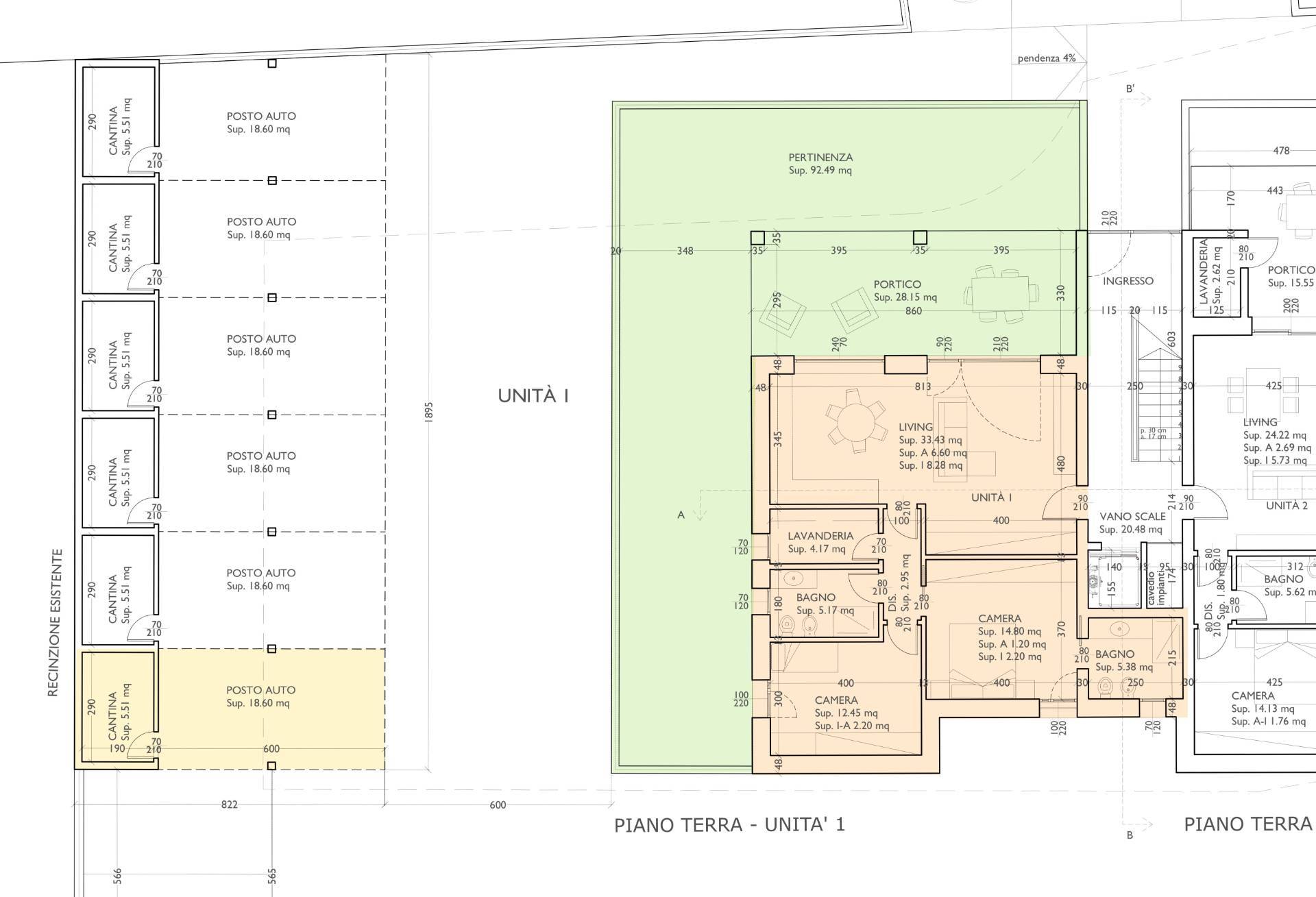
L'appartamento, situato nella zona OMI B1, è proposto in vendita a
336.000 € per una
superficie commerciale di
136 m² e quindi ad un prezzo per metro quadrato pari a
2470 €/m²
.
Questo valore
è in linea con quello stimato da Caasa per immobili in vendita simili per tipologia, caratteristiche, classe energetica e localizzati nella stessa zona OMI, che è compreso tra
2.490 €/m² e
2.663 €/m².
La conoscenza con buona approssimazione della localizzazione dell'immobile ha consentito di utilizzare come raffronto i dati medi elaborati esattamente nella zona OMI di appertenenza (CAPOLUOGO: P.ZZA MARCONI, V. RICCHIERI, S. FRANCESCO). Inoltre, Caasa ha potuto affinare la stima anche con la conoscenza della classe energetica (A+) oltre che dello stato dell'immobile (di nuova costruzione) e di alcune caratteristiche significative come la disponibilità di una cantina o il garage. In virtù di queste considerazioni è possibile considerare un intervallo di valori accettabili per l'offerta abbastanza limitato.
Mercato immobiliare a Fiume Veneto
Per quanto riguarda più in generale il comune di Fiume Veneto, sono presenti al momento circa cento annunci per
appartamenti in vendita (meno del 5% dell'intera provincia)
e il maggior numero di annunci per questa tipologia sono relativi alla zona di Cimpello.
Per quanto riguarda la dinamica dei prezzi, negli ultimi 6 mesi i prezzi medi in tutto il comune per appartamenti in vendita sono
in debole diminuzione (-2,08%).
NOVITÀ Il risultato che vedi dipende dai dati che siamo riusciti ad estrarre dall'annuncio: ottieni una stima più accuranta di questo immobile, inserendo dati più precisi.
N.B. L'Opinione di Caasa® è un servizio sperimentale realizzato tramite tecniche di Intelligenza Artificiale, fornito senza alcuna garanzia di correttezza e completezza. Leggi il disclaimer o segnalaci un problema.
IMMAGINI
IN SINTESI
PROPOSTO DA:
LA PRECISA SAS
DESCRIZIONE
di nuova costruzione con giardino con posto auto con garage con terrazza con cantina di nuova costruzione con termocondizionamento
NUOVI ESCLUSIVI APPARTAMENTI IN FASE DI REALIZZAZIONE – FIUME VENETO In zona residenziale tranquilla e ben collegata di Fiume Veneto, dove la comodità incontra la serenità del vivere quotidiano, nasce "Residenza La Brezza”: un progetto moderno pensato per chi desidera una casa nuova, efficiente e a misura di vita. L'edificio, composto da sole 6 unità abitative, offre un contesto riservato e curato, ideale per chi cerca privacy senza rinunciare alla vicinanza ai principali servizi. Ogni abitazione è stata progettata per valorizzare gli spazi e la luce naturale, creando ambienti accoglienti e funzionali, dove immaginare la propria quotidianità diventa semplice e naturale. Mini appartamento e bicamere al piano terra, con giardino esclusivo Bicamere al primo e secondo piano, con ampi terrazzi abitabili Mini appartamento al secondo piano con ampio terrazzo abitabile Ogni unità dispone di posto auto coperto e cantina già inclusi nel prezzo. Caratteristiche che fanno la differenza: Contesto di poche unità, sinonimo di tranquillità e riservatezza Classe energetica A4, per il massimo risparmio e benessere abitativo Spazi esterni vivibili, tra giardini privati e terrazze abitabili Progettazione moderna orientata al comfort e alla qualità costruttiva Possibilità di personalizzare le finiture secondo il proprio stile Studio di interior design personalizzato Consegna prevista chiavi in mano per autunno 2027. Una proposta ideale per chi desidera costruire il proprio futuro in una casa nuova, in un contesto elegante e a dimensione familiare, oppure per chi cerca un investimento sicuro e di valore nel tempo. Per maggiori informazioni, planimetrie e dettagli, contattaci allo 0434 921788 e scopri le nostre proposte sul sito www.gruppolaprecisa.com



