Valutazione immobiliare indipendente, accurata e gratuita

Appartamento in vendita a Casarsa della Delizia a 33.000 € (cod.64e23952)

Caasa non ha sufficienti informazioni per commentare l'appartamento in vendita a Casarsa della Delizia - 64e23952.

Analisi immobiliare
I dati in posseso di Caasa per quest'immobile sono insufficienti, inaffidabili o contraddittori per proporre un'analisi attendibile.
Mercato immobiliare a Casarsa della Delizia
Per quanto riguarda più in generale il comune di Casarsa della Delizia, sono presenti al momento circa cento annunci per appartamenti in vendita (meno del 5% dell'intera provincia) e il maggior numero di annunci per questa tipologia sono relativi alla zona di San Giovanni.

Possiamo inoltre considerare che in tutto il comune negli ultimi 6 mesi, i prezzi per appartamenti in vendita sono in debole diminuzione (-1,35%).

NOVITÀ Il risultato che vedi dipende dai dati che siamo riusciti ad estrarre dall'annuncio: ottieni una stima più accuranta di questo immobile, inserendo dati più precisi.

N.B. L'Opinione di Caasa® è un servizio sperimentale realizzato tramite tecniche di Intelligenza Artificiale, fornito senza alcuna garanzia di correttezza e completezza. Leggi il disclaimer o segnalaci un problema.

IMMAGINI

IN SINTESI

Prezzo:
33.000 €
Superficie:
110 m²
Prezzo al m²:
300 €/m²
Piano:
terra (SENZA ascensore)
Bagni:
2
Classe energetica:
E
Città:
Casarsa della Delizia (PN)
Zona OMI:
D1 (BORGATE CONURBATE: CENTATA, RIVIS, TURRIDETTA)
Indirizzo:
Pubblicato:
gio 25 settembre 2025

PROPOSTO DA:

asteaffari.com

DESCRIZIONE

con posto auto con giardino in asta giudiziaria con termocondizionamento con riscaldamento autonomo con angolo cottura senza ascensore

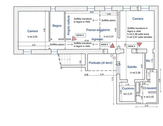
Rif. A.A.26-128 Vendita all'asta - appartamento al piano terra in data 04 Novembre 2025 Descrizione: trattasi di un appartamento posto al piano terra facente parte di un edificio residenziale a tre piani fuori terra, edificato anteriormente al 1967, sito nel comune di Casarsa della Delizia (PN). L'unità immobiliare, della superficie commerciale complessiva di mq.110, è composta da porticato, ingresso-soggiorno, angolo cottura, salotto, cucinino, disimpegno, n.2 camere, n.2 bagni, centrale termica-lavanderia con accesso esterno. L'immobile viene venduto tramite asta giudiziaria, ed il prezzo indicato si riferisce al prezzo minimo accettato per la partecipazione all'asta. Aste-Affari fornisce un servizio di assistenza e consulenza tecnica, legale, fiscale e finanziaria su acquisti all'asta e affari immobiliari, al fine di rendere più facile e sicuro l'acquisto di un immobile proveniente dal mercato giudiziario oppure da occasioni presenti sul mercato immobiliare. Analisi di fattibilità, tecnica, burocratica, finanziaria, legale, esame problematiche e vincoli, conteggio costi accessori ed occulti, assistenza in tutte le fasi della procedura fino alla consegna delle chiavi dell'immobile. L'acquisto può essere finanziato tramite mutuo, e, ove possibile anche in pre-asta tramite procedura di saldo-stralcio. Prezzo minimo base asta : da euro 33.000,00 Per info aggiuntive, prenotazione visione, consulenza ed assistenza su asta : Studio di Consulenza : "aste-affari.com" Info: 042217801118 - 04221780185 www.aste-affari.com Sei un debitore ? Chiamaci ! Abbiamo soluzioni personalizzate anche per te

  • bachecacase.com
  • bancadellecase.premium
  • bilocale.it
  • ioaffitto.it
  • trovacasa.net