N.B. Tutti le informazioni immobiliari sono fornite senza alcuna garanzia. Leggi il disclaimer.
Terreni agricoli o terreni edificabili in vendita a Cesena in zona Macerone
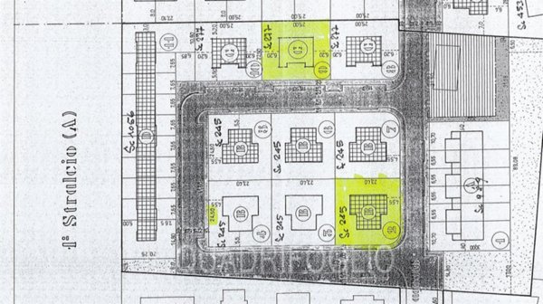
MODIFICA QUESTA RICERCATerreno in vendita a Cesena(FC PREMIUM
Casa indipendente in vendita a Cesena(FC
Terreno in vendita a Cesena(FC
Terreno in vendita a Cesena(FC
terreno edificabile Macerone Via Assano 235.000 €
Terreno - VIA ASSANO- ZONA MONTEFIORE LOTTO EDIFICABILE DI MQ. 780 CON POSSIBILITA' DI EDIFICARE FINO A QUATTRO UNITA' ABITATIVE
LEGGI ANCORA
Vendita Casa indipendente Cesena
terreno edificabile Macerone 300.000 €
CESENA - MACERONE - Vendesi casa colonica di 355 mq con giardino privato, situata al confine tra Cesena e Cesenatico in un lotto di 1.500 mq. L'immobile, è stato costruito prima del 1960 e necessita quindi di un intervento di ristrutturazione interno ed esterno per essere riqualificato. Al piano terra è […]
LEGGI ANCORA
- prezzo medio casa indipendente in zona Macerone : 1512 €/m²
- prezzo medio appartamento in zona Macerone : 1779 €/m²
esavano in vendita a Cesena in zona Macerone
terreno edificabile Macerone 530.000 €
CASA COLONICA CON 6 ETTARI DI TERRENO AGRICOLO E ARTIGIANALE CESENA - MACERONE Casa indipendente - 8 Locali - 1400 Mq comm. li - Rif. CESENA-36 CARATTERISTICHE E SERVIZI: Indipendenza Giardino privato Terreno artigianale Terreno agricolo INFORMAZIONI: Casa colonica di ampie metrature, situata al confin […]
LEGGI ANCORA
Villa in vendita a Cesena(FC
terreno agricolo Macerone 225.000 €
Macerone: Obiettivo Casa propone in periferia lato mare posta in prossimità del centro del paese e a pochi Km. dalla costa Romagnola, tipica casa colonica romagnola abbinata ad un lato, sviluppata su due livelli con portico, di complessivi mq. 200, posta in posizione tranquilla e circondata dalla campagn […]
LEGGI ANCORA
- prezzo medio casa indipendente in zona OMI R4 : 1737 €/m²
- prezzo medio villa in zona OMI R4 : 1844 €/m²
bifamiliare in vendita a Cesena
terreno edificabile Macerone 280.000 €
MACERONE di Cesena ( BTC223 ): in posizione tranquilla e adiacente a tutti i servizi di prima necessità , a soli 8 km. sia dal centro di Cesena che dal centro di Cesenatico, proponiamo porzione di BIFAMILIARE allo STATO GREZZO, quindi con distribuzione degli spazi interni e finiture completamente persona […]
LEGGI ANCORA
- prezzo medio casa indipendente in zona OMI R4 : 1737 €/m²
- prezzo medio bifamiliare in zona OMI R4 : 1805 €/m²
Villa singola in vendita a Cesena via Vetreto, Bulgarn
terreno agricolo Bulgarnò 750.000 €
CESENA | BULGARNO' Villa | 7 Locali | 500 Mq comm.li IMMOBILE Piano Interrato: Cantina - 2 Ripostigli - Disimpegno - 2 Lavanderie - 2 Bagni Piano Terra: Ingresso - Soggiorno - Cucina - Disimpegno - 2 Bagni - Camera da letto singola - Camera da letto doppia - Camera da letto matrimoniale - Portico - 2 Bal […]
LEGGI ANCORA
- prezzo medio casa indipendente in zona OMI R4 : 1737 €/m²
- prezzo medio villa in zona OMI R4 : 1844 €/m²
esavano in vendita a Cesena in zona Macerone
terreno edificabile Macerone 300.000 €
CESENA - MACERONE Casa indipendente - 8 Locali - 335 Mq comm. li - Rif. CESENA-34 CARATTERISTICHE E SERVIZI: Indipendenza Giardino privato INFORMAZIONI: Casa colonica di ampie metrature, situata al confine tra Cesena e Cesenatico in un lotto di 1.500mq. L'immobile, è stato costruito prima del 1960 e ne […]
LEGGI ANCORA
- prezzo medio casa indipendente in zona OMI R4 : 1737 €/m²
- prezzo medio appartamento in zona OMI R4 : 1834 €/m²
terreno agricolo in vendita a Cesena in zona Ruffio
terreno agricolo Ruffio 460.000 €
Cesena, zona Ruffio, prima campagna pianeggiante ma adiacente a tutti i servizi e a strade di importante comunicazione, l'Agenzia Galbucci Immobiliare propone IN ESCLUSIVA complesso immobiliare pienamente abitabile e funzionante, costituito da: - casa di civile abitazione su due piani, con servizi, garag […]
LEGGI ANCORA
- prezzo medio casa indipendente in zona OMI R4 : 1737 €/m²
- prezzo medio casa semindipendente in zona OMI R4 : 1694 €/m²
Casa bifamiliare di nuova costruzione PREMIUM
Cesena, Zona Case Finali (BTC227) : in BELLISSIMA zona residenziale di nuova realizzazione, proponiamo casa bifamiliare di prossima costruzione, disposta su due livelli più mansardato. Ogni porzione è così composta: PIANO TERRA: ingresso su […]
LEGGI ANCORA
- prezzo medio casa indipendente in zona OMI C3 : 2552 €/m²
- prezzo medio bifamiliare in zona OMI C3 : 2019 €/m²
Rustico / Casale in vendita a Cesena(FC
terreno agricolo Macerone 460.000 €
Cesena, zona Ruffio, prima campagna pianeggiante ma adiacente a tutti i servizi e a strade di importante comunicazione, l'Agenzia Galbucci Immobiliare propone IN ESCLUSIVA complesso immobiliare pienamente abitabile e funzionante, costituito da: - casa di civile abitazione su due piani, con servizi, garag […]
LEGGI ANCORA
- prezzo medio casa indipendente in zona OMI R4 : 1737 €/m²
- prezzo medio casale in zona OMI R4 : 906 €/m²
Vendita Terreno Edificabile Cesena
terreno edificabile Macerone 180.000 €
In Zona Macerone vendesi terreno edificabile, a destinazione residenziale, in lotto di circa 560 mq totali e 277 mq di superficie di costruzione. La tipologia residenziale che è possibile edificare è una bifamiliare o una villa singola. La lottizzazione, caratterizzata da altri interventi con tipologie s […]
LEGGI ANCORA
- prezzo medio casa indipendente in zona Macerone : 1512 €/m²
- prezzo medio villa in zona Macerone : 1430 €/m²
Vendita Terreno Edificabile Cesena
terreno edificabile Macerone 180.000 €
In Zona Macerone vendesi terreno edificabile, a destinazione residenziale, in lotto di circa 570 mq totali e 245 mq di superficie di costruzione. La tipologia residenziale che è possibile edificare è una bifamiliare o una villa singola. La lottizzazione, caratterizzata da altri interventi con tipologie s […]
LEGGI ANCORA
- prezzo medio casa indipendente in zona OMI R4 : 1737 €/m²
- prezzo medio villa in zona OMI R4 : 1844 €/m²
terreno residenziale in vendita a Cesena
terreno edificabile Macerone 140.000 €
CESENA, nel paese di Macerone vicino a tutti i servizi, vendiamo un lotto già urbanizzato per la realizzazione di una soluzione indipendente del tipo monofamiliare o bifamiliare. La superficie del lotto è di 569 mq, la posizione è angolare, con buona esposizione dotata degli allacci. Per informazioni […]
LEGGI ANCORA
- prezzo medio casa indipendente in zona OMI R4 : 1737 €/m²
- prezzo medio bifamiliare in zona OMI R4 : 1805 €/m²
Vendesi terreno residenziale a Cesena via Olof Palme 10, Macerone
terreno edificabile Macerone 120.000 €
Rif: C0169 - Cerchi un terreno edificabile per costruirci il tuo progetto dei sogni, in zona MACERONE? Abbiamo la soluzione giusta per te! TEMPOCASA CESENA PROPONE: Zona ottima per servizi ed investimento uso abitativo. La superficie del lotto si estende per 569Mq. Il terreno con posizione angolare ed un […]
LEGGI ANCORA
- prezzo medio casa indipendente in zona OMI R4 : 1737 €/m²
- prezzo medio bifamiliare in zona OMI R4 : 1805 €/m²
Terreno in vendita a Cesena(FC PREMIUM
Appartamento in vendita a Cesena via Vigo Ruffio, 910, Ponte Pietra, Case Frini, Macerone, Bulgarn
terreno agricolo Macerone Via Vigo-Ruffio
Complesso immobiliare in asta a Cesena (FC) – Via Vigo Ruffio 910 (CAP 47521) Complesso immobiliare agrituristico situato a Cesena, in via Vigo Ruffio 910, località Madonna del Fuoco\Case Castagnoli, a circa 6 km dal centro di Cesena e 15 km da Cesenatico. L'edificio, di recente costruzione (2017-2018), […]
LEGGI ANCORA










