Logo Caasa ha trovato migliaia di annunci per:

Appartamenti o case indipendenti o case semindipendenti o negozi con balcone e con garage e con posto auto e con terrazza in vendita a Firenze in zona Statuto - pg. 32 di 165

MODIFICA QUESTA RICERCA

Valore appartamenti in vendita in zona Statuto

Per numero di annunci degli appartamenti in vendita attualmente presenti, la zona Statuto è tra quelle più significative a Firenze. In media, nella zona, il prezzo richiesto è attualmente pari a 4.695 €/m² ed è nella maggioranza dei casi compreso tra 3.475 €/m² e 6.020 €/m². Questo valore è molto simile alla media cittadina e rende la zona una delle più costose di Firenze per questa tipologia.

In base ai dati ufficiali sulle compravendite dell' Agenzia delle Entrate riferiti alla zona OMI C4 (POGGETTO - STATUTO - PONTE ROSSO), che è quella più vicina alla zona Statuto, i prezzi al m² per un appartamento in vendita sono compresi tra 2.165 €/m² e 2.920 €/m².

N.B. Tutti le informazioni immobiliari sono fornite senza alcuna garanzia. Leggi il disclaimer.

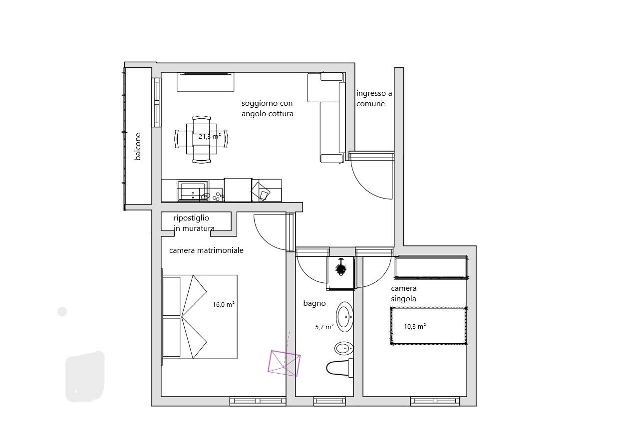
appartamento in vendita a Firenze PREMIUM

  • prezzo medio appartamento in zona OMI C3 : 4029 €/m²
  • prezzo medio pentavano in zona OMI C3 : 3651 €/m²

villa in vendita a Firenze

  • prezzo medio casa indipendente in zona OMI C4 : 4548 €/m²
  • prezzo medio villa in zona OMI C4 : 4744 €/m²

Non perdere gli altri migliaia di annunci!