Logo Caasa ha trovato centinaia di annunci per:

Appartamenti o pentavani con balcone e con cucina abitabile e con termocondizionamento in vendita a Firenze in zona Gavinana - pg. 61 di 70

MODIFICA QUESTA RICERCA

Valore appartamenti in vendita in zona Gavinana

Per numero di annunci degli appartamenti in vendita attualmente presenti, la zona Gavinana è tra quelle più significative a Firenze. In media, nella zona, il prezzo richiesto è attualmente pari a 4.735 €/m² ed è nella maggioranza dei casi compreso tra 3.915 €/m² e 5.625 €/m². Questo valore è molto simile alla media cittadina e rende la zona una delle più costose di Firenze per questa tipologia.

In base ai dati ufficiali sulle compravendite dell' Agenzia delle Entrate riferiti alla zona OMI C19 (PIAZZA FERRUCCI - RICORBOLI - BANDINO - VIALE EUROPA - AN...), che è quella più vicina alla zona Gavinana, i prezzi al m² per un appartamento in vendita sono compresi tra 2.310 €/m² e 3.200 €/m².

N.B. Tutti le informazioni immobiliari sono fornite senza alcuna garanzia. Leggi il disclaimer.

villa in vendita a Firenze in zona Pian dei Giullari

  • prezzo medio appartamento in zona OMI C18 : 4937 €/m²
  • prezzo medio casa indipendente in zona OMI C18 : 4658 €/m²

Vendesi appartamento a Firenze viale Giuseppe Mazzini, Mazzini - Oberdan

  • prezzo medio appartamento in zona OMI B2 : 5158 €/m²
  • prezzo medio quadrivano in zona OMI B2 : 5168 €/m²

Appartamento in vendita a Firenze

  • prezzo medio appartamento in zona OMI D11 : 4854 €/m²
  • prezzo medio attico in zona OMI D11 : 4326 €/m²

appartamento in vendita a Firenze in zona Centro Santa Croce

  • prezzo medio appartamento in zona OMI B7 : 5824 €/m²
  • prezzo medio quadrivano in zona OMI B7 : 5653 €/m²

appartamento in vendita a Firenze in zona Centro Santa Croce

  • prezzo medio appartamento in zona OMI B6 : 5961 €/m²
  • prezzo medio pentavano in zona OMI B6 : 5771 €/m²

trivano in vendita a Firenze

  • prezzo medio appartamento in zona OMI C7 : 4728 €/m²
  • prezzo medio trivano in zona OMI C7 : 4913 €/m²

esavano in vendita a Firenze in zona Centro Santa Croce

Appartamento in vendita a Firenze(FI

  • prezzo medio appartamento in zona OMI B6 : 5961 €/m²
  • prezzo medio bivano in zona OMI B6 : 5913 €/m²

bivano in vendita a Firenze in zona Centro Santa Croce

  • prezzo medio appartamento in zona OMI B7 : 5824 €/m²
  • prezzo medio bivano in zona OMI B7 : 5767 €/m²

Appartamento FIRENZE €.580000 MQ.100 Vani 5

  • prezzo medio appartamento in zona OMI B7 : 5824 €/m²
  • prezzo medio pentavano in zona OMI B7 : 5653 €/m²

Vendita Appartamento Firenze PREMIUM

  • prezzo medio appartamento in zona OMI C19 : 4741 €/m²
  • prezzo medio bivano in zona OMI C19 : 5246 €/m²

Appartamento in vendita a Firenze viale Bernardo Segni, Mazzini - Oberdan

  • prezzo medio appartamento in zona OMI B2 : 5158 €/m²
  • prezzo medio casa indipendente in zona OMI B2 : 4871 €/m²

appartamento in vendita a Firenze

  • prezzo medio appartamento in zona OMI B2 : 5158 €/m²
  • prezzo medio monolocale in zona OMI B2 : 4123 €/m²

Attico in vendita a Firenze

  • prezzo medio appartamento in zona OMI B7 : 5824 €/m²
  • prezzo medio attico in zona OMI B7 : 5866 €/m²

appartamento in vendita a Firenze in zona Centro Santa Croce

  • prezzo medio casa semindipendente in zona OMI B6 : 5937 €/m²
  • prezzo medio appartamento in zona OMI B6 : 5961 €/m²

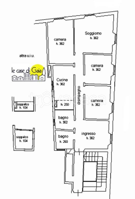
Trilocale in vendita a Firenze via Mario Pratesi, Coverciano

  • prezzo medio appartamento in zona OMI C7 : 4728 €/m²
  • prezzo medio trivano in zona OMI C7 : 4913 €/m²

Attico in Via Fra Giovanni Angelico, Firenze Beccaria - Colombo

  • prezzo medio appartamento in zona OMI B2 : 5158 €/m²
  • prezzo medio attico in zona OMI B2 : 4953 €/m²

CIVILE ABITAZIONE VIA PIER FORTUNATO CALVI 5 CAMPO DI MARTE-VIALE VOLTA bilocale 43mq

  • prezzo medio appartamento in zona OMI C6 : 4589 €/m²
  • prezzo medio bivano in zona OMI C6 : 5091 €/m²

Trilocale in vendita a Firenze via Mannelli, 83, Mazzini - Oberdan

  • prezzo medio appartamento in zona OMI B2 : 5158 €/m²
  • prezzo medio trivano in zona OMI B2 : 5026 €/m²

Non perdere gli altri centinaia di annunci!