N.B. Tutti le informazioni immobiliari sono fornite senza alcuna garanzia. Leggi il disclaimer.
Case semindipendenti o locali di sgombero o loft o uffici in affitto a Firenze in zona Careggi - pg. 4 di 4
MODIFICA QUESTA RICERCAvilla in affitto a Firenze in zona Careggi PREMIUM
Careggi, Via Reginaldo Giuliani, in villino con ingresso indipendente, piano 1°, appartamento composto da ingresso al piano terreno, ampio corridoio disimpegno, cucina abitabile, camera doppia, camera singola e bagno, al piano 1°Completamen […]
LEGGI ANCORA
- prezzo medio appartamento in zona OMI D19 : 14 €/m²
- prezzo medio villa in zona OMI D19 : 12,5 €/m²
locale commerciale in affitto a Firenze in zona Careggi
ufficio Careggi Via Vittorio Locchi 610 € mese
Via locchi pressi locale commerciale mq. 22 con servizio ottime condizioni adatto anche per ufficio
LEGGI ANCORA
- prezzo medio ufficio in zona OMI D18 : 12,6 €/m²
- prezzo medio ufficio in zona Careggi : 12 €/m²
Studio
ufficio Careggi Via Luigi Michelazzi 240 € mese
Affittasi in Via Luigi Michelazzi (traversa di Via delle Panche - Careggi) Studi arredati, luminosi, silenziosi a Professionisti come Psicologi, Psicoterapeuti, Medici Specialisti, Psichiatri, Specializzandi, Mediatori familiari, Nutrizionisti, (e altri professionisti del settore benessere e salute). Lo […]
LEGGI ANCORA
- prezzo medio ufficio in zona OMI D18 : 12,6 €/m²
- prezzo medio ufficio in zona Careggi : 12 €/m²
Capannone industriale in affitto a Firenze, Panche
loft Careggi Via delle Panche 5.600 € mese
Firenze in zona Careggi, nei pressi di via delle Panche , immobile di circa 1120 mq al piano interrato, con altezza interna di 4.30 m, luminoso, con ingresso da rampa a cielo aperto, piazzale condominiale per il carico e lo scarico, attualmente internamente diviso in tre locali composto da ingresso indip […]
LEGGI ANCORA
- prezzo medio locale commerciale in zona OMI D18 : 6 €/m²
- prezzo medio loft in zona OMI D18 : 13 €/m²
Appartamento in Affitto a Firenze
casa semindipendente Piazza dei Ciompi 1.050 € mese
PIAZZA DEI CIOMPI - In elegante palazzo che domina la piazza, monolocale posto al piano terra con ingresso indipendente.L 'appartamento ha un ampia metratura così da poter suddividere tutte le zone della casa in modo distinto.La porta d 'ingresso si apre sul salotto con divano letto mentre un elegante a […]
LEGGI ANCORA
- prezzo medio appartamento in zona OMI R1 : 19,3 €/m²
- prezzo medio casa semindipendente in zona OMI R1 : 19,9 €/m²
locale di sgombero in affitto a Firenze in zona Careggi
locale di sgombero Careggi Piazza Dalmazia 4.700 € mese
A soli 150 metri da Piazza Dalmazia, proponiamo in affitto (anche con contratti mensili) un ampio magazzino/deposito con altezza interna di 3,7 metri, situato al primo e ultimo piano. L’accesso al piano è servito da due montacarichi industriali di ultima generazione, abilitati al movimentazione pallet. L […]
LEGGI ANCORA
- prezzo medio attico in zona OMI D18 : 15,3 €/m²
- prezzo medio attico in zona Careggi : 18,2 €/m²
Casa indipendente in affitto a Firenze(FI PREMIUM
- prezzo medio appartamento in zona OMI D18 : 17,5 €/m²
- prezzo medio casa indipendente in zona OMI D18 : 16,3 €/m²
Appartamento in affitto in Via Eugenio Calò a Firenze
loft Rifredi 1.750 € mese
Charming Apartment with Private Parking in Florence Welcome to your bright and comfortable home in Florence! Located in the Rifredi neighborhood, this spacious two-bedroom apartment is perfect for travelers seeking peace, convenience, and an authentic local experience—without sacrificing easy access to t […]
LEGGI ANCORA
- prezzo medio appartamento in zona OMI D18 : 17,5 €/m²
- prezzo medio loft in zona OMI D18 : 13 €/m²
bivano in affitto a Firenze in zona Careggi
- prezzo medio appartamento in zona Careggi : 17,4 €/m²
- prezzo medio bivano in zona Careggi : 20,1 €/m²
appartamento in affitto a Firenze in zona Careggi
casa semindipendente Careggi 2.500 € mese
APPARTAMENTO IDEALE PER IMPRESE EDILI O GRUPPO DI LAVORATORI contratto a societa' un immobile spazioso e confortevole, questo terratetto con ingresso indipendente potrebbe essere la soluzione perfetta per te. Con una superficie totale di 240 mq, è composto da 7 grandi camere e 3 bagni, ideale per ospitar […]
LEGGI ANCORA
- prezzo medio appartamento in zona Careggi : 17,4 €/m²
- prezzo medio casa indipendente in zona Careggi : 16,8 €/m²
villa in affitto a Firenze in zona Careggi
casa semindipendente Careggi Via Reginaldo Giuliani 860 € mese
Careggi, Via Reginaldo Giuliani, in villino con ingresso indipendente, piano 1°, appartamento composto da ingresso al piano terreno, ampio corridoio disimpegno, cucina abitabile, camera doppia, camera singola e bagno, al piano 1°Completamente ristrutturato anche facciata. minimissime spese condominiali. […]
LEGGI ANCORA
- prezzo medio appartamento in zona OMI D19 : 14 €/m²
- prezzo medio villa in zona OMI D19 : 12,5 €/m²
stanza singola ragazze zona careggi
casa semindipendente Careggi 400 € mese
Da Privato. Affittasi 1 stanza a ragazze ammobiliata e in ottime condizioni vicino Careggi: • Ad uso singolo 400 euro più 50 euro di condominio(incluso riscaldamento) ,libera dall’1 giugno La stanza fa parte di un appartamento ammobiliato e in ottime condizioni posto al primo piano con ascensore in condo […]
LEGGI ANCORA
- prezzo medio appartamento in zona Careggi : 17,4 €/m²
- prezzo medio ufficio in zona Careggi : 12 €/m²
Immobile in affitto a Firenze(FI PREMIUM
- prezzo medio locale commerciale in zona OMI D18 : 6 €/m²
- prezzo medio locale commerciale in zona Careggi : 7,3 €/m²
villa in affitto a Firenze
casa semindipendente Via Guglielmo Massaia 2.000 € mese
Firenze – Santa Marta – pressi Via Guglielmo Massaia splendido villino indipendente, libero su quattro lati, circondato da giardino privato. L’immobile si sviluppa su due livelli: al piano terreno zona giorno composta da ingresso, grande cucina abitabile, sala da pranzo, salotto e un comodo bagno/lavande […]
LEGGI ANCORA
- prezzo medio appartamento in zona OMI D23 : 17,1 €/m²
- prezzo medio villetta a schiera in zona OMI D23 : 16,6 €/m²
Capannone industriale in affitto a Firenze, Careggi - Rifredi - Dalmazia
Proposto da:
AGENZIA IMMOBILIARE MARCONI
casa semindipendente Careggi Via delle Panche 2.250 € mese
RIFREDI VIA DELLE PANCHE AFFITTIAMO LOCALE DI MQ 450 CON ALTEZZA DI MT. 4,30 MOLTO LUMINOSO CON LUCERNAI APRIBILI CHE SI APRONO SU UN PIAZZALE CHE FA DA TETTO AL SOTTOSUOLO. L'INGRESSO E' DA VIA DELLE PANCHE DA UNA RAMPA CARRABILE DI ALTEZZA . 5,50 CIRCA COMODA PER ENTRARE CON CAMION E FURGONI ALL'INTERN […]
LEGGI ANCORA
- prezzo medio locale commerciale in zona OMI D18 : 6 €/m²
- prezzo medio casa semindipendente in zona OMI D18 : 15,2 €/m²
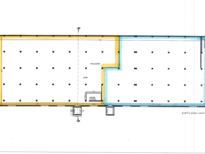
Magazzino in affitto a Firenze
locale di sgombero Piazza Dalmazia 6.400 € mese
Piazza Dalmazia pressi, proponiamo in affitto ampio magazzino/deposito di 1600 mq con altezza interna di 3.30 m (immobile evidenziato in verde nella planimetria in sezione). L'immobile si trova al piano seminterrato (a cui si accede tramite scale e montacarichi per pallet di recente installazione) di fab […]
LEGGI ANCORA
- prezzo medio locale commerciale in zona OMI D18 : 6 €/m²
- prezzo medio locale commerciale a Firenze : 13,5 €/m²
villa in affitto a Firenze
locale di sgombero 1.285 € mese
RIF. 1539 - FIRENZE - In posizione strategica caratterizzata da ampio passaggio e visibilità, IMMOBILIARE1984 propone cessione attività di vendita di articoli sanitari, ben avviata e con all'attivo 35 anni di esperienza. L'immobile presenta un'ampia area dedicata alla vendita al pubblico, un magazzino, u […]
LEGGI ANCORA
- prezzo medio villa a Firenze : 18,4 €/m²
CIVILE ABITAZIONE VIA REGINALDO GIULIANI 164 RIFREDI bilocale 50mq
casa semindipendente Rifredi Via Reginaldo Giuliani 1.100 € mese
CIVILE ABITAZIONE VIA REGINALDO GIULIANI 164 RIFREDI bilocale 50mq Firenze Firenze Toscana via reginaldo giuliani libero da gennaio 2026 affittiamo a soli referenziati con reddito dimostrabile un ottimo appartamento bilocale composto da ingresso soggiorno con angolo cottura camera matrimoniale servizio r […]
LEGGI ANCORA
- prezzo medio appartamento in zona OMI D18 : 17,5 €/m²
- prezzo medio bivano in zona OMI D18 : 19,4 €/m²
villa in affitto a Firenze in zona Careggi PREMIUM
Careggi, Via Reginaldo Giuliani, in villino con ingresso indipendente, piano 1°, appartamento composto da ingresso al piano terreno, ampio corridoio disimpegno, cucina abitabile, camera doppia, camera singola e bagno, al piano 1°Completamen […]
LEGGI ANCORA
- prezzo medio appartamento in zona OMI D19 : 14 €/m²
- prezzo medio villa in zona OMI D19 : 12,5 €/m²
Via delle panche pressi RIFREDI / DALMAZIA / CAREGGI quadrilocale 260mq
casa semindipendente Careggi Via delle Panche 1.800 € mese
Via delle panche pressi RIFREDI / DALMAZIA / CAREGGI quadrilocale 260mq Firenze Firenze Toscana rifredi - via dello steccuto - zona ben servita si propone in locazione elegante loft ad uso ufficio 260 mq con resede condominiale dove possibile parcheggiare l auto. limmobile nasce dalla di un ex fabbricato […]
LEGGI ANCORA
- prezzo medio appartamento in zona OMI D18 : 17,5 €/m²
- prezzo medio quadrivano in zona OMI D18 : 13,6 €/m²
appartamento in affitto a Firenze in zona Careggi
ufficio Careggi 770 € mese
Studio creativo privato – Back to Apollo Firenze (non coworking) Back to Apollo apre due stanze private (20/25 mq l'una) all’interno del proprio loft creativo a Firenze: doppia altezza, vetro, legno, luce naturale, dettagli Bauhaus, sala riunioni con schermo 85’’. Ambiente curato, silenzioso, internazio […]
LEGGI ANCORA
- prezzo medio ufficio in zona Careggi : 12 €/m²
- prezzo medio appartamento in zona Careggi : 17,4 €/m²
villa in affitto a Firenze
casa semindipendente 3.000 € mese
Proponiamo in locazione con contratto 3+2 una splendida villetta indipendente, immersa nella tranquillità del verde, ideale per chi cerca privacy, comfort e ampi spazi sia interni che esterni. L'immobile si sviluppa su due livelli ed è così composto: al piano terra troviamo un ampio soggiorno luminoso c […]
LEGGI ANCORA
- prezzo medio casa indipendente in zona OMI D23 : 17,7 €/m²
- prezzo medio casa semindipendente in zona OMI D23 : 23,1 €/m²
Non perdere gli altri 54 annunci!












