N.B. Tutti le informazioni immobiliari sono fornite senza alcuna garanzia. Leggi il disclaimer.
Case semindipendenti o locali di sgombero o loft o uffici in affitto a Firenze in zona Careggi - pg. 3 di 5
MODIFICA QUESTA RICERCACasa indipendente in affitto a Firenze(FI PREMIUM
- prezzo medio appartamento in zona OMI D18 : 16,3 €/m²
- prezzo medio casa indipendente in zona OMI D18 : 19,3 €/m²
Affitto Negozio Firenze
Proposto da:
loft Careggi 10.000 € mese
FIRENZE CASTELLO Al confine tra Rifredi e Sesto Fiorentino, in zona commerciale e strategica, ottimamente collegata a tutti i servizi e vicino all'imbocco autostradale, proponiamo in affitto locale commerciale di circa 1000 mq posto su due livelli. L'immobile è composto da 260 mq di zona laboratorio, 500 […]
LEGGI ANCORA
- prezzo medio villa in zona OMI D19 : 13,7 €/m²
- prezzo medio locale commerciale in zona Careggi : 7,2 €/m²
locale di sgombero in affitto a Firenze in zona Careggi
ufficio Careggi Via Reginaldo Giuliani 2.500 € mese
Magazzino con Ufficio e Sottoscala – Trasformabile in Garage con 12 Posti Auto – Via Reginaldo Giuliani In posizione strategica e ben collegata, proponiamo in affitto un ampio magazzino di 240 mq, situato in Via Reginaldo Giuliani, a pochi minuti dai principali collegamenti stradali e dai servizi della […]
LEGGI ANCORA
Locale commerciale FIRENZE €.2500 MQ.230 Vani 2
ufficio Careggi 2.500 € mese
Proponiamo in affitto un ampio locale commerciale situato nel cuore di Firenze, precisamente nella vivace zona di Rifredi. Con una superficie di circa 230 mq, questo spazio al piano terra è ideale per diverse attività commerciali, grazie alla sua versatilità e alla posizione strategica. Il locale si comp […]
LEGGI ANCORA
- prezzo medio ufficio in zona Careggi : 10,8 €/m²
- prezzo medio locale commerciale in zona Careggi : 7,2 €/m²
loft in affitto a Firenze in zona Careggi
loft Careggi Via delle Panche 1.550 € mese
Proponiamo in locazione un immobile commerciale di circa 95 mq, caratterizzato da ottima visibilità e posizione strategica. L'immobile dispone di tre ampie vetrine su strada e si trova in un tratto molto frequentato di via delle Panche, di fronte a un semaforo e circondato da numerose attività commercia […]
LEGGI ANCORA
- prezzo medio loft in zona OMI D18 : 10,4 €/m²
- prezzo medio loft in zona Careggi : 11,2 €/m²
Casa indipendente in affitto a Firenze(FI
casa semindipendente Careggi Piazza Dalmazia 3.300 € mese
Questo è un Grande appartamento in posizione strategica, posizionato proprio davanti alla stazione di Rifredi. Disposto su due piani, composto da: - Cucina-Pranzo attrezzata e arredata che rappresenta lo spazio comune della casa - 4 camere matrimoniali molto ampie e complete di letto, comodini e armadio […]
LEGGI ANCORA
- prezzo medio appartamento in zona OMI D18 : 16,3 €/m²
- prezzo medio casa indipendente in zona OMI D18 : 19,3 €/m²
Immobile in affitto a Firenze(FI PREMIUM
- prezzo medio locale commerciale in zona OMI D18 : 6,8 €/m²
- prezzo medio locale commerciale in zona Careggi : 7,2 €/m²
ufficio in affitto a Firenze in zona Careggi
ufficio Careggi 512 € mese
Dalmazia, vendesi, causa trasferimento attivita’ di cartoleria con ottimo avviamento. I servizi offerti dall’attivita’ sono: - consegna e ritiro pacchi - vendita articoli di cartoleria, giocattoli, libri di lettura per bambini, articoli per ufficio, cancelleria, biglietti augurali, zaini, astucci, diari […]
LEGGI ANCORA
- prezzo medio ufficio in zona Careggi : 10,8 €/m²
- prezzo medio ufficio a Firenze : 16,9 €/m²
Ufficio in affitto a Firenze, Rifredi
ufficio Rifredi 5.000 € mese
Firenze, in zona Rifredi, di facile raggiungimento, ufficio di 320 mq in ottime condizioni, attualmente composto da unico vano ma di facile divisione interna per le ampie finestre all'interno dell'immobile, con doppio servizio ed antibagno. Affittasi Classe Energetica: G
LEGGI ANCORA
- prezzo medio appartamento in zona OMI C4 : 17,1 €/m²
- prezzo medio ufficio in zona OMI C4 : 15,8 €/m²
Affittasi magazzino a Firenze via Taddeo Alderotti, Careggi - Rifredi - Dalmazia
locale di sgombero Careggi Via Taddeo Alderotti 550 € mese
CAREGGI VIA ALDEROTTI- Fondo su strada di passaggio con uno sporto su strada ed ingresso secondario dal condominio di circa 20 mq. L’immobile e’ gia’ libero . Richiesta Euro 600,00 mensili . Tel 0554368060 www.immagineimmobiliare.it CAREGGI VIA ALDEROTTI- Fondo su strada di passaggio con uno sporto su st […]
LEGGI ANCORA
Locale commerciale FIRENZE €.610 MQ.22 Vani 1
ufficio Careggi Via Vittorio Locchi 610 € mese
VIA LOCCHI PRESSI LOCALE COMMERCIALE MQ. 22 CON SERVIZIO OTTIME CONDIZIONI ADATTO ANCHE PER UFFICIO RIF.2575
LEGGI ANCORA
- prezzo medio ufficio in zona OMI D18 : 11,5 €/m²
- prezzo medio ufficio in zona Careggi : 10,8 €/m²
Affitto locale commerciale via Morandi 62 Firenze (FI
ufficio Via Luigi Morandi 800 € mese
VIA MORANDI: nelle immediate vicinanze della Scuola materna ed elementare Don Minzoni, in una zona caratterizzata da varie attività commerciali e abitualmente frequentata dagli abitanti del quartiere proponiamo la locazione di un fondo commerciale ideale per sia come negozio che come ufficio, situato al […]
LEGGI ANCORA
- prezzo medio locale commerciale in zona OMI D18 : 6,8 €/m²
- prezzo medio ufficio in zona OMI D18 : 11,5 €/m²
Affittasi ufficio a Firenze via del Sodo, Castello PREMIUM
Proposto da:
- prezzo medio appartamento in zona OMI D19 : 14,9 €/m²
- prezzo medio appartamento a Firenze : 22,4 €/m²
locale di sgombero in affitto a Firenze in zona Careggi
locale di sgombero Careggi Piazza Dalmazia 5.000 € mese
Rifredi - pressi Piazza Dalmazia Magazzino di 850 mq A soli 150 metri da Piazza Dalmazia, proponiamo in affitto (anche con contratti mensili) un ampio magazzino/deposito di 850 mq, con altezza interna di 3,7 metri, situato al primo e ultimo piano. L’accesso al piano è servito da due montacarichi industri […]
LEGGI ANCORA
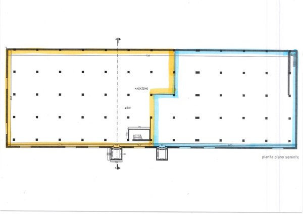
Magazzino FIRENZE €.6400 MQ.1800 Vani 1
locale di sgombero Piazza Dalmazia 6.400 € mese
Piazza Dalmazia pressi, proponiamo in affitto ampio magazzino/deposito di 1600 mq con altezza interna di 3.30 m (immobile evidenziato in verde nella planimetria in sezione). L'immobile si trova al piano seminterrato (a cui si accede tramite scale e montacarichi per pallet di recente installazione) di fab […]
LEGGI ANCORA
locale commerciale in affitto a Firenze
ufficio 700 € mese
Firenze zona Poggetto quartiere tranquillo posizione molto silenziosa e lontana dal traffico veicolare, a soli 10 minuti a piedi dalla fermata della tramvia, affittasi a professionisti referenziati locale commerciale ideale per studio professionale posto al piano terreno di un edificio anni '60 con facci […]
LEGGI ANCORA
- prezzo medio ufficio in zona OMI C4 : 15,8 €/m²
- prezzo medio ufficio a Firenze : 16,9 €/m²
Magazzino in affitto a Firenze, Rifredi
locale di sgombero Rifredi Piazza Dalmazia 6.100 € mese
RB490 - FIRENZE - RIFREDI - Nelle vicinanze di Piazza Dalmazia e della Stazione FS di Firenze Rifredi affittiamo immobile uso magazzino o deposito al 1 piano con 2 montacarichi di palazzina industriale all'interno di borghetto con accesso carrabile anche abilici e TIR. POSSIBILITA' ANCHE DI CONTRATTI MEN […]
LEGGI ANCORA
- prezzo medio appartamento in zona OMI D18 : 16,3 €/m²
- prezzo medio locale commerciale in zona OMI D18 : 6,8 €/m²
Magazzino in affitto a Firenze via Reginaldo Giuliani, Careggi - Rifredi - Dalmazia
ufficio Careggi Via Reginaldo Giuliani 2.500 € mese
In posizione strategica e ben collegata, proponiamo in affitto un ampio magazzino di 240 mq, situato in Via Reginaldo Giuliani, a pochi minuti dai principali collegamenti stradali e dai servizi della zona. L’immobile si presenta in buone condizioni ed è composto da: Ampio spazio principale di 240 mq, per […]
LEGGI ANCORA
- prezzo medio locale commerciale in zona OMI D18 : 6,8 €/m²
- prezzo medio ufficio in zona OMI D18 : 11,5 €/m²
Casa indipendente in affitto a Firenze(FI PREMIUM
- prezzo medio appartamento in zona OMI D18 : 16,3 €/m²
- prezzo medio casa indipendente in zona OMI D18 : 19,3 €/m²
Casa Indipendente trilocale 60mq
casa semindipendente Rifredi 900 € mese
Casa Indipendente trilocale 60mq Firenze Firenze Toscana affittasi a rifredi pressi castello terra tetto completamente ristrutturato e arredato con materiali di prima scelta libero d novembre 2025 . ingresso indipendente con giardino piastrellato soggiorno angolo cottura camera matrimoniale cameretta bag […]
LEGGI ANCORA
Appartamento in affitto a Firenze
casa semindipendente Serpiolle 1.250 € mese
CAREGGI, A SOLI REFERENZIATI MASSIMO DUE PERSONA (COPPIA O DUE PERSONE). In edificio fine '800, appartamento di recente ristrutturazione di mq. 70 con ingresso indipendente composto da: ingresso, soggiorno-pranzo con zona cottura, disimpegno, bagno con doccia, vano cabina armadio con scala in legno a vis […]
LEGGI ANCORA
- prezzo medio appartamento in zona OMI R1 : 20,7 €/m²
- prezzo medio casa semindipendente in zona OMI R1 : 21,3 €/m²
villa in affitto a Firenze
ufficio 400 € mese
Firenze, zona Sodo, affittasi fondo commerciale di 25 mq SUL. composto da unico vano oltre ripostiglio con lavandino. L'immobile è posto al piano terra con una vetrina e si presta sia come uso ufficio che come negozio. Facilità di parcheggio. Altezza interna 3,4 mt. Libero subito. E' presente un servizio […]
LEGGI ANCORA
- prezzo medio ufficio a Firenze : 16,9 €/m²
Non perdere gli altri 57 annunci!













