N.B. Tutti le informazioni immobiliari sono fornite senza alcuna garanzia. Leggi il disclaimer.
Negozi con riscaldamento autonomo e con termocondizionamento, di recente ristrutturazione in vendita a Firenze in zona Campo di Marte - pg. 18 di 19
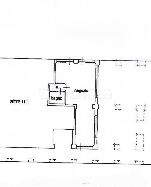
MODIFICA QUESTA RICERCANegozio in vendita a Firenze via delle Cento Stelle, 5, Campo di Marte PREMIUM
negozio in vendita a Firenze in zona Centro Duomo
negozio Centro Duomo Piazza della Liberta 200.000 €
Ubicato in posizione altamente strategica, a pochi passi da Piazza della Libertà e dalla fermata della tramvia, proponiamo un bellissimo locale/ristorante in stile moderno di circa 110 mq interni con splendida terrazza coperta di circa 80 mq con una capacità totale di circa 70 posti a sedere
LEGGI ANCORA
Ristorante in vendita a Firenze via Gabriele d'Annunzio, Coverciano
negozio Coverciano 120.000 €
Scopri un'opportunità imperdibile nel colline di Coverciano! Questo ottimo ristorante, con una superficie di circa 60 mq, è pronto per accogliere la tua passione culinaria. Con 35 posti a sedere e un delizioso dehor, il locale è perfetto per attrarre sia clienti italiani che stranieri. La cucina è comple […]
LEGGI ANCORA
Negozio in vendita a Firenze via d annunzio, 20, Coverciano
negozio Coverciano
COVERCIANO D ANNUNZIO BEL NEGOZIO GRANDE SERVIZIO BEL PASSAGGIO. IN UN BELL EDIFICIO DI RECENTE REALIZZAZIONE ABBIAMO IN LOCAZIONE UN BEL NEGOZIO CON DOPPIO INGRESSO E POSTO AUTO IN DOTAZIONE ALL UNITÀ IMMOBILIARE . BEL PUNTO DI PASSAGGIO . NEGOZIO IN OTTIMO STATO . TERMOSINGOLO . PER INFORMAZIONI E SOPR […]
LEGGI ANCORA
negozio in vendita a Firenze
negozio Viale Giuseppe Mazzini 390.000 €
Negozio 200 mq Pressi Viale Mazzini - Masaccio Proponiamo ampio negozio di 200 mq, con ingresso indipendente tramite una vetrina su strada. L’immobile si sviluppa in un unico grande vano, con un servizio igienico e un comodo vano tecnico. Ideale per diversi tipi di attività, grazie alla sua versatilit
LEGGI ANCORA
- prezzo medio casa semindipendente in zona OMI B2 : 4927 €/m²
- prezzo medio casa semindipendente a Firenze : 3598 €/m²
Ristorante FIRENZE €.330000 MQ.70 Vani 2
negozio 330.000 €
Rif. AC-150) Zona centralissima prossimo Santa Ambrogio ristorante con locale storico con il suo bel bancone all'entrata e pavimento in mattoni tipico toscano. Qualità, cibo e prezzo e' la forza del ristorante. Servizio ottimo, personale gentile e disponibile, Locale curato e ben pulito. Incassi ottimi d […]
LEGGI ANCORA
Attività / Licenza in vendita a Firenze(FI PREMIUM
locale di sgombero in vendita a Firenze
negozio Viale Giuseppe Mazzini 390.000 €
VEC000FONA, FIRENZE, MAZZINI pressi, Fondo commerciale (C/1) con sporto su strada. € 390.000 Via Masaccio interno, fondo accatastato C/1 (negozio) composto da unico ampio vano open space che lo rende utilizzabile per molteplici attività sia commerciali che professionali, o per uso magazzino/deposito di g […]
LEGGI ANCORA
- prezzo medio loft in zona OMI B2 : 5236 €/m²
- prezzo medio loft a Firenze : 4717 €/m²
COMMERCIALE VIA LUNGO AFFRICO 172 COVERCIANO monolocale 38mq
negozio Coverciano Viale Eleonora Duse 98.000 €
COMMERCIALE VIA LUNGO AFFRICO 172 COVERCIANO monolocale 38mq Firenze Firenze Toscana via lungo laffrico tratto tra viale duse e via fontebuoni vendiamo fondo commerciale cat. c1 di consistenza 38 mq con sporto sulla via e con soppalco e servizio. il fondo e libero da subito e si presenta da ristrutturare […]
LEGGI ANCORA
- prezzo medio appartamento in zona OMI C9 : 4931 €/m²
- prezzo medio monolocale in zona OMI C9 : 4237 €/m²
ATTIVITA' COMMERCIALI - ALBERGO - FIRENZE
negozio Piazza Cesare Beccaria 8.000.000 €
ottimo albergo in vendita a firenze (fi), mura e gestione categoria quattro stelle; composto da 87 camere tutte con bagno, aria condizionata, tv e telefono, distribuite tra il primo e il sesto piano. non necessita di ristrutturazione ma di migliorie ed ammodernamento di alcune parti spesa prevista circa […]
LEGGI ANCORA
Terreno edificabile residenziale in vendita a Firenze
negozio Le Cure 5.950.000 €
FIRENZE CITTA PROGETTO APPROVATO PER CIRCA 80 APPARTAMENTI ALTRE ACCESSORI E GIARDINO. SE SEI INGTERESSATO A QUESTO ANNUNCIO CHIAMA SUBITO PER FISSARE UN APPUNTAMENTO ED OTTENERE ALTRER INFORMAZIONI O VALUTARE ALTRE OCCASIONI. - RIF.6/0008 - (agg. 05/02/2026
LEGGI ANCORA
COMMERCIALE VIA LUNGO L´AFFRICO 168 COVERCIANO monolocale 38mq
negozio Coverciano Viale Eleonora Duse 88.000 €
COMMERCIALE VIA LUNGO L´AFFRICO 168 COVERCIANO monolocale 38mq Firenze Firenze Toscana via lungo laffrico tratto tra viale duse e via fontebuoni vendiamo fondo commerciale cat. c1 di consistenza 38 mq con sporto sulla via con soppalco e servizio. il fondo e libero da subito e si presenta da ristrutturare […]
LEGGI ANCORA
- prezzo medio appartamento in zona OMI C9 : 4931 €/m²
- prezzo medio monolocale in zona OMI C9 : 4237 €/m²
ristorante in vendita a Firenze PREMIUM
appartamento in vendita a Firenze in zona Centro Santa Croce
negozio Centro Santa Croce 690.000 €
Sant’Ambrogio in palazzina d’epoca immobile di 5 vani mq 110 oggetto molto particolare adatto ad abitazione-studio. Ingresso indipendente da un primo ambiente accatastato a negozio di mq 25, vano adatto a vari usi con angolo cottura con affaccio sul giardino privato con un primo servizio e un ripostiglio
LEGGI ANCORA
- prezzo medio casa semindipendente in zona OMI B6 : 6122 €/m²
- prezzo medio appartamento in zona OMI B6 : 5936 €/m²
negozio in vendita a Firenze in zona Bellariva
negozio Bellariva 110.000 €
Bellariva, zona q. Sella / de sanctis, ottima posizione commerciale, fondo uso negozio, ampio sporto fronte strada, composto da unico vano di mq 30 al piano terreno + vano con ripostiglio e w. C al piano st. Mq 15. Subito disponibile
LEGGI ANCORA
Appartamento in vendita a Firenze piazzale Donatello, D'Azeglio
negozio Piazzale Donatello 3.000.000 €
Nel cuore di Firenze, in un elegante palazzo storico, in fase di completa ristrutturazione, esclusivo appartamento di circa 370 mq con cantina di 17 mq, sviluppato su un unico livello con doppi ingressi (di rappresentanza e di servizio) e ascensore. L’immobile, con affacci su tre lati e corte interna, va […]
LEGGI ANCORA
- prezzo medio appartamento in zona OMI B2 : 5303 €/m²
- prezzo medio loft in zona OMI B2 : 5236 €/m²
Attività commerciale in vendita a Firenze via Della Rondinella, 17Q, Coverciano
negozio Coverciano Via della Rondinella
FIRENZE/COVERCIANO - più precisamente in via della Rondinella, IPI propone in cessione l'attività di tabaccheria con ricevitoria Sisal (Lotto, Superenalotto, Gratta e Vinci) in una zona ad alto passaggio e grande visibilità di Firenze Coverciano. La posizione è ottima: si trova vicino a un bar/pasticceri […]
LEGGI ANCORA
D´ANNUNZIO COVERCIANO trilocale 270mq
negozio Coverciano 350.000 €
D´ANNUNZIO COVERCIANO trilocale 270mq Firenze Firenze Toscana c2 con ampio resede esclusivo. triplo sporto di ingresso. proponiamo in vendita un di 270 mq ideale per rimessaggio e logistica. indipendente tramite rampa carrabile per mezzi di grandi dimensioni. spazio esterno resede frontale di proprieta d […]
LEGGI ANCORA
- prezzo medio appartamento in zona Coverciano : 4867 €/m²
- prezzo medio trivano in zona Coverciano : 5257 €/m²
Negozio in vendita a Firenze via delle Cento Stelle, 5, Campo di Marte PREMIUM
COMMERCIALE VIA CAPO DI MONDO 18 OBERDAN-GIOBERTI monolocale 49mq
negozio Via Capo di Mondo 75.000 €
COMMERCIALE VIA CAPO DI MONDO 18 OBERDAN-GIOBERTI monolocale 49mq Firenze Firenze Toscana piazza oberdan --- pressi via capo di mondo ampio fondo 49 mq addato a vari usi accatastato c 3 piano terra con ingresso indipendente con bagno finestrato luminoso tranquillo da ristrutturare. indice prestazione ene […]
LEGGI ANCORA
- prezzo medio appartamento in zona OMI B2 : 5303 €/m²
- prezzo medio monolocale in zona OMI B2 : 5151 €/m²
VENDITA TABACCHERIA RICEVITORIA FIRENZE
negozio 400.000 €
PIAZZA SAN MARCO PRESSI, ANGOLARE, TABACCHI COMPLETO DI TUTTI GIOCCHI, SOUVENIR, CHIUSO LA DOMENICA, AFFITTO MURA 2. 800 AL MESE, AGGI 150. 000 ANNO, , INDICE PRESTAZIONE ENERGETICA MAGGIORE 175 KWH/MQALA SIGNORIA SRL E' UN AGENZIA IMMOBILIARE CHE OPERA IN TUTTA LA TOSCANA, PRINCIPALMENTE SULL'AREA DI FI […]
LEGGI ANCORA
COMMERCIALE CAPO DI MONDO 18 OBERDAN-GIOBERTI monolocale 37mq
negozio Piazza Guglielmo Oberdan 55.000 €
COMMERCIALE CAPO DI MONDO 18 OBERDAN-GIOBERTI monolocale 37mq Firenze Firenze Toscana piazza oberdan --- pressi via capo di mondo ampio fondo 37 mq addato a vari usi accatastato c 3 piano terra con ingresso indipendente luminoso tranquillo da ristrutturare. indice prestazione energetica maggiore 175 kwhm […]
LEGGI ANCORA
- prezzo medio appartamento in zona OMI B2 : 5303 €/m²
- prezzo medio monolocale in zona OMI B2 : 5151 €/m²
Non perdere gli altri 320 annunci!











