N.B. Tutti le informazioni immobiliari sono fornite senza alcuna garanzia. Leggi il disclaimer.
Capannoni o terreni edificabili o terreni industriali con ascensore e con balcone e senza ascensore in vendita a Empoli
MODIFICA QUESTA RICERCACasa indipendente in vendita a Empoli PREMIUM
Cod.01016 Rif.Ag. 9260-04 - UNA VILLA DAVVERO NUOVA OGGI È POSSIBILE! Un sogno che può realizzarsi e che si chiama "La Villa in Classe A". Le ville sono merce rara nell'Empolese. Ancora di più quelle di una metratura giusta per una famiglia […]
LEGGI ANCORA
- prezzo medio casa indipendente in zona OMI R1 : 1950 €/m²
- prezzo medio casa semindipendente in zona OMI R1 : 1961 €/m²
Capannone in Vendita a Empoli Via Giuseppe di Vittorio, 22
capannone Via Giuseppe Di Vittorio 800.000 €
EMPOLI - ZONA INDUSTRIALE TERRAFINO - CAPANNONE LIBERO SU TRE LATI - Rif. 4/0106 - All 'interno della zona industriale Terrafino, bell 'immobile di circa 1.300 mq con destinazione d 'uso industriale/artigianale, disposto su due piani, libero su tre lati e con resede condominiale per carico e scarico merc […]
LEGGI ANCORA
Immobile in vendita a Empoli(FI
Capannone industriale in vendita a Empoli
capannone 200.000 €
Riferimento immobile VC4725 Empoli, località Terrafino, si vende immobile locato con contratto 6+6. i immobile ad uso artigianale/industriale posto su due livelli e composto da un unico vano di mq. 70 al piano terra e un ampio locale di circa 250 mq. al piano primo, collegati mediante vano scala interno. […]
LEGGI ANCORA
Terreno edificabile in vendita a Empoli
terreno edificabile Monterappoli
MONTERAPPOLI In ottima posizione, a pochi km da Empoli e vicino al paese di Monterappoli, appezzamento di terreno composto da 4 particelle per un totale di mq 11.630; principalmente a seminativo pianeggiante con ampio annesso agricolo. Vicino alla zona residenziale. Terreno pianeggiante. Ottima esposizio […]
LEGGI ANCORA
Terreno industriale in vendita a Empoli
terreno edificabile
EMPOLI vendesi terreno edificabile destinazione commerciale o industriale produttivo in posizione strategica e di facile accesso, di circa 20,000 metri quadri sui quali possiamo costruire 9,000 metri quadri di fabbricati, divisibile in 2 lotti e più unità immobiliari. Occasione unica per chi cerca una po […]
LEGGI ANCORA
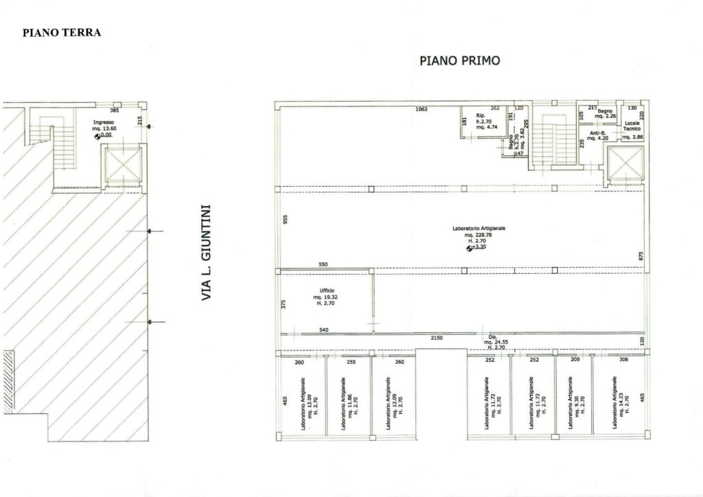
Laboratorio in Vendita a Empoli Via Leopoldo Giuntini, 50053 PREMIUM
Terreno industriale in Vendita a Empoli VIA FERDINANDO SANTI
terreno edificabile Via Ferdinando Santi
EMPOLI vendesi terreno edificabile destinazione commerciale o industriale produttivo in posizione strategica e di facile accesso, di circa 20,000 metri quadri sui quali possiamo costruire 9,000 metri quadri di fabbricati, divisibile in 2 lotti e più unità immobiliari. Occasione unica per chi cerca una […]
LEGGI ANCORA
Terreno in vendita a Empoli(FI
TERRENO AGRICOLO TARTAGLIANA MARTIGNANA monolocale 1500mq
terreno edificabile
TERRENO AGRICOLO TARTAGLIANA MARTIGNANA monolocale 1500mq Empoli Firenze Toscana empoli loc. di empoli vendesi lotto di terreno agricolo di circa 1500 mq. tutto recintato con pozzo e corrente elettrica 20 piante di olivo a pruduzione frutti ecc. piccolo annesso di circa 15 mq. regolarmente condonato con […]
LEGGI ANCORA
Annesso agricolo in vendita a Ponzano - Empoli 1500 mq Rif: 1331240
terreno edificabile Ponzano
Cod.01144 - PONZANO - RIF. M/0591 - PRIMISSIMA CAMPAGNA, NELLA FRAZIONE DI PONZANO, TERRENO PIANEGGIANTE DI CIRCA 1500 MQ CON ANNESSO AGRICOLO CONDONATO DI CIRCA 30 MQ, LUCE E POZZO ARTESIANO. IL TERRENO, COMPLETAMENTE RECINTATO, SI TROVA IN UNA UNA STRADA SENZA SFONDO ED E' RIPARATO ALL' INTERNO DI PIU' […]
LEGGI ANCORA
Appartamento in vendita a Empoli
terreno edificabile Ponzano
EMPOLI, LOC. PONZANO, VENDESI LOTTO DI TERRENO AGRICOLO DI CIRCA 1550 MQ, CON 60 PIANTE DI OLIVI, E POSSIBILITA' DI AVRE IN CONDIVIONE CON PARTIECCELA CONFINANTE UN POZZO PER L'IRRIGAZIONEPOSSIBILITA' DI ACQUISIRE ALTRA PARTICELLA CONFINANTE PER ALTRI1200 MQ. - CLASSE ENERGETICA IN ELABORAZIONE RIF. 6/00 […]
LEGGI ANCORA
Terreno in vendita a Empoli(FI PREMIUM
Terreno in vendita, Empoli ponzano
terreno edificabile Ponzano
empoli, loc. ponzano, vendesi lotto di terreno agricolo di circa 1550 mq, con 60 piante di olivi, e possibilita' di avre in condivione con partieccela confinante un pozzo per l'irrigazionepossibilita' di acquisire altra particella confinante per altri1200 mq. - classe energetica in elaborazione rif.6/004 […]
LEGGI ANCORA
Appartamento in vendita a Empoli
terreno edificabile
EMPOLI, LOC. MARTIGNANA(COMUNE DI EMPOLI) VENDESI LOTTO DI TERRENO AGRICOLO DI CIRCA 1500 MQ., TUTTO RECINTATO, CON POZZO E CORRENTE ELETTRICA, 20 PIANTE DI OLIVO A PRUDUZIONE, FRUTTI ECC. PICCOLO ANNESSO DI CIRCA 15 MQ., REGOLARMENTE CONDONATO, CON BAGNO. FACILMENTE RAGGIUNGIBILE IN POCHI MINUTI DAL CEN […]
LEGGI ANCORA
Terreno in vendita a Empoli(FI
Terreno in vendita a Empoli(FI
Terreno in vendita, Empoli martignana
terreno edificabile
empoli, loc. martignana(comune di empoli) vendesi lotto di terreno agricolo di circa 1500 mq., tutto recintato, con pozzo e corrente elettrica, 20 piante di olivo a pruduzione, frutti ecc. piccolo annesso di circa 15 mq., regolarmente condonato, con bagno. facilmente raggiungibile in pochi minuti dal cen […]
LEGGI ANCORA
Casa indipendente in vendita a Empoli PREMIUM
Cod.01016 Rif.Ag. 9260-04 - UNA VILLA DAVVERO NUOVA OGGI È POSSIBILE! Un sogno che può realizzarsi e che si chiama "La Villa in Classe A". Le ville sono merce rara nell'Empolese. Ancora di più quelle di una metratura giusta per una famiglia […]
LEGGI ANCORA
- prezzo medio casa indipendente in zona OMI R1 : 1950 €/m²
- prezzo medio casa semindipendente in zona OMI R1 : 1961 €/m²
TERRENO AGRICOLO PANTANO PONZANO 1550mq
terreno edificabile Ponzano
TERRENO AGRICOLO PANTANO PONZANO 1550mq Empoli Firenze Toscana empoli loc. ponzano vendesi lotto di terreno agricolo di circa 1550 mq con 60 piante di olivi e possibilita di avre in condivione con partieccela confinante un pozzo per di acquisire altra particella confinante per altri1200 mq. - classe ener […]
LEGGI ANCORA
Terreno agricolo
terreno edificabile Ponzano
empoli, loc. ponzano, vendesi lotto di terreno agricolo di circa 1550 mq, con 60 piante di olivi, e possibilita' di avre in condivione con partieccela confinante un pozzo per l'irrigazionepossibilita' di acquisire altra particella confinante per altri1200 mq. - classe energetica in elaborazione rif. 6/00 […]
LEGGI ANCORA
Terreno agricolo in vendita a Martignana - Empoli 1500 mq Rif: 1095336
terreno edificabile
Cod.01438 - Empoli, loc. Martignana(Comune di Empoli) vendesi lotto di terreno agricolo di circa 1500 mq., tutto recintato, con pozzo e corrente elettrica, 20 piante di olivo a pruduzione, frutti ecc. Piccolo annesso di circa 15 mq., regolarmente condonato, con bagno. Facilmente raggiungibile in pochi mi […]
LEGGI ANCORA
Non perdere gli altri 100 annunci!









