N.B. Tutti le informazioni immobiliari sono fornite senza alcuna garanzia. Leggi il disclaimer.
Capannoni, di recente ristrutturazione in vendita a Calenzano
MODIFICA QUESTA RICERCAImmobile in vendita a Calenzano(FI
capannone in vendita a Calenzano
capannone 6.000.000 €
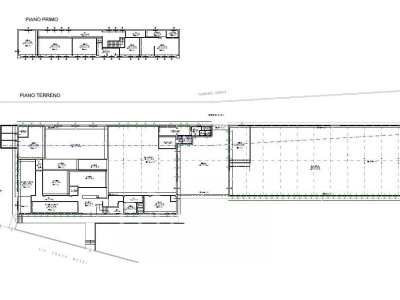
CALENZANO - In zona industriale vicino al casello autostradale, proponiamo in vendita BELLISSIMO CAPANNONE DI RAPPRESENTANZA libero su 4 lati di 3750 mq con piazzale privato di circa 3000 mq. L'immobile è composto da 3000 mq produttivi al piano terra altezza 5.80 mt oltre 750 mq di uffici posti al primo […]
LEGGI ANCORA
Capannone industriale in vendita a Calenzano
capannone
Affittasi IN ESCLUSIVA bellissimo capannone artigianale libero su 4 lati sito nel Comune di Calenzano in zona industriale di sicuro interesse e a 2 passi dal casello autostradale. L'immobile ha una superficie interna totale di circa 570mq di cui: - 450mq al piano terreno con 2 ingressi carrabili + 1 pedo […]
LEGGI ANCORA
Vendita Capannone via dell'Albereto Calenzano (FI
capannone 1.800.000 €
CALENZANO in piena zona produttiva a pochi minuti dall'accesso all'autostrada, capannone industriale di circa 1700mq con piazzale privato.<br><br>Ubicato in comoda strada senza sfondo all'interno di una zona produttiva ben sviluppata e collegata, proponiamo un ottimo capannone industriale composto da due […]
LEGGI ANCORA
Capannone industriale in vendita a Calenzano
capannone
In zona di alta visibilità , Capannone industriale in locazione di 10.000mq circa (di cui 7.000 mq al pian terreno e 3.000 mq al primo piano) + 4.000 mq di piazzale carrabile con ampi spazi di manovra anche di autoarticolati. Le altezze interne variano tra i 4 e i 5 metri alla base della campata
LEGGI ANCORA
Immobile in vendita a Calenzano(FI PREMIUM
- prezzo medio locale commerciale in zona OMI D2 : 1177 €/m²
- prezzo medio locale commerciale a Calenzano : 1375 €/m²
Immobile in vendita a Calenzano(FI
Capannone ristrutturata a Calenzano
Proposto da:
capannone 890.000 €
CALENZANO In zona industriale proponiamo in vendita capannone industriale completamente ristrutturato pochi anni fa di circa 590 mq con altezze 5,5 mt completo di servizi e spogliatoi. L'immobile dispone di un soppalco di circa 210 mq attualmente utilizzato come uffici, showroom e servizi. Il capannone è […]
LEGGI ANCORA
Immobile in vendita a Calenzano(FI
- prezzo medio locale commerciale in zona OMI D2 : 1177 €/m²
- prezzo medio locale commerciale a Calenzano : 1375 €/m²
CAPANNONE in VENDITA a CALENZANO
Proposto da:
capannone 1.800.000 €
CALENZANO - In zona di facile accesso, proponiamo in vendita capannone di totali 1400 mq disposti su 2 livelli di 700 mq l'uno con altezza 3,70 mt serviti da montacarichi. L'immobile dispone di un piazzale privato di circa 2000 mq libero su 4 lati. POSSIBILITA' DI AMPLIAMENTO SUPERFICIE COPERTA. 1.800.00 […]
LEGGI ANCORA
CAPANNONE in VENDITA a CALENZANO
Proposto da:
capannone 420.000 €
CALENZANO - In zona di facile accesso, vicina al casello autostradale, proponiamo in vendita capannone di 600 mq con altezza 4,70 mt sotto-tirante. L'immobile viene consegnato in buone condizioni generali. Libero subito. 420.000. (160 kWh/mca). La presente classe energetica potrebbe essere soggetta a var […]
LEGGI ANCORA
CAPANNONE in VENDITA a CALENZANO
Proposto da:
capannone 900.000 €
CALENZANO - In zona di facile accesso, proponiamo in vendita capannone di totali 700 mq disposti su 2 livelli di 350 mq l'uno con altezza 3,70 mt serviti da montacarichi. L'immobile dispone di un piazzale privato di circa 1000 mq. POSSIBILITA' DI AMPLIAMENTO SUPERFICIE COPERTA. 900.000. (160 kWh/mca). La […]
LEGGI ANCORA
Capannone industriale in vendita a Calenzano
capannone 900.000 €
Vendesi capannone "A REDDITO" di recente costruzione (primi anni 2000) sito nel Comune di Calenzano in zona industriale di sicuro interesse e a 2 passi dal casello autostradale. Il fabbricato ha una superficie totale di 700mq compresi 300mq al piano primo. Completa la proprietà piazzale esterno privato d […]
LEGGI ANCORA
- prezzo medio locale commerciale a Calenzano : 1375 €/m²
CAPANNONE in VENDITA a CALENZANO
Proposto da:
capannone 530.000 €
SIGNA - In zona industriale di facile accesso, proponiamo in vendita capannone in ottime condizioni di totali 620 mq. L'immobile edificato inizi anni 2000, si dispone su 2 livelli con montacarichi. Il capannone libero su 3 lati dispone di un piazzale condominiale per carico/scarico e 8 posti auto esclusi […]
LEGGI ANCORA
Vendita Capannone Calenzano
capannone 1.450.000 €
Situato in una zona industriale del Comune di Calenzano (FI), in Via Dante Alighieri n° 9, proponiamo in vendita un immobile commerciale di 5160 mq . L'edificio è costituito da 5 piani , uno dei quali interrato ed è stato costruito nel 2007, l'unità in vendita è costituita da due corpi principali: un cop […]
LEGGI ANCORA
Capannone industriale in vendita a Calenzano via di Capalle
capannone 2.100.000 €
CALENZANO - Vicina a tutte le vie principali, proponiamo in vendita complesso immobiliare composto da: 1400 mq circa di capannone artigianale con altezza 4 mt.; 250 mq di direzionale; 4 appartamenti di varie matrature e piazzale privato libero su 4 lati. L'immobile per la sua struttura è idoneo per diver […]
LEGGI ANCORA
- prezzo medio locale commerciale in zona OMI B2 : 1750 €/m²
- prezzo medio locale commerciale a Calenzano : 1375 €/m²
Immobile in vendita a Calenzano(FI PREMIUM
- prezzo medio locale commerciale in zona OMI D2 : 1177 €/m²
- prezzo medio locale commerciale a Calenzano : 1375 €/m²
Capannone industriale in vendita a Calenzano
capannone 800.000 €
Vendesi bellissimo capannone di recente come costruzione (anni 2000) sito nel Comune di Calenzano in zona industriale di sicuro interesse e a 2 passi dal casello autostradale. L'immobile ha una superficie interna totale di circa 700mq suddivisi in 480mq al piano terra + 220mq al piano primo (ad uso labor […]
LEGGI ANCORA
- prezzo medio locale commerciale a Calenzano : 1375 €/m²
Capannone in vendita a Calenzano
Proposto da:
capannone 1.800.000 €
CALENZANO - In zona di facile accesso, proponiamo in vendita capannone libero su 4 lati con piazzale privato recintato. L'immobile dispone di una parte direzionale ad uso ufficio e una parte produttiva/magazzino per una metratura totale di circa 1900 mq. Le altezze del laboratorio sono 5,5, mt. Dispone i […]
LEGGI ANCORA
Capannone industriale in vendita a Calenzano
capannone 380.000 €
Vendesi bellissimo capannone sito tra il Comune di Prato e di Calenzano in zona industriale di sicuro interesse e ben collegata. L'immobile ha una superficie interna totale di circa 320mq con 1 ingresso carrabile e 50mq di Uffici. Resede anteriore di 100mq PRIVATO. PAVIMENTAZIONE INDUSTRIALE. Altezza int […]
LEGGI ANCORA
- prezzo medio locale commerciale a Calenzano : 1375 €/m²
Non perdere gli altri 28 annunci!











