N.B. Tutti le informazioni immobiliari sono fornite senza alcuna garanzia. Leggi il disclaimer.
Capannoni o locali commerciali o locali di sgombero in vendita a Calenzano - pg. 4 di 5
MODIFICA QUESTA RICERCAVendesi casa indipendente a Settimello, Calenzano PREMIUM
Calenzano, nella tranquilla e residenziale zona di Settimello, proponiamo in vendita un’interessante villetta indipendente libera su quattro lati, della superficie di 145 mq SUL, disposta interamente su un unico livello. L’immobile è compos […]
LEGGI ANCORA
- prezzo medio casa indipendente in zona OMI D3 : 3115 €/m²
- prezzo medio casa semindipendente in zona OMI D3 : 3224 €/m²
locale di sgombero in vendita a Calenzano
locale di sgombero 140.000 €
Fondo magazzino c2, seminterrato totalmente finestrato su 3 lati, altezza 2.65 metri, rampa di accesso indipendente, con servizi di acqua e luce, in ottime condizioni. Con annesso scannafosso di mq 6. Libero da subito
LEGGI ANCORA
Garage in vendita a Calenzano
locale di sgombero 39.000 €
Rif. K474 Calenzano nei pressi della Cartabianca, proponiamo in vendita autorimessa di 36mq catastali, oltre resede esclusivo anteriore, con bagno. Gode di due ingressi, altezza 2,10 mt, attualmente adibito ad uso magazzino, ha il contatore autonomo idrico ed elettrico. Per maggiori informazioni su quest […]
LEGGI ANCORA
Vendita Magazzino
locale di sgombero 47.500 €
VENDITA ufficio Calenzano-centro, via Buonarroti n20 (scritta ", vendesi", , a dx dell'accesso al Palazzo, tutti gli interni sono ben visibili, dalle 3 finestre) Micro-monolocale, contesto signorile, piano terreno, ingresso indipendente, possibile doppio volume, pavimenti in marmo travertino, amp […]
LEGGI ANCORA
locale commerciale in vendita a Calenzano
locale commerciale 145.000 €
Cerved Property Services Italy S. r. l. propone in vendita un locale commerciale, facente parte di un più ampio complesso a destinazione residenziale e commerciale elevato su due livelli sito nella zona periferica del comune di Calenzano, di circa 75 mq. L'unità, sita al piano terra, è composta da un lo […]
LEGGI ANCORA
- prezzo medio locale commerciale in zona OMI D2 : 1271 €/m²
- prezzo medio locale commerciale a Calenzano : 1247 €/m²
Capannone in vendita a Calenzano
capannone
CALENZANO in piena zona produttiva a pochi minuti dall'accesso all'autostrada, capannone industriale di circa 1700mq con piazzale privato. Ubicato in comoda strada senza sfondo all'interno di una zona produttiva ben sviluppata e collegata, proponiamo un ottimo capannone industriale composto da due corpi […]
LEGGI ANCORA
locale commerciale in vendita a Calenzano
locale commerciale 145.000 €
Trattasi di locale commerciale sito al piano terra di edificio di recente costruzione, con accesso su doppio ingresso su locale vendita- E' presente un disimpegno verso due servizi igienici ed uno spogliatoio, più un vano cucina ed un deposito. La superficie totale è di circa 74 mq con una altezza intern […]
LEGGI ANCORA
- prezzo medio locale commerciale in zona OMI D2 : 1271 €/m²
- prezzo medio locale commerciale a Calenzano : 1247 €/m²
Capannone industriale in vendita a Calenzano
locale di sgombero
Rif.795T Calenzano, vendesi porzione di fabbricato industriale completamente ristrutturato, libero su tre lati, pavimento in cemento/quarzo, NO eternit. Composto da magazzino di mq. 850 circa, appartamento di mq. 190 circa e seminterrato di mq. 290 circa. Richiesta euro. 920,00/mq. Non viene considerato […]
LEGGI ANCORA
capannone in vendita a Calenzano
capannone 3.000.000 €
Calenzano in zona industriale proponiamo capannone a volta composto da tre (3) campate per un totale di 3600 mq, in oltre dispone di appartamento al primo piano e uffici a piano terra per un totale di 300 mq. L'immobile richiede una ristrutturazione totale. Ha quattro (4) portoni carrabili. Copletano la […]
LEGGI ANCORA
Capannone industriale in vendita a Calenzano
capannone
Rf.825T Calenzano vendesi capannone libero su quattro lati di mq. 3850, compreso uffici ed appartamento da ristrutturare. Copertura a volta con altezza interna di m. 4,50 circa. Ottima posizione a circa km. 1,5 dall'autostrada Firenze Mare ed a km. 2 dal casello A1 di Calenzano. Il fabbricato necessita d […]
LEGGI ANCORA
Colonica/casale in buono stato di 280 mq. a Calenzano
Proposto da:
locale di sgombero 470.000 €
Sul declivio di un colle a sud di San Miniato è in vendita una casa colonica, con circa 4 ettari di terreno agricolo. Un'opportunità unica per chi desidera vivere in un contesto autentico, con una vista panoramica sulle dolci colline della campagna toscana e un paesaggio che cambia con le stagioni, a poc […]
LEGGI ANCORA
- prezzo medio casa indipendente a Calenzano : 3170 €/m²
- prezzo medio casale a Calenzano : 2747 €/m²
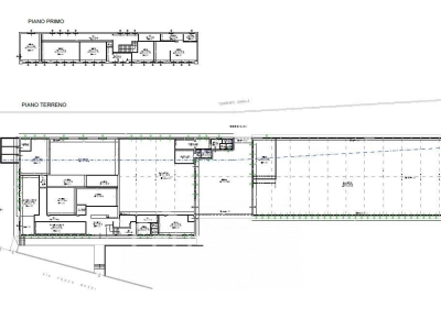
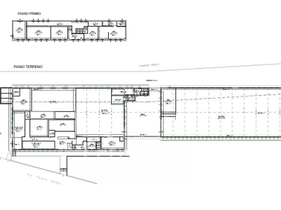
Capannone industriale in vendita a Calenzano PREMIUM
- prezzo medio locale commerciale a Calenzano : 1247 €/m²
Colonica/casale in buono stato di 405 mq. a Calenzano
Proposto da:
locale di sgombero 630.000 €
Sul declivio di un colle a sud di San Miniato è in vendita una proprietà costituita da casa colonica, fienile e circa 4,3 ettari di terreno agricolo, comprendente un'oliveta. Un'opportunità unica per chi desidera vivere in un contesto autentico, con una vista panoramica sulle dolci colline della campagna […]
LEGGI ANCORA
- prezzo medio casa indipendente a Calenzano : 3170 €/m²
- prezzo medio casale a Calenzano : 2747 €/m²
Vendesi locale commerciale a Calenzano
locale commerciale 930.000 €
CALENZANO - In zona di alta viabilità, proponiamo in vendita locale commerciale "LOCATO" di 250 mq. L'immobile dispone di uno spazio esterno di circa 85 mq e 13 posti auto coperti. Si precisa che il contratto di locazione in essere genera un'ottima rendita ed è uno dei locali più frequentati del comune d […]
LEGGI ANCORA
- prezzo medio locale commerciale in zona OMI D2 : 1271 €/m²
- prezzo medio locale commerciale a Calenzano : 1247 €/m²
Garage / Posto auto CALENZANO €.39000 MQ.36 Vani 1
locale di sgombero 39.000 €
CALENZANO IN ZONA "POLO UNIVERSITARIO" , PROPONIAMO IN VENDITA BOX AUTO DI CIRCA 36 MQ CON DOPPIA APERTURA, RESEDE ESCLUSIVO ANTERIORE, BAGNO, CONTATORE AUTONOMO DI LUCE E ACQUA, ALTEZZA 2,10 MT. ATTUALMENTE L'IMMOBILE E' ADIBITO AD USO MAGAZZINO. LA VIA INSERITA E' PURAMENTE INDICATIVA. RICHIESTA EURO 3 […]
LEGGI ANCORA
Rustico/casale/corte in vendita a Baroncoli, Calenzano
locale di sgombero Baroncoli 299.000 €
RIF. I/1550 - CALENZANO - Baroncoli, completamente immersa nel verde, ma a pochi minuti di distanza da Calenzano, IMMOBILIARE 1984, propone in vendita ampia porzione d'immobile edificato nei pressi di un antico mulino. L'immobile si sviluppa su tre livelli ed è composto da una prima unità ad uso civile a […]
LEGGI ANCORA
- prezzo medio casa indipendente in zona OMI R1 : 3232 €/m²
- prezzo medio casale in zona OMI R1 : 2938 €/m²
Appartamento in vendita a Calenzano
locale di sgombero 245.000 €
Nel centro di Calenzano – quadrilocale con doppio terrazzo e cantina Calenzano Centro – vista sul verde In posizione centralissima ma tranquilla, a due passi da ogni servizio, proponiamo un appartamento di ampia metratura posto al primo piano con ascensore, all’interno di una palazzina curata e ben abita […]
LEGGI ANCORA
- prezzo medio appartamento in zona OMI B2 : 3816 €/m²
- prezzo medio quadrivano in zona OMI B2 : 3578 €/m²
Vendesi casa indipendente a Settimello, Calenzano PREMIUM
Calenzano, nella tranquilla e residenziale zona di Settimello, proponiamo in vendita un’interessante villetta indipendente libera su quattro lati, della superficie di 145 mq SUL, disposta interamente su un unico livello. L’immobile è compos […]
LEGGI ANCORA
- prezzo medio casa indipendente in zona OMI D3 : 3115 €/m²
- prezzo medio casa semindipendente in zona OMI D3 : 3224 €/m²
Magazzino in vendita a Calenzano
locale di sgombero 105.000 €
RIF I/ 1454 Calenzano - Centro. Immobiliare 1984 propone in vendita ampio magazzino al piano seminterrato di 180 mq con accesso da comoda rampa carrabile. Varco di ingresso 3,5 m di larghezza per 2,60 di altezza al sottotrave. L'immobile si presenta in buone condizioni e si compone di un unico vano con s […]
LEGGI ANCORA
- prezzo medio locale commerciale a Calenzano : 1247 €/m²
laboratorio/garege/magazzino (piazzale e accesso autonomo
locale di sgombero Settimello 130.000 €
Da Privato. vendesi / affittasi: magazzino/laboratorio terratetto C/3 di 126 metri + terrazza (lastrico solare F/5 di 58 metri) anche ristrutturabile e dotato di soppalco, bagno, piazzale esterno privato (circa 180 metri) con passo carrabile esclusivo per accesso anche camionabile, altezza interna variab […]
LEGGI ANCORA
- prezzo medio casa indipendente in zona OMI D3 : 3115 €/m²
- prezzo medio villetta a schiera in zona OMI D3 : 3115 €/m²
Vendesi capannone industriale a Calenzano via dante alighieri
locale di sgombero 1.100.000 €
CALENZANO IN ZONA PRODUTTIVA VICINO AL CASELLO AUTOSTRADALE, DISPONIAMO DI OTTIMO CAPANNONE INDUSTRIALE (CATEGORIA D/7) , LIBERO SU 4 LATI CON PIAZZALE ESCLUSIVO DI CIRCA 1.000 MQ. IL FABBRICATO E' COSI' COMPOSTO: PIANO TERRA DI MQ.470 TOTALI DI CUI 250 MQ CON ALTEZZA DI MT 7,70 E 220 MQ CON ALTEZZA DI M […]
LEGGI ANCORA
- prezzo medio locale commerciale in zona OMI D2 : 1271 €/m²
- prezzo medio locale commerciale a Calenzano : 1247 €/m²
Non perdere gli altri 56 annunci!











