N.B. Tutti le informazioni immobiliari sono fornite senza alcuna garanzia. Leggi il disclaimer.
Capannoni o locali di sgombero con giardino in vendita a Calenzano in zona Settimello
MODIFICA QUESTA RICERCAImmobile in vendita a Calenzano(FI PREMIUM
- prezzo medio locale commerciale in zona OMI D2 : 1251 €/m²
- prezzo medio locale commerciale a Calenzano : 1261 €/m²
Vendesi casa indipendente a Settimello, Calenzano
locale di sgombero Settimello 595.000 €
Calenzano, nella tranquilla e residenziale zona di Settimello, proponiamo in vendita un’interessante villetta indipendente libera su quattro lati, della superficie di 145 mq SUL, disposta interamente su un unico livello. L’immobile è composto da sei vani con possibilità di ampliamento, con ambienti ampi, […]
LEGGI ANCORA
- prezzo medio casa indipendente in zona OMI D3 : 3241 €/m²
- prezzo medio casa semindipendente in zona OMI D3 : 3038 €/m²
Capannone in vendita a Calenzano
locale di sgombero Settimello
Calenzano, pressi Settimello, situato in zona limitrofa all'autostrada ed alle principali vie di comunicazione, proponiamo in vendita questo capannone industriale/artigianale di complessivi mq.1.900 circa oltre piazzale di carico/scarico merci di quasi mq.5.000 che lo perimetra su 4 lati. L'immobile risu […]
LEGGI ANCORA
Vendita Capannone Calenzano
capannone 1.350.000 €
Situato in una zona industriale del Comune di Calenzano (FI), in Via Dante Alighieri n° 9, proponiamo in vendita un immobile commerciale di 5160 mq . L'edificio è costituito da 5 piani , uno dei quali interrato ed è stato costruito nel 2007, l'unità in vendita è costituita da due corpi principali: un cop […]
LEGGI ANCORA
locale di sgombero in vendita a Calenzano
locale di sgombero
Fabbricato commerciale adibito a supermercato, sito nel Comune di Calenzano (FI), Piano Terra, composto da ingresso, sala vendita, magazzino, n. 2 locali lavorazione alimenti, spogliatoio con antibagno e n. 2 w. c. , ripostiglio, n. 5 vani tecnici e n. 2 depositi, oltre resede esterna con parcheggio priv […]
LEGGI ANCORA
Magazzino in vendita a Calenzano via Dante Alighieri
Proposto da:
- prezzo medio locale commerciale in zona OMI D2 : 1251 €/m²
- prezzo medio locale commerciale a Calenzano : 1261 €/m²
Magazzino in vendita a Calenzano via Dante Alighieri PREMIUM
Proposto da:
- prezzo medio locale commerciale in zona OMI D2 : 1251 €/m²
- prezzo medio locale commerciale a Calenzano : 1261 €/m²
laboratorio/garege/magazzino (piazzale e accesso autonomo
locale di sgombero Settimello 130.000 €
Da Privato. vendesi / affittasi: magazzino/laboratorio terratetto C/3 di 126 metri + terrazza (lastrico solare F/5 di 58 metri) anche ristrutturabile e dotato di soppalco, bagno, piazzale esterno privato (circa 180 metri) con passo carrabile esclusivo per accesso anche camionabile, altezza interna variab […]
LEGGI ANCORA
- prezzo medio casa indipendente in zona OMI D3 : 3241 €/m²
- prezzo medio villetta a schiera in zona OMI D3 : 3179 €/m²
Immobile in vendita a Calenzano(FI
- prezzo medio locale commerciale in zona OMI D2 : 1251 €/m²
- prezzo medio locale commerciale a Calenzano : 1261 €/m²
Laboratorio in vendita a Calenzano
capannone 530.000 €
CALENZANO, IN PROSSIMITA' DEL CASELLO AUTOSTRADALE, DISPONIAMO DI UN OTTIMO CAPANNONE PRODUTTIVO DI 530 MQ COMPRENSIVI DI UFFICIO, DOPPI SERVIZI E UN PICCOLO VANO MULTIUSO. ALTEZZA MASSIMA 9 MT. ALTEZZA SOTTO TRAVE 6,50 MT. L'IMMOBILE SI PRESENTA IN OTTIME CONDIZIONI, CON PAVIMENTAZIONE DI TIPO INDUSTRIA […]
LEGGI ANCORA
- prezzo medio locale commerciale in zona OMI D2 : 1251 €/m²
- prezzo medio locale commerciale a Calenzano : 1261 €/m²
Immobile in vendita a Calenzano(FI
- prezzo medio locale commerciale in zona OMI D2 : 1251 €/m²
- prezzo medio locale commerciale a Calenzano : 1261 €/m²
locale di sgombero in vendita a Calenzano
locale di sgombero 140.000 €
Fondo magazzino c2, seminterrato totalmente finestrato su 3 lati, altezza 2.65 metri, rampa di accesso indipendente, con servizi di acqua e luce, in ottime condizioni. Con annesso scannafosso di mq 6. Libero da subito
LEGGI ANCORA
Rustico / Casale in vendita a Calenzano(FI PREMIUM
Calenzano - Secciano In zona immersa nel verde ed in posizione dominante con splendida vista, si propone la vendita di una villa libera su quattro lati con annesso terreno privato. L'immobile è facilmente raggiungibile attraverso una strad […]
LEGGI ANCORA
- prezzo medio casa indipendente in zona OMI R1 : 2872 €/m²
- prezzo medio casale in zona OMI R1 : 2413 €/m²
capannone in vendita a Calenzano
capannone 2.100.000 €
Offriamo in vendita un capannone industriale a destinazione produttiva con una superficie commerciale di 5160 mq situato in Via Dante Alighieri, nel Comune di Calenzano (FI). L'immobile è stato costruito nel 2007 ed è composto da due corpi principali: - un corpo produttivo a due piani fuori terra e uno […]
LEGGI ANCORA
Capannone industriale in vendita a Settimello, Calenzano
capannone Settimello 1.800.000 €
Calenzano, pressi Settimello, situato in zona limitrofa all'autostrada ed alle principali vie di comunicazione, proponiamo in vendita questo capannone industriale/artigianale di complessivi mq.1.900 circa oltre piazzale di carico/scarico merci di quasi mq.5.000 che lo perimetra su 4 lati. L'immobile risu […]
LEGGI ANCORA
Vendesi capannone industriale a Calenzano via Pietro Aretino, 50
locale di sgombero 600.000 €
Calenzano: un'opportunità unica per imprenditori e famiglie. Immobile terracielo composto da immobile produttivo e abitativo. Sei alla ricerca di una soluzione che unisca la tua attività e la tua vita familiare in un'unica, strategica location? Questo immobile indipendente su quattro lati a Calenzano è l […]
LEGGI ANCORA
- prezzo medio appartamento in zona OMI D2 : 3046 €/m²
- prezzo medio locale commerciale in zona OMI D2 : 1251 €/m²
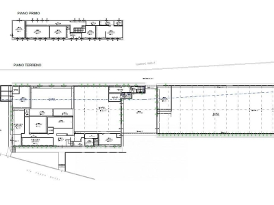
Capannone industriale in vendita a Calenzano via Dante Alighieri
locale di sgombero 1.000.000 €
CALENZANO - In zona di facile accesso, proponiamo in vendita capannone in ottime condizioni di circa 750 mq con altezze 5,5 mt. oltre appartamento di 100 mq e magazzino seminterrato di circa 290 mq. L'immobile dispone di un piazzale libero su 3 lati. Libero subito. € 1.000.000. (160 kWh/mca). La presente […]
LEGGI ANCORA
- prezzo medio locale commerciale in zona OMI D2 : 1251 €/m²
- prezzo medio locale commerciale a Calenzano : 1261 €/m²
Immobile in vendita a Calenzano(FI
- prezzo medio locale commerciale in zona OMI D2 : 1251 €/m²
- prezzo medio locale commerciale a Calenzano : 1261 €/m²
Immobile in vendita a Calenzano(FI PREMIUM
- prezzo medio locale commerciale in zona OMI D2 : 1251 €/m²
- prezzo medio locale commerciale a Calenzano : 1261 €/m²
capannone in vendita a Calenzano
Vendesi capannone industriale a Calenzano
capannone 900.000 €
Rif.805T Calenzano, vendesi capannone da ristrutturare, ottima posizione, ampio piazzale su strada. Ottimo per attività commerciale. Richiesta Euro 900.000,00 oltre Iva di legge. Rif.805T PER QUALSIASI INFORMAZIONE CONTATTARE AGENZIA IMMOBILIARE ZOPPI SAS TEL 055/8879255 - 055/8877483 info@immobiliarezop […]
LEGGI ANCORA
- prezzo medio locale commerciale in zona OMI D2 : 1251 €/m²
- prezzo medio locale commerciale a Calenzano : 1261 €/m²
Immobile in vendita a Calenzano(FI
Non perdere gli altri 6 annunci!












