N.B. Tutti le informazioni immobiliari sono fornite senza alcuna garanzia. Leggi il disclaimer.
Esavani o locali commerciali o negozi con posto auto in vendita a Borgo San Lorenzo - pg. 6 di 8
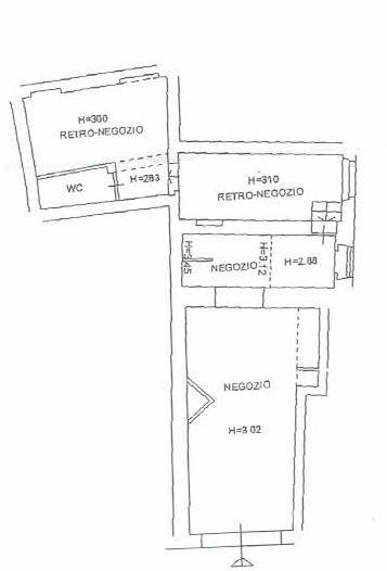
MODIFICA QUESTA RICERCALocale commerciale in vendita in PIAZZA DANTE ALIGHIERI a Borgo San Lorenzo
locale commerciale 150.000 €
IN ZONA DI PASSAGGIO E DI SICURO INTERESSE COMMERCIALE MQ 320, FONDO ADATTO A MOLTEPLICI ATTIVITA',CON CANNA FUMARIA,SERVIZI,VETRINE SU STRADA, LOCATO CON OTTIMA RENDITA DI €18.000,00 ANNUI RIF F22
LEGGI ANCORA
- prezzo medio locale commerciale in zona OMI B2 : 1277 €/m²
- prezzo medio locale commerciale a Borgo San Lorenzo : 1273 €/m²
FONDI NEGOZI UFFICI - COMMERCIALE - BORGO SAN LORENZO
negozio 380.000 €
borgo san lorenzo, fondo commerciale gia' utilizzato come ristorante e quindi pronto all'uso oppure, data la visibilita', adattoad ogni altro tipo di attivita'. l'immobile e' dotato di spogliatoi, servizi, magazzino per una superficie catastale complessiva di mq 320. ottimo stato. traattativa riserevata. […]
LEGGI ANCORA
Negozio in vendita a Borgo San Lorenzo
negozio 55.000 €
Borgo San Lorenzo, In vendita fondo negozio di circa 60 mq. con doppio accesso. L'immobile è composto da 3 vani e un bagno, per una superficie totale di 34 mq destinati all'attività commerciale. Inoltre, è presente un magazzino di 28 mq sempre al piano terra, ideale per le esigenze di stoccaggio. Ottima […]
LEGGI ANCORA
- prezzo medio trivano in zona OMI B2 : 1868 €/m²
- prezzo medio trivano a Borgo San Lorenzo : 1830 €/m²
Laboratorio in vendita a Borgo San Lorenzo
negozio 375.000 €
IN ZONA VERAMENTE DI SICURO INTERESSE COMMERCIALE CON VISIBILITA' E PASSAGGIO PEDONALE E CARRABILE FONDO MAGAZZINO LABORATORIO DISPOSTO PER MQ 350 AL PIANO TERRA E MQ 120 AL PIANO SEMINTERRATO OLTRE RESEDE ESCLUSIVO ADATTO A MOLTEPLICI ATTIVITA' CON POSSIBILITA' DI TRASFORMAZIONE A COMMERCIALE RIF CM62
LEGGI ANCORA
9 vani 210mq
negozio 185.000 €
9 vani 210mq Borgo San Lorenzo Firenze Toscana nel cuore pulsante di borgo san lorenzo situato in posizione centralissima fabbricato indipendente con progetto gi approvato e oneri di urbanizzazione completamente assolti. il progetto prevede la realizzazione di due splendidi terratetti indipendenti di qua […]
LEGGI ANCORA
Casa indipendente in VIA TRAVERSI 123, Borgo San Lorenzo di 110 m PREMIUM
Borgo San Lorenzo pressi, nella frazione di Luco M.llo, in antico e pregevole edificio vendesi porzione, 6 vani mq 110, così composta: al PIANO TERRA troviamo ampio soggiorno doppio con caminetto, tetto a capanna con travi e travicelli facc […]
LEGGI ANCORA
- prezzo medio casa indipendente in zona OMI E4 : 1980 €/m²
- prezzo medio casa semindipendente in zona OMI E4 : 1945 €/m²
COMMERCIALE BORGO SAN LORENZO trilocale 140mq
negozio 250.000 €
COMMERCIALE BORGO SAN LORENZO trilocale 140mq Borgo San Lorenzo Firenze Toscana borgo san lorenzo in prossimita del centro ed in zona di passaggio veicolare ottimo fondo commerciale mq. 140. ottimo stato. - classe energetica in elaborazione rif. 40056 - agg. 11102025
LEGGI ANCORA
- prezzo medio appartamento a Borgo San Lorenzo : 1880 €/m²
- prezzo medio trivano a Borgo San Lorenzo : 1830 €/m²
esavano in vendita a Borgo San Lorenzo
esavano 395.000 €
Luminoso di recente ristrutturazione immerso in un parco privato e affacci nel verde, a pochi chilometri dal centro di Firenze e comodamente vicino a tutti i servizi, caratteristico fienile mq 150 circa composto da ingresso, ampio e accogliente soggiorno con camino, cucina abitabile, due camere da letto […]
LEGGI ANCORA
- prezzo medio appartamento in zona OMI B2 : 1964 €/m²
- prezzo medio casale in zona OMI B2 : 1594 €/m²
Magazzino in vendita a Borgo San Lorenzo
negozio 300.000 €
nel cuore del paese proponiamo in vendita fondo ad uso commerciale/magazzino mq 300 circa oltre a resede pertinenziale, ampie vetrine su strada principale con ottima visibilit� commerciale, zona di facile parcheggio, no condominio, locato con ottimo e sicurissimo reddito classe energetica in elaborazio […]
LEGGI ANCORA
Attività artigianale in vendita in PIAZZA DANTE ALIGHIERI a Borgo San Lorenzo
- prezzo medio locale commerciale in zona OMI B2 : 1277 €/m²
- prezzo medio locale commerciale a Borgo San Lorenzo : 1273 €/m²
Locale commerciale in vendita a Borgo San Lorenzo
locale commerciale
descrizione paese, ottima p0sizione commerciale, massima visibilita' con passaggio sia pedonale che veicolare, caratteristico fondo commerciale mq 100 con canna fumaria vetrina su strada oltre bagno in fase di restauro ideale per qualsiasi attivita' no spese condominiali zona facile parcheggio vicino ad […]
LEGGI ANCORA
VILLETTA SCHIERA BORGO SAN LORENZO 6 vani 145mq
esavano 255.000 €
VILLETTA SCHIERA BORGO SAN LORENZO 6 vani 145mq Borgo San Lorenzo Firenze Toscana borgo san lorenzo 3 km. immersa nel verde villetta a schiera composta da ingresso soggiorno cucina 2 camere mansarda grande taverna doppi servizi due logge terrazzo mq. 20 due posti auto coperti e giardino. - classe energet […]
LEGGI ANCORA
- prezzo medio casa indipendente a Borgo San Lorenzo : 1979 €/m²
- prezzo medio villa a Borgo San Lorenzo : 2030 €/m²
Locale commerciale in vendita a Borgo San Lorenzo
locale commerciale 58.000 €
Eccezionale fondo commerciale con superficie utile di circa mq 60 servizio e piccolo soppalco oltre vetrina su di una via con altissima visibilità rif F69
LEGGI ANCORA
- prezzo medio locale commerciale in zona OMI B2 : 1277 €/m²
- prezzo medio locale commerciale a Borgo San Lorenzo : 1273 €/m²
Negozio in vendita a Borgo San Lorenzo
negozio 229.000 €
borgo san lorenzo, in posizione di sicuro interesse commerciale visto l'alto passaggio sia veicolare che pendonale, proponiamo fondo ad uso comemrciale di ca. 120 mq. catastali oltre servizo, cantina, magazzino e piccolo resede retrostante. ottimo stato. - classe energetica in elaborazione rif.4/0239 - ( […]
LEGGI ANCORA
Industriale monolocale 200mq
negozio Casaglia 200.000 €
Industriale monolocale 200mq Borgo San Lorenzo Firenze Toscana borgo san lorenzo zona artigianale locato ad uso artigianale di mq. 200 con altezza di metri 6 servizio resede con accesso carrabile. borgo san lorenzo un comune con oltre 18.000 abitanti con unaltimetria che varia dai 177 s.l.m. ai 1144 metr […]
LEGGI ANCORA
- prezzo medio appartamento in zona OMI B2 : 1964 €/m²
- prezzo medio appartamento a Borgo San Lorenzo : 1880 €/m²
Negozio in vendita a Borgo San Lorenzo
negozio
Borgo San Lorenzo vendita in Mugello. FONDO COMMERCIALE. Ideale ottimo per investimento, zona centrale (NO ZTL) in strada di intenso passaggio sia automobilistico che pedonale, vicino a servizi e parcheggi pubblici, Vendesi fondo ad uso commerciale di circa 65 mq, oltre ad annessi di pertinenza , la prop […]
LEGGI ANCORA
COMMERCIALE BORGO SAN LORENZO bilocale 41mq
negozio 80.000 €
COMMERCIALE BORGO SAN LORENZO bilocale 41mq Borgo San Lorenzo Firenze Toscana borgo san lorenzo in zona interessante e vicino al centro immobile completamente e finemente ristrutturato con ingresso indipendente costituito di ue vani oltre servizio e ripostiglio. perfetto come ufficio. ottimo investimento […]
LEGGI ANCORA
- prezzo medio appartamento a Borgo San Lorenzo : 1880 €/m²
- prezzo medio bivano a Borgo San Lorenzo : 1846 €/m²
CIVILE ABITAZIONE BORGO SAN LORENZO 6 vani 142mq
esavano 199.000 €
CIVILE ABITAZIONE BORGO SAN LORENZO 6 vani 142mq Borgo San Lorenzo Firenze Toscana borgo san lorenzo in zona interessante ed in prossimita di tutti i servizi interessante e silenzioso appartamento su due livelli distribuito in ingresso soggiorno doppio cucina tre camere oltre doppi servizi cantina e rese […]
LEGGI ANCORA
- prezzo medio appartamento a Borgo San Lorenzo : 1880 €/m²
- prezzo medio esavano a Borgo San Lorenzo : 1708 €/m²
Borgo San Lorenzo - Posti auto
negozio
Borgo San Lorenzo - In zona residenziale, vendesi posti auto con dissuasori di sosta a partire da Euro 3000,00. Per motivi di privacy gli indirizzi degli immobili sono approssimativi. Maggiori informazioni e foto sul nostro sito internet Agenzia Immobiliare Dallai Franco di Scarperia (FI). Valutiamo i vo […]
LEGGI ANCORA
Non perdere gli altri 119 annunci!














