Valutazione immobiliare indipendente, accurata e gratuita
L'Opinione di Caasa® per l'appartamento a Santarcangelo di Romagna San Martino dei Mulini a 350.000 € (cod.6550a7f3)
Secondo Caasa, per l'appartamento in zona San Martino dei Mulini, la richiesta di 350.000 € è leggermente vantaggiosa rispetto agli annunci simili.
Analisi immobiliare
L'appartamento, situato nella zona OMI E6, è proposto in vendita a
350.000 € per una
superficie commerciale di
131 m² e quindi ad un prezzo per metro quadrato pari a
2671 €/m²
.
Tale valore
è un po' più basso di quello stimato da Caasa per immobili in vendita simili per tipologia, caratteristiche, classe energetica e localizzati nella stessa zona OMI, che è compreso tra
2.814 €/m² e
2.972 €/m².
La conoscenza con buona approssimazione della localizzazione dell'immobile ha consentito di utilizzare come raffronto i dati medi elaborati esattamente nella zona OMI di appertenenza (S.MARTINO S.ERMETE) per appartamenti (da 1.605 €/m² a 2.630 €/m²). Inoltre, Caasa ha potuto affinare la stima anche con la conoscenza della classe energetica (A+) oltre che dello stato dell'immobile (di nuova costruzione) e di alcune caratteristiche significative come il posto auto. Per questi motivi i valori accettabili per l'offerta costituiscono un intervallo abbastanza limitato.
Mercato immobiliare a Santarcangelo di Romagna
Per quanto riguarda più in generale la città di Santarcangelo di Romagna, sono presenti al momento più di 300 annunci per
appartamenti in vendita (meno del 10% dell'intera provincia)
e il maggior numero di annunci per questa tipologia sono relativi proprio alla zona di San Martino dei Mulini.
La richiesta media nella zona dove sorge l'appartamento (San Martino dei Mulini) è pari a
2.085 €/m², molto vicina ai valori della zona San Vito che sono i più alti della città .
La dinamica dei prezzi in tutta la città mostra che negli ultimi 6 mesi, i prezzi per appartamenti in vendita sono
in aumento (+4,89%).
NOVITÀ Il risultato che vedi dipende dai dati che siamo riusciti ad estrarre dall'annuncio: ottieni una stima più accuranta di questo immobile, inserendo dati più precisi.
N.B. L'Opinione di Caasa® è un servizio sperimentale realizzato tramite tecniche di Intelligenza Artificiale, fornito senza alcuna garanzia di correttezza e completezza. Leggi il disclaimer o segnalaci un problema.
IMMAGINI
IN SINTESI
DESCRIZIONE
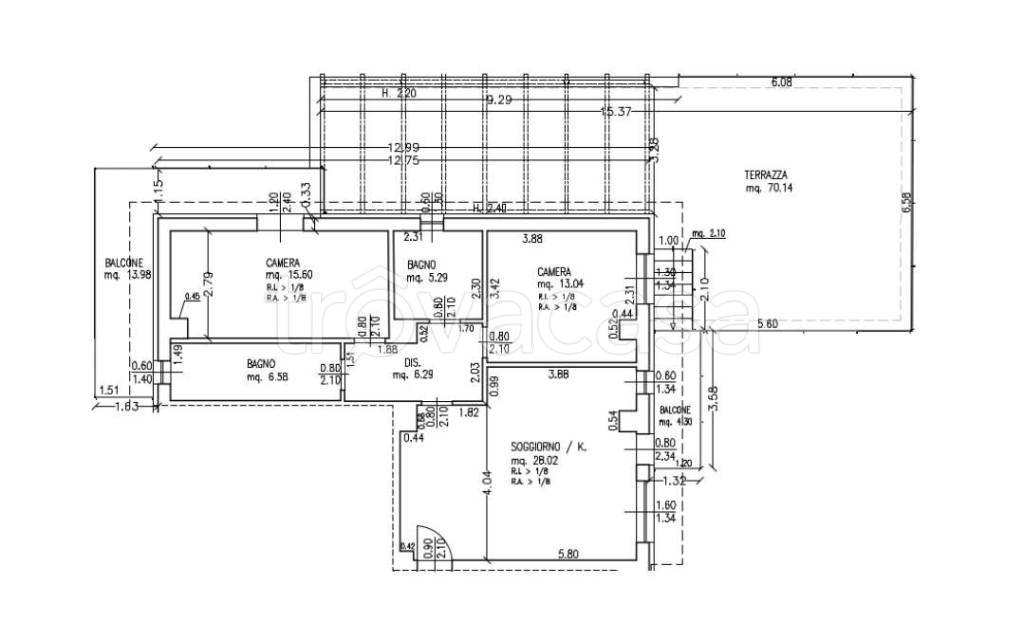
di nuova costruzione con posto auto con terrazza con balcone di nuova costruzione di recente ristrutturazione con termocondizionamento con angolo cottura
San Martino dei Mulini (Frazione di Santarcangelo di Romagna) in fase di realizzazione con consegna prevista in primavera 2026, appartamenti di varie metrature e tipologie. L'edificio composto da 7 unità abitative verrà ristrutturato volgendo particolare attenzione al risparmio energetico e comfort abitativo. Le caratteristiche costruttive sono di ultima generazione e consentono ai futuri acquirenti di poter personalizzare le varie unità immobiliari nelle finiture interne rispondendo così ad ogni esigenza di gusto personale. Tipologia 02-06: Appartamento posto al primo piano, composto da soggiorno angolo cottura con balcone e ampio terrazzo, due camere di cui una con balcone, due bagni e posto auto riservato. Specifiche metrature: # Appartamento mq 131,58 # Balcone mq 88,42 # Posto auto mq 12,00 Specifiche tecniche: # Edificio “NO GAS” # Riscaldamento a pavimento # Pompa di calore # Infissi in PVC # Impianto fotovoltaico # Cappotto termico di cm 14 # Predisposizione aria condizionata # Punti di forza: # Distanza da Santarcangelo di R. 4,5 km # Distanza da Rimini centro 7,5 Km # Distanza da supermercati 100 metri # Distanza da scuole primarie 500 metri # Distanza da farmacia 150 metri Riferimento CTD 02-06 € 350.000 La sua richiesta sarà gestita da Antonello. Importante: le caratteristiche tecniche, disposizione interna e gli accessori indicati potrebbero in alcuni casi essere diverse dall'effettivo stato di fatto dell'immobile. A causa delle difformità dei dati pubblicati dai vari portali, ImmobiliSicuri, declina ogni responsabilità per eventuali involontarie incoerenze. Si precisa che le descrizioni sopra riportate non rappresentano alcun impegno contrattuale


