Valutazione immobiliare indipendente, accurata e gratuita
L'Opinione di Caasa® per l'appartamento a Santarcangelo di Romagna San Martino dei Mulini a 369.000 € (cod.652b8d5a)
Secondo Caasa, per l'appartamento in zona San Martino dei Mulini, la richiesta di 369.000 € è leggermente svantaggiosa rispetto agli annunci simili.
Analisi immobiliare
L'appartamento, situato nella zona OMI E6, è proposto in vendita a
369.000 € per una
superficie commerciale di
122 m² e quindi ad un prezzo per metro quadrato pari a
3024 €/m²
.
Questo prezzo
è un po' più alto di quello stimato da Caasa per immobili in vendita simili per tipologia, caratteristiche, classe energetica e localizzati nella stessa zona OMI, che è compreso tra
2.749 €/m² e
2.907 €/m².
La conoscenza con buona approssimazione della localizzazione dell'immobile ha consentito di utilizzare come raffronto i dati medi elaborati esattamente nella zona OMI di appertenenza (S.MARTINO S.ERMETE) per appartamenti (da 1.530 €/m² a 2.915 €/m²) e per quadrivani (da 1.630 €/m² a 2.445 €/m²). Inoltre, Caasa ha potuto affinare la stima anche con la conoscenza della classe energetica (A+) oltre che dello stato dell'immobile (di nuova costruzione) e di alcune caratteristiche significative come il posto auto. In virtù di queste considerazioni è possibile considerare un intervallo di valori accettabili per l'offerta abbastanza limitato.
Mercato immobiliare a Santarcangelo di Romagna
Per quanto riguarda più in generale la città di Santarcangelo di Romagna, sono presenti al momento più di 300 annunci per
appartamenti in vendita (meno del 10% dell'intera provincia)
e il maggior numero di annunci per questa tipologia sono relativi proprio alla zona di San Martino dei Mulini.
La richiesta media nella zona dove sorge l'appartamento (San Martino dei Mulini) è pari a
2.175 €/m², molto vicina ai valori della zona San Vito che sono i più alti della città .
Possiamo inoltre considerare che in tutta la città negli ultimi 6 mesi, i prezzi per appartamenti in vendita sono
in sostanziale calo (-6,14%).
NOVITÀ Il risultato che vedi dipende dai dati che siamo riusciti ad estrarre dall'annuncio: ottieni una stima più accuranta di questo immobile, inserendo dati più precisi.
N.B. L'Opinione di Caasa® è un servizio sperimentale realizzato tramite tecniche di Intelligenza Artificiale, fornito senza alcuna garanzia di correttezza e completezza. Leggi il disclaimer o segnalaci un problema.
IMMAGINI
IN SINTESI
DESCRIZIONE
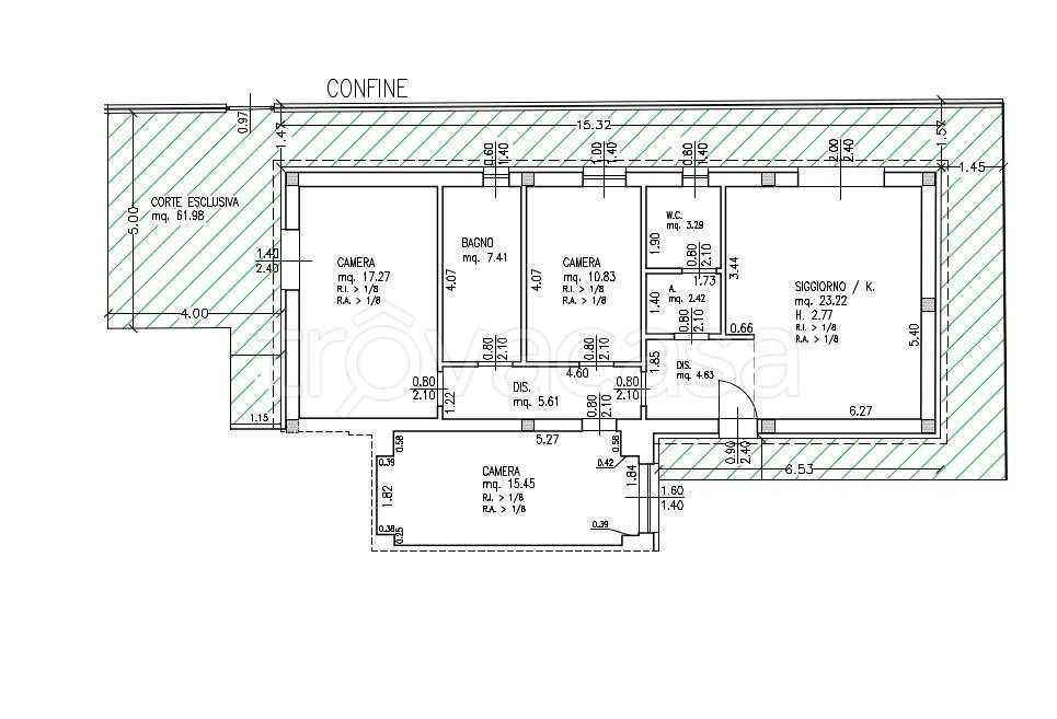
di nuova costruzione con posto auto con giardino di recente ristrutturazione di nuova costruzione con termocondizionamento con angolo cottura
San Martino dei Mulini (Frazione di Santarcangelo di Romagna) in fase di realizzazione con consegna prevista in primavera 2026, appartamenti di varie metrature e tipologie. L'edificio composto da 7 unità abitative verrà ristrutturato volgendo particolare attenzione al risparmio energetico e comfort abitativo. Le caratteristiche costruttive sono di ultima generazione e consentono ai futuri acquirenti di poter personalizzare le varie unità immobiliari nelle finiture interne rispondendo così ad ogni esigenza di gusto personale. Tipologia 02-03: Appartamento con Ingresso indipendente composto da soggiorno angolo cottura, tre camere, due bagni, giardino di proprietà e posto auto riservato in corte recintata. Specifiche metrature: # Appartamento mq 122,88 # Corte esclusiva mq 61,98 # Posto auto Specifiche tecniche: # Edificio “NO GAS” # Riscaldamento a pavimento # Pompa di calore # Infissi in PVC # Impianto fotovoltaico # Cappotto termico di cm 14 # Predisposizione aria condizionata # Punti di forza: # Distanza da Santarcangelo di R. 4,5 km # Distanza da Rimini centro 7,5 Km # Distanza da supermercati 100 metri # Distanza da scuole primarie 500 metri # Distanza da farmacia 150 metri Riferimento CTD 02-03 La sua richiesta sarà gestita da Antonello. Importante: le caratteristiche tecniche, disposizione interna e gli accessori indicati potrebbero in alcuni casi essere diverse dall'effettivo stato di fatto dell'immobile. A causa delle difformità dei dati pubblicati dai vari portali, ImmobiliSicuri, declina ogni responsabilità per eventuali involontarie incoerenze. Si precisa che le descrizioni sopra riportate non rappresentano alcun impegno contrattuale


