Valutazione immobiliare indipendente, accurata e gratuita
Appartamento in vendita a Rimini in zona Marecchiese a 346.000 € (cod.658ab1cf)
Caasa non ha sufficienti informazioni per commentare l'appartamento a Rimini in zona Marecchiese - 658ab1cf.
Analisi immobiliare
I dati in posseso di Caasa per quest'immobile sono insufficienti, inaffidabili o contraddittori per proporre un'analisi attendibile.
Mercato immobiliare a Rimini
Per quanto riguarda più in generale la città di Rimini, sono presenti al momento ben oltre 2.000 annunci per
appartamenti in vendita (meno di un terzo dell'intera provincia)
e il maggior numero di annunci per questa tipologia sono relativi alla zona di Viserba, mentre la zona di Marecchiese risulta molto meno attiva considerando il numero di annunci presenti.
La richiesta media nella zona dove sorge l'appartamento (Marecchiese pressi Via Marecchiese) è pari a
3.230 €/m², molto vicina ai valori della zona Marina Centro che sono i più alti della città .
La dinamica dei prezzi in tutta la città mostra che negli ultimi 6 mesi, i prezzi per appartamenti in vendita sono
sostanzialmente stabili (+1,00%).
NOVITÀ Il risultato che vedi dipende dai dati che siamo riusciti ad estrarre dall'annuncio: ottieni una stima più accuranta di questo immobile, inserendo dati più precisi.
N.B. L'Opinione di Caasa® è un servizio sperimentale realizzato tramite tecniche di Intelligenza Artificiale, fornito senza alcuna garanzia di correttezza e completezza. Leggi il disclaimer o segnalaci un problema.
IMMAGINI
IN SINTESI
PROPOSTO DA:
PRONTO CASA SERVIZI IMMOBILIARI
DESCRIZIONE
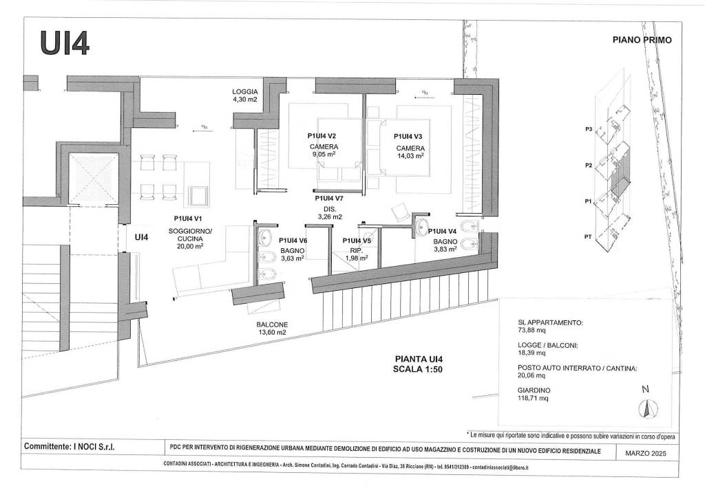
di nuova costruzione con posto auto con garage con cantina con giardino di nuova costruzione
RIMINI - Via Marecchiese , In zona residenziale appartamenti in costruzione per la realizzazione del "CONDOMINIO MARECCHIA". Si tratta di un'elegante palazzina di quattro piani fuori terra composto da otto appartamenti. Al piano primo proponiamo un ampio e luminoso trilocale con giardino di proprietà di circa 118 mq, perfetto per cene all'aperto, il relax quotidiano o per i vostri animali domestici. L'unità immobiliare è composta da : ingresso su un ampio soggiorno con angolo di cottura un ambiente moderno, caratterizzato da grandi vetrate che inondano la casa di luce naturale e offrono l'accesso diretto all'area esterna. Un disimpegno conduce alla zona notte dove troviamo due camere da letto , di cui una matrimoniale dotata di bagno privato ed una singola , un secondo bagno serve il resto dell'abitazione e ripostiglio uso lavanderia . Al piano interrato completa la proprietà un Garage spazioso


