Valutazione immobiliare indipendente, accurata e gratuita
Casa indipendente in vendita a Rimini in zona Centro Storico a 500.000 € (cod.656bd2bf)
Caasa non ha sufficienti informazioni per commentare la casa indipendente a Rimini in zona Centro Storico - 656bd2bf.
Analisi immobiliare
I dati in posseso di Caasa per quest'immobile sono insufficienti, inaffidabili o contraddittori per proporre un'analisi attendibile.
Mercato immobiliare a Rimini
Per quanto riguarda più in generale la città di Rimini, sono presenti al momento ben oltre mille annunci per
case indipendenti in vendita (meno di un terzo dell'intera provincia)
e il maggior numero di annunci per questa tipologia sono relativi alla zona di Viserba, mentre nella zona di Centro Storico è presente un numero significativamente inferiore di annunci.
La richiesta media nella zona dove sorge la casa indipendente (Centro Storico pressi Via Soardi) è pari a
3.015 €/m², molto vicina ai valori della zona Marina Centro che sono i più alti della città .
La dinamica dei prezzi in tutta la città mostra che negli ultimi 6 mesi, i prezzi per case indipendenti in vendita sono
sostanzialmente stabili (+0,77%).
NOVITÀ Il risultato che vedi dipende dai dati che siamo riusciti ad estrarre dall'annuncio: ottieni una stima più accuranta di questo immobile, inserendo dati più precisi.
N.B. L'Opinione di Caasa® è un servizio sperimentale realizzato tramite tecniche di Intelligenza Artificiale, fornito senza alcuna garanzia di correttezza e completezza. Leggi il disclaimer o segnalaci un problema.
IMMAGINI
IN SINTESI
PROPOSTO DA:
MONDO AFFITTI LE CASE BELLE DI IDI ANNA
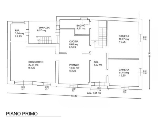
DESCRIZIONE
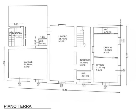
di recente ristrutturazione con posto auto con garage con terrazza con cantina di recente ristrutturazione con giardino con cucina abitabile
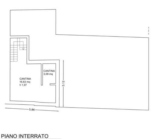
Mondocasa propone in vendita nel cuore del Centro Storico di Rimini un'abitazione abbinata di ampia metratura, distribuita su due livelli e con ingresso indipendente. Al piano terra troviamo un ampio disimpegno/vano scala, una stanza multiuso di circa 40 mq, potenzialmente utilizzabile come ampliamento della zona giorno o della zona notte, dalla quale si accede ad una graziosa corte interna parzialmente adibita a giardino. Al piano primo ci accoglie un luminoso disimpegno sul quale si affacciano una cucina abitabile, una sala pranzo ed un soggiorno molto ampio, due grandi camere da letto e un bagno. La cucina dà accesso ad un caratteristico terrazzo articolato su due livelli, uno spazio ideale per vivere le serate estive, tra cene all'aperto e momenti di relax in totale tranquillità. Dalla corte al piano terra si accede tramite una scala ad una cantina di circa 30 mq al piano interrato. A completare lo spazio abitativo del piano terra è un bilocale con ingresso indipendente, ideale per mettere a reddito ma anche da annettere all'abitazione principale a fronte di una rivisitazione degli spazi. Completa la proprietà un garage di 24 mq, un vero punto di forza per un'abitazione in pieno centro città. L'immobile si presenta in discreto stato ma necessita di una ristrutturazione per renderlo pienamente funzionale. Soluzione ideale per chi ama la vita del centro storico e la comodità di tutti i servizi. Eu. 500.000 Classe Energetica: G




