Valutazione immobiliare indipendente, accurata e gratuita
Appartamento in vendita a Rimini in zona Rivazzurra a 320.000 € (cod.6533c41e)
Caasa non ha sufficienti informazioni per commentare l'appartamento a Rimini in zona Rivazzurra - 6533c41e.
Analisi immobiliare
I dati in posseso di Caasa per quest'immobile sono insufficienti, inaffidabili o contraddittori per proporre un'analisi attendibile.
Mercato immobiliare a Rimini
Per quanto riguarda più in generale la città di Rimini, sono presenti al momento ben oltre 2.000 annunci per
appartamenti in vendita (meno di un terzo dell'intera provincia)
e il maggior numero di annunci per questa tipologia sono relativi alla zona di Centro Storico, mentre la zona di Rivazzurra risulta molto meno attiva considerando il numero di annunci presenti.
La richiesta media nella zona dove sorge l'appartamento (Rivazzurra) è pari a
3.180 €/m², molto vicina ai valori della zona Marina Centro che sono i più alti della città .
Possiamo inoltre considerare che in tutta la città negli ultimi 6 mesi, i prezzi per appartamenti in vendita sono
in aumento (+4,95%).
NOVITÀ Il risultato che vedi dipende dai dati che siamo riusciti ad estrarre dall'annuncio: ottieni una stima più accuranta di questo immobile, inserendo dati più precisi.
N.B. L'Opinione di Caasa® è un servizio sperimentale realizzato tramite tecniche di Intelligenza Artificiale, fornito senza alcuna garanzia di correttezza e completezza. Leggi il disclaimer o segnalaci un problema.
IMMAGINI
IN SINTESI
PROPOSTO DA:
MONDO AFFITTI LE CASE BELLE DI IDI ANNA
DESCRIZIONE
di recente ristrutturazione con terrazza con balcone di recente ristrutturazione con termocondizionamento di recente costruzione con riscaldamento autonomo
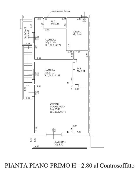
Mondocasa propone in vendita a Rivazzurra, in zona residenziale ben servita, un appartamento trilocale di 90 mq al primo piano di un'abitazione bifamiliare. L'appartamento, con accesso da scala privata, è costituito da un'ampia zona giorno open space di 35 mq con balcone, una comoda camera matrimoniale con bagno e balcone, una camera doppia e un ampio bagno finestrato.. L'immobile è stato oggetto di una completa ristrutturazione nel 2023 con la rimessa a nuovo degli impianti elettrico e idraulico, sostituzione dei radiatori, rifacimento del bagno principale e l'aggiunta del secondo bagno. E' fornito di infissi in PVC di ultima generazione , riscaldamento autonomo con caldaia a condensazione nuova, aria condizionata. L'immobile è stato interamente ristrutturato anche all'esterno con il rifacimento degli intonaci, della tinteggiatura, della scala e del tetto. La proprietà include una corte privata di circa 80 mq perfetta per parcheggiare fino a due auto e dotata di uno spazio esterno appartato, ideale per essere attrezzato con un'area relax o per organizzare cene all'aperto. Subito disponibile Eu. 320.000 Classe Energetica: D




