Valutazione immobiliare indipendente, accurata e gratuita
L'Opinione di Caasa® per l'appartamento in vendita a Rimini in zona Borgo San Giuliano a 385.000 € (cod.6502b14a)
Secondo Caasa, per l'appartamento a Rimini in zona Borgo San Giuliano, la richiesta di 385.000 € è significativamente vantaggiosa rispetto agli annunci simili.
Analisi immobiliare
L'appartamento, situato nella zona OMI B1, è proposto in vendita a
385.000 € per una
superficie commerciale di
114 m² e quindi ad un prezzo per metro quadrato pari a
3377 €/m²
.
Questo prezzo
è più vantaggioso di quello stimato da Caasa per immobili in vendita simili per tipologia, caratteristiche, classe energetica e localizzati nella stessa zona OMI, che è compreso tra
4.306 €/m² e
4.537 €/m².
La conoscenza con buona approssimazione della localizzazione dell'immobile ha consentito di utilizzare come raffronto i dati medi elaborati esattamente nella zona OMI di appertenenza (CENTRO STORICO E BORGO SAN GIULIANO) per appartamenti (da 2.430 €/m² a 4.175 €/m²) e per trivani (da 2.620 €/m² a 4.120 €/m²). Inoltre, Caasa ha potuto affinare la stima anche con la conoscenza della classe energetica (A+) oltre che di alcune caratteristiche significative come il garage, la disponibilità di una cantina o la climatizzazione. Per queste considerazioni è possibile considerare un intervallo di valori accettabili per l'offerta abbastanza limitato.
Mercato immobiliare a Rimini
Per quanto riguarda più in generale la città di Rimini, sono presenti al momento ben oltre 2.000 annunci per
appartamenti in vendita (meno di un terzo dell'intera provincia)
e il maggior numero di annunci per questa tipologia sono relativi alla zona di Viserba, mentre la zona di Borgo San Giuliano risulta molto meno attiva considerando il numero di annunci presenti.
La richiesta media nella zona dove sorge l'appartamento (Borgo San Giuliano) è pari a
3.430 €/m², molto vicina ai valori della zona Marina Centro che sono i più alti della città .
Possiamo inoltre considerare che in tutta la città negli ultimi 6 mesi, i prezzi per appartamenti in vendita sono
sostanzialmente stabili (+1,00%).
NOVITÀ Il risultato che vedi dipende dai dati che siamo riusciti ad estrarre dall'annuncio: ottieni una stima più accuranta di questo immobile, inserendo dati più precisi.
N.B. L'Opinione di Caasa® è un servizio sperimentale realizzato tramite tecniche di Intelligenza Artificiale, fornito senza alcuna garanzia di correttezza e completezza. Leggi il disclaimer o segnalaci un problema.
IMMAGINI
IN SINTESI
PROPOSTO DA:
Noi Immobiliare
DESCRIZIONE
con posto auto con garage con terrazza con balcone con cantina con termocondizionamento con climatizzazione
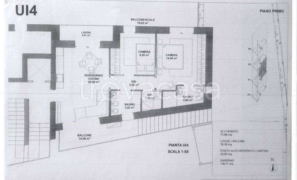
Rif.A2-317RS1 NUOVO TRILOCALE DI FASE DI COSTRUZIONE IN ZONA PRESTIGIOSA A DUE PASSI DAL CENTRO DI RIMINI. La Noi Immobiliare propone in vendita un elegante trilocale sito al primo piano di una palazzina moderna, in una zona residenziale esclusiva a pochi passi dal centro di Rimini. L’appartamento, si compone di un ampio soggiorno con cucina a vista di circa 20 m², affacciato su una loggia vivibile; due camere da letto, una matrimoniale con bagno en suite e una singola, un secondo bagno di servizio e un comodo ripostiglio. Completano la proprietà due ampi balconi di 14 m² e 19 m², ideali per momenti di relax all’aperto. La posizione tranquilla ma strategica rende l’immobile perfetto per chi desidera unire comfort, eleganza e vicinanza ai principali servizi della città. A completare la proprietà troviamo un garage di 21 m². Caratteristiche e dotazioni: infissi triplo vetro PVC, N ZEB (la piu’ alta classe delle normative vigenti), riscaldamento tipo radianti a pavimento, pannelli fotovoltaici 4kw, Pompa di calore elettrica aria, termoarredo, split raffreddamento camere e living, cappotto termico ad alte prestazioni Soluzione ideale per chi desidera vivere in un contesto tranquillo e signorile, con il comfort di spazi moderni e tecnologie di ultima generazione. Prezzo 385 mila euro*Recupero bonus fiscali di 50 mila euro. Per informazioni e visite contattare 335 6299011 - Roberto S

