Valutazione immobiliare indipendente, accurata e gratuita
Ufficio in vendita a Rimini in zona Celle a 250.000 € (cod.63e4834b)
Caasa non ha sufficienti informazioni per commentare l'ufficio in vendita a Rimini in zona Celle - 63e4834b.
Analisi immobiliare
I dati in posseso di Caasa per quest'immobile sono insufficienti, inaffidabili o contraddittori per proporre un'analisi attendibile.
Mercato immobiliare a Rimini
Per quanto riguarda più in generale la città di Rimini, sono presenti al momento più di 200 annunci per
uffici in vendita (meno di un terzo dell'intera provincia)
e il maggior numero di annunci per questa tipologia sono relativi alla zona di Centro Storico, mentre nella zona di Celle è presente un numero significativamente inferiore di annunci.
La richiesta media nella zona dove sorge l'ufficio (Celle) è pari a
2.115 €/m² che la rende la più economica della città .
La dinamica dei prezzi in tutta la città mostra che negli ultimi 6 mesi, i prezzi per uffici in vendita sono
in debole aumento (+1,42%).
NOVITÀ Il risultato che vedi dipende dai dati che siamo riusciti ad estrarre dall'annuncio: ottieni una stima più accuranta di questo immobile, inserendo dati più precisi.
N.B. L'Opinione di Caasa® è un servizio sperimentale realizzato tramite tecniche di Intelligenza Artificiale, fornito senza alcuna garanzia di correttezza e completezza. Leggi il disclaimer o segnalaci un problema.
IMMAGINI
IN SINTESI
DESCRIZIONE
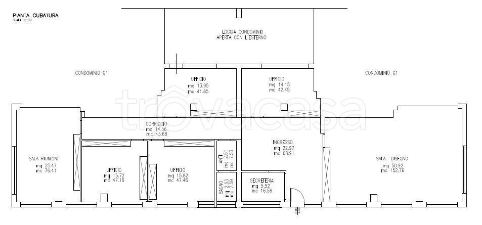
UFFICIO 230 MQ - RIMINI CELLE - PIANO TERRA In vendita ufficio di 230 mq al piano terra, situato in zona Rimini Celle, in posizione strategica e ben servita. Attualmente suddiviso in più ambienti di lavoro con pareti d’arredo attrezzate, facilmente rimovibili per consentire una completa personalizzazione degli spazi interni. Adatto per studi professionali, coworking, sedi aziendali o attività che necessitano di ampie metrature. Prezzo richiesto: 250.000€. Per maggiori informazioni o per fissare una visita: Riccardo 3937583257

