Valutazione immobiliare indipendente, accurata e gratuita
Appartamento in vendita a Riccione in zona Alba a 155.000 € (cod.64fd88f6)
Caasa non ha sufficienti informazioni per commentare l'appartamento in vendita a Riccione in zona Alba - 64fd88f6.
Analisi immobiliare
I dati in posseso di Caasa per quest'immobile sono insufficienti, inaffidabili o contraddittori per proporre un'analisi attendibile.
Mercato immobiliare a Riccione
Per quanto riguarda più in generale la città di Riccione, sono presenti al momento ben oltre mille annunci per
appartamenti in vendita (meno di un terzo dell'intera provincia)
e il maggior numero di annunci per questa tipologia sono relativi proprio alla zona di Alba.
La richiesta media nella zona dove sorge l'appartamento (Alba pressi Viale Giovanni Boccaccio) è pari a
4.810 €/m², molto vicina ai valori della zona Centro Storico che sono i più alti della città .
Possiamo inoltre considerare che in tutta la città negli ultimi 6 mesi, i prezzi per appartamenti in vendita sono
sostanzialmente stabili (+0,67%).
NOVITÀ Il risultato che vedi dipende dai dati che siamo riusciti ad estrarre dall'annuncio: ottieni una stima più accuranta di questo immobile, inserendo dati più precisi.
N.B. L'Opinione di Caasa® è un servizio sperimentale realizzato tramite tecniche di Intelligenza Artificiale, fornito senza alcuna garanzia di correttezza e completezza. Leggi il disclaimer o segnalaci un problema.
IMMAGINI
IN SINTESI
PROPOSTO DA:
Restage - House Flipping Immobiliare
Via Gioacchino Rossini 2/2, Pianoro (BO)
DESCRIZIONE
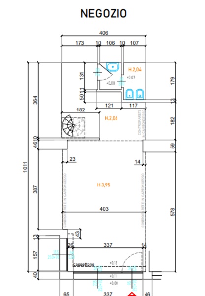
Loft a pochi passi dal mare – Viale Boccaccio, Riccione in una zona tranquilla, a due passi dalla spiaggia, comoda ai servizi, proponiamo in vendita un loft open space di 56 mq al piano terra con ingresso indipendente, attualmente accatastato C1 L’immobile si distingue per il suo ambiente versatile, con soffitti molto alti e un soppalco di ben 15 mq collegato da scala a chiocciola, ideale come zona notte, studio o area relax. Completa la proprietà un comodo bagno. Grazie alla disposizione interna e alla posizione strategica, l’immobile si presta perfettamente come studio professionale, sia come accogliente loft a due livelli per vivere il mare di Riccione tutto l’anno



