Valutazione immobiliare indipendente, accurata e gratuita
L'Opinione di Caasa® per l'appartamento in vendita a Riccione a 450.000 € (cod.64f793fe)
Secondo Caasa, per l'appartamento in vendita a Riccione, la richiesta di 450.000 € è leggermente vantaggiosa rispetto agli annunci simili.
Analisi immobiliare
L'appartamento, situato nella zona OMI B1, è proposto in vendita a
450.000 € per una
superficie commerciale di
91 m² e quindi ad un prezzo per metro quadrato pari a
4945 €/m²
.
Questo prezzo
è leggeremente più conveniente di quello stimato da Caasa per immobili in vendita simili per tipologia e caratteristiche e localizzati nella stessa zona OMI, che è compreso tra
5.524 €/m² e
6.038 €/m².
Grazie alla conoscenza con buona approssimazione della localizzazione dell'immobile, è stato possibile utilizzare come raffronto i dati medi elaborati esattamente nella zona OMI di appertenenza (MARINA CENTRO E PAESE). Anche se Caasa non è riuscita a determinare la classe energetica, ad affinare la stima hanno contribuito anche lo stato dell'immobile (di nuova costruzione) e la presenza di alcune caratteristiche significative come il posto auto. Per i motivi esposti l'intervallo dei valori accettabili per l'offerta è relativamente limitato.
Mercato immobiliare a Riccione
Per quanto riguarda più in generale la città di Riccione, sono presenti al momento ben oltre mille annunci per
appartamenti in vendita (meno di un terzo dell'intera provincia)
e il maggior numero di annunci per questa tipologia sono relativi alla zona di Alba.
Possiamo inoltre considerare che in tutta la città negli ultimi 6 mesi, i prezzi per appartamenti in vendita sono
sostanzialmente stabili (+0,67%).
NOVITÀ Il risultato che vedi dipende dai dati che siamo riusciti ad estrarre dall'annuncio: ottieni una stima più accuranta di questo immobile, inserendo dati più precisi.
N.B. L'Opinione di Caasa® è un servizio sperimentale realizzato tramite tecniche di Intelligenza Artificiale, fornito senza alcuna garanzia di correttezza e completezza. Leggi il disclaimer o segnalaci un problema.
IMMAGINI
IN SINTESI
PROPOSTO DA:
RICCIONE IMMOBILIARE - TOMA IMMOBILIARE SRL
DESCRIZIONE
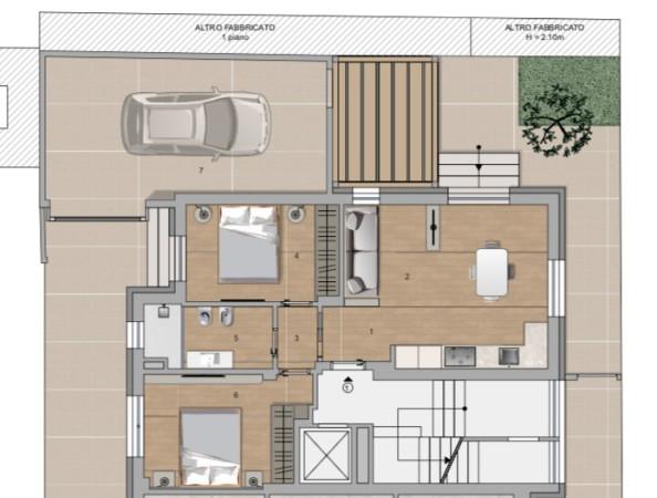
di nuova costruzione con posto auto di nuova costruzione con angolo cottura per vacanza
RICCIONE PAESE – NUOVA COSTRUZIONE – APPARTAMENTO CON CORTE E POSTO AUTO In una delle zone più richieste di Riccione, nel cuore del Paese, proponiamo in vendita appartamento al piano terra in elegante nuova costruzione di sole 4 unità abitative. L’immobile, moderno e funzionale, si compone di: - soggiorno con angolo cottura - due camere matrimoniali - due bagni finestrati - corte esterna privata, ideale per pranzi all’aperto e momenti di relax - posto auto di proprietà Finiture di alto livello, impianti di ultima generazione e classe energetica elevata. Consegna prevista entro fine 2026. Soluzione perfetta per famiglie, residenti o come casa vacanze. Possibilità di personalizzazione interna. Contattare Christian al 3385983073 per planimetrie, capitolato e visite in cantiere



